Prodej atypického bytu, Špindlerův Mlýn, 60 m2

Špindlerův Mlýn, Přední Labská

5 500 000 Kč
/za nemovitost
Hypotéka od 24 582 Kč /měs. Chci hypotéku

Parametry bytu

AdresaŠpindlerův Mlýn, Přední Labská
IDŠPINDL
StavbaCihlová
Stav objektuVelmi dobrý
Patro3.
VlastnictvíOsobní
Užitná plocha60 m2
Sklep
Parkování

Origo partneři v Špindlerově Mlýně

Popis

Jedinečný podkrovní byt s věží u Špindlerova Mlýna

Nabízíme k prodeji výjimečný podkrovní byt s vlastním věžovým prostorem, který kombinuje atmosféru horské architektury s praktickým využitím. Byt a dům prošel kompletní rekonstrukcí v roce 2022 a nachází se ve 3. patře historického domu, pouhé 3 km od sjezdovek ve Špindlerově Mlýně.

Celková podlahová plocha bytu činí 60 m², z toho 40 m² dle ČSN (plocha nad 1,2 m výšky).


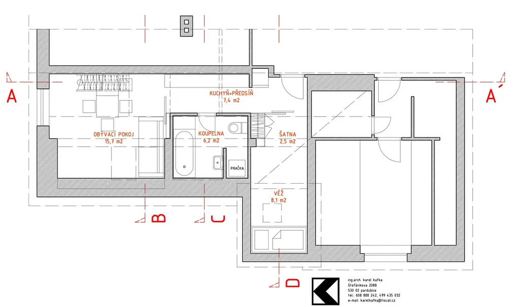
Dispozice bytu:

vstupní chodba

kuchyň

koupelna s vanou a WC

obytný prostor s patrem na spaní (2 lůžka, střešní okno)

šatna

dětský pokoj s palandou a přímým vstupem do věže (ideální jako pracovna nebo knihovna)


Společné prostory a benefity:

společenská místnost s barem, krbem a kulečníkem

sauna s odpočívárnou

lyžárna se sušákem na boty

zahrada s altánem k posezení


Další výhody:

prodej formou převodu 100% podílu ve společnosti s.r.o. vlastnící prodávaný apartmán.(Rychlý a jednoduchý převod, možnost daňové optimalizace a plná kontrola nad nemovitostí prostřednictvím vlastnictví společnosti)

velmi nízké provozní náklady – cca 1 500 Kč / měsíc

klidný dům a výborný sousedský kolektiv


Přehled ploch:

3. NP

kuchyň a předsíň: 7,4 m²

šatna: 2,5 m²

věž – spodní část: 8,1 m²

koupelna s WC: 6,2 m²

obývací pokoj: 15,2 m²

4. NP

úložné prostory nad obývacím pokojem: 4,1 m²

patro na spaní: 10,7 m²

věž – horní část: 6,1 m²


Tato nemovitost je ideální volbou pro rekreační bydlení a není vhodná pro komerční pronájmy. Dům užívají jen vlastníci jednotek - unikátní ve Špindlerově Mlýně.

Makléř

Máte zájem o tento byt?

Tímto, v souladu s nařízením Evropského parlamentu a Rady (EU) 2016/679, v platném znění, prohlašuji, že mi je alespoň 16 let a uděluji tak svůj souhlas se zpracováním zadaných údajů (jméno, telefon, e-mail, ip adresa) společnosti B3 Technology, s.r.o., IČ: 07330600, se sídlem Novostavby 126/23, 435 11 Lom (správce dat), za účelem předání dotazu z tohoto formuláře Vámi vybranému inzerentovi a zpětného kontaktování mé osoby. Osobní údaje bude správce zpracovávat manuálně i automaticky přímo prostřednictvím svých zaměstnanců. Informace předané tímto formulářem budou uloženy v databázi správce maximálně po dobu 10 let. Odvolání souhlasu s uložením a zpracováním poskytnutých dat lze e-mailem na info@origo-reality.cz. V případě podezření na neoprávněné použití Vámi poskytnutých údajů máte právo předat podnět k šetření Úřadu pro ochranu osobních údajů. Více informací
Chystáte se prodat nemovitost?
Pomůžeme Vám!

Přihlášení k odběru

Nenechte si ujít nejnovější nabídky prodeje atypických bytů v Špindlerově Mlýně.