Prodej bytu 2+kk, Harrachov, 69 m2

Harrachov

Rezervováno
7 499 000 Kč
/za nemovitost
Včetně parkovacího stání, vybavení a zařízení apartmánu.
Hypotéka od 33 516 Kč /měs. Chci hypotéku

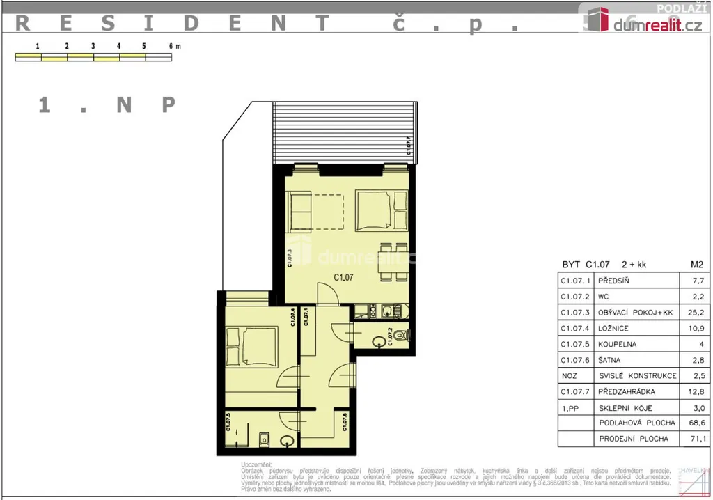
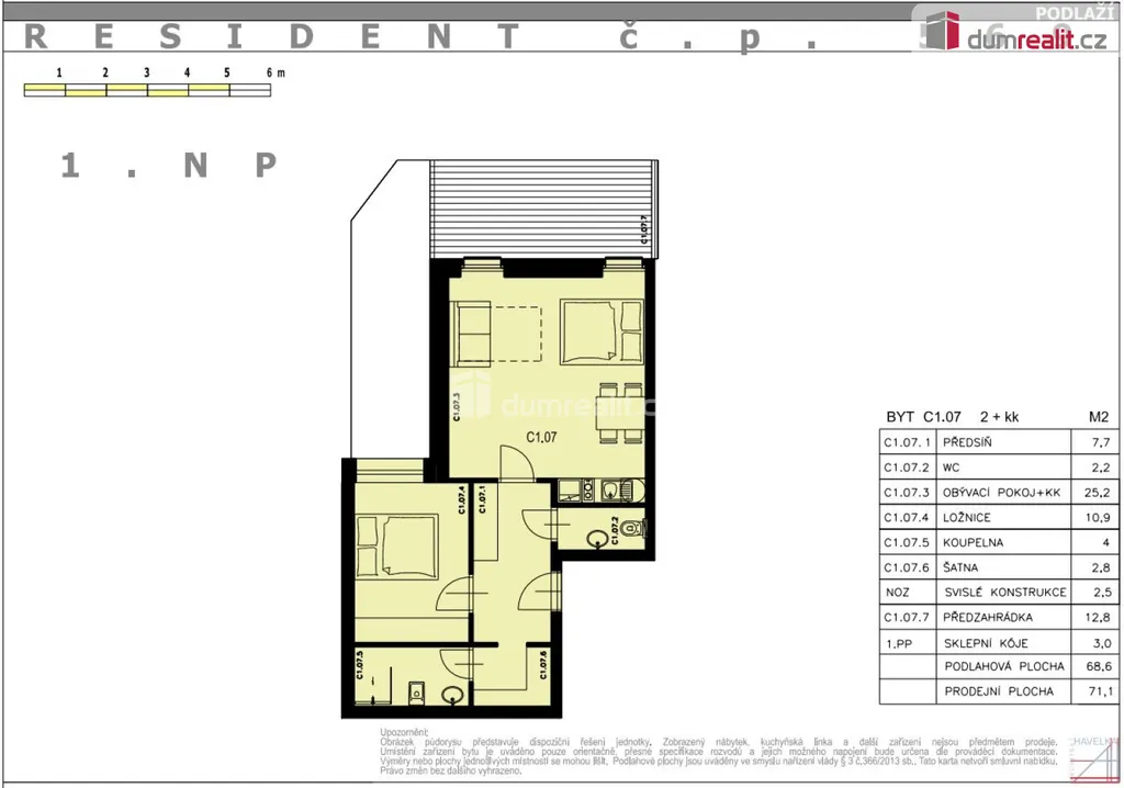
Parametry bytu

StavRezervováno
AdresaHarrachov
ID653941
StavbaSkeletová
Stav objektuVelmi dobrý
Patro1. z 4
VybavenoAno
VlastnictvíOsobní
Užitná plocha69 m2
Podlahová plocha69 m2
Třída energetické náročnostiB - Velmi úsporná
Ukazatel energetické náročnosti12 kWh/m2 za rok
Sklep
Terasa

Origo partneři v Harrachově

Rekonstrukce

Úklidové služby

Popis

prodej nadstandardního horského apartmánu o dispozici 2+kk a celkové výměře 69m² s vlastní předzahrádkou (12,7 m²) v prestižním a vyhledávaném areálu Resident Harrachov. Apartmán se nachází v klidné části resortu s krásným výhledem na okolní hory. Dispozice a vybavení: Obývací pokoj s moderním kuchyňským koutem včetně vestavěných spotřebičů Koupelna po kompletní modernizaci Podlahové vytápění Sklepní kóje (3 m²) Vlastní parkovací stání v uzavřeném areálu Předzahrádka nabízí ideální prostor k relaxaci po dni stráveném v přírodě. Wellness & služby: Majitelé apartmánu mají přímý vstup do dvoupodlažního Grotta Spa – luxusního wellness centra s bazénem, saunou a relax zónou. Lokalita: Harrachov patří mezi nejatraktivnější horské destinace v ČR – ideální pro letní turistiku, cyklistiku, běžky i zimní sporty. V docházkové vzdálenosti najdete: Ski areál Bobovou dráhu Hilby trail Monkey Park pro děti Přímý přístup na Jizerskou magistrálu Investiční potenciál: Atraktivní možnost krátkodobého pronájmu s vysokou obsazeností. V resortu je k dispozici snídaňový servis v samostatném prostoru v přízemí budovy. Prohlídky možné i o víkendech. Rád vám zajistím nejvýhodnější financování hypotečním úvěrem dle aktuální nabídky na trhu. Pro více informací mě neváhejte kontaktovat kdykoli. Luxusní horské bydlení nebo výhodná investice – to vše v srdci Krkonoš! Ev. číslo: 653327.

Makléř

Máte zájem o tento byt?

Tímto, v souladu s nařízením Evropského parlamentu a Rady (EU) 2016/679, v platném znění, prohlašuji, že mi je alespoň 16 let a uděluji tak svůj souhlas se zpracováním zadaných údajů (jméno, telefon, e-mail, ip adresa) společnosti B3 Technology, s.r.o., IČ: 07330600, se sídlem Novostavby 126/23, 435 11 Lom (správce dat), za účelem předání dotazu z tohoto formuláře Vámi vybranému inzerentovi a zpětného kontaktování mé osoby. Osobní údaje bude správce zpracovávat manuálně i automaticky přímo prostřednictvím svých zaměstnanců. Informace předané tímto formulářem budou uloženy v databázi správce maximálně po dobu 10 let. Odvolání souhlasu s uložením a zpracováním poskytnutých dat lze e-mailem na info@origo-reality.cz. V případě podezření na neoprávněné použití Vámi poskytnutých údajů máte právo předat podnět k šetření Úřadu pro ochranu osobních údajů. Více informací
Chystáte se prodat nemovitost?
Pomůžeme Vám!

Přihlášení k odběru

Nenechte si ujít nejnovější nabídky prodeje bytů 2+kk v Harrachově.