Prodej komerčního pozemku, Votice, 5037 m2 (ID: 1919195)

Votice, Buchov

4 990 000 Kč
/za nemovitost
Hypotéka od 22 302 Kč /měs. Chci hypotéku

Parametry pozemku

AdresaVotice, Buchov
IDN90679
StavbaSmíšená
Stav objektuPřed rekonstrukcí
Typ objektuPatrový
Druh objektuSamostatný
VlastnictvíOsobní
Plocha pozemku5037 m2
Třída energetické náročnostiG - Mimořádně nehospodárná
Elektřina400V
OdpadJímka
TopeníLokální tuhá paliva, Ústřední tuhá paliva
KomunikaceAsfaltová
DopravaSilnice, Autobus
VodaMístní zdroj vody
Garáž
Sklep
Bezbarierový přístup
Parkování

Origo partneři v Voticích

Popis

Multifunkční areál s bydlením i podnikáním – přímo u E55, Votice

Na prodej nabízíme rozsáhlý a plně oplocený areál o celkové výměře 3 345 m², který díky své poloze, velikosti a dispozičnímu řešení představuje výjimečnou příležitost pro podnikatele i investory. Místo kombinuje možnost okamžitého provozu, ubytování pracovníků, skladového zázemí i bydlení v jedné lokalitě. Součástí nabídky jsou dvě samostatné stavby – oba objekty vedené jako rodinné domy – vhodné pro kanceláře, dílnu, sídlo firmy, provozovnu nebo ubytovací zařízení.

K areálu navazují také dva zemědělské pozemky o rozloze 1 692 m², díky kterým získáváte celkem 5 037 m² půdy ve vyhledávané zóně BV (bydlení venkovské) s širokým spektrem povoleného využití. Tato územní kategorie umožňuje jak bydlení, tak nekolizní výrobu, sklady, zázemí firmy, parkování techniky či ubytovací služby.

Umístění u hlavní silnice E55 zajišťuje perfektní viditelnost pro jakýkoliv druh podnikání – denně zde projede více než 15 000 vozidel. Výhodou je také přímý vjezd z komunikace a blízkost plánovaného sjezdu z dálnice D3 u Voračic, který v budoucnu ještě zvýší dostupnost a hodnotu lokality.

Co umožňuje územní plán (BV – bydlení venkovské)

-rodinné domy, venkovské usedlosti

-drobná a řemeslná výroba bez negativních vlivů

-mechanické dílny, servisní činnost

-sklady, parkování vozidel a techniky

-provozy služeb a obslužné objekty

-hobby zemědělství a chov

-ubytovací zařízení a ubytování zaměstnanců

-možnost parkování přímo na pozemku


Klíčové přednosti areálu

-propojení bydlení, podnikání a ubytování na jednom místě

-maximální viditelnost u E55, možnost legální reklamy (např. vozidlo s plachtou)

-velká variabilita díky zóně BV

-objekt A připraven k okamžitému využití

-připravené zázemí a prostor pro další úpravy

-strategická poloha u E55, nedaleko budoucího nájezdu na D3


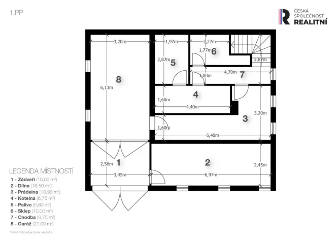
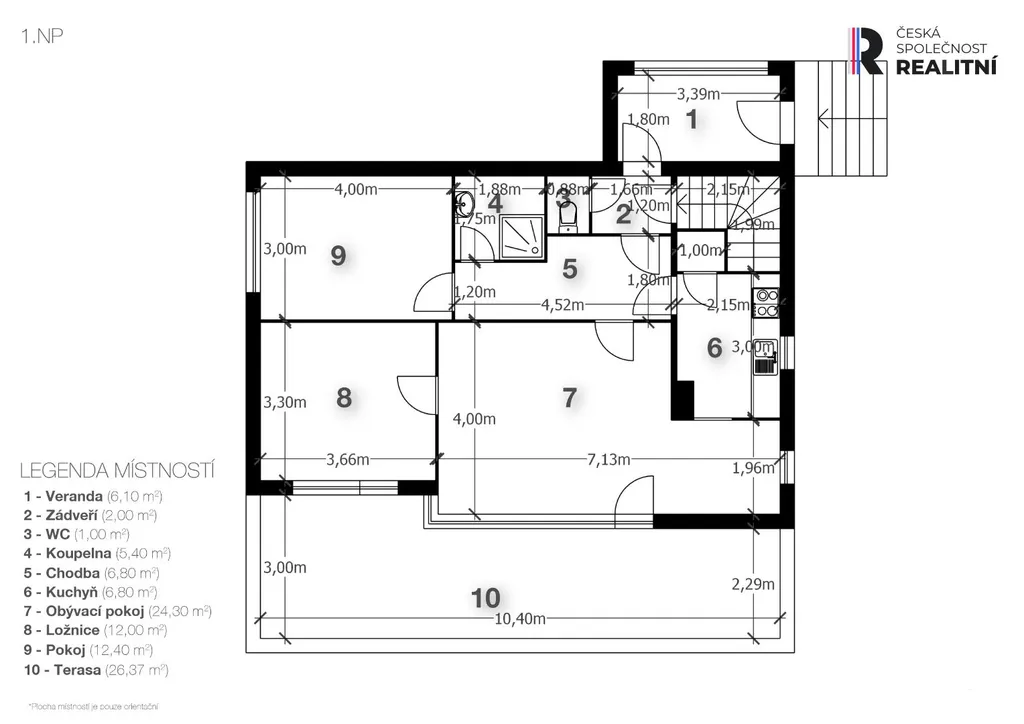
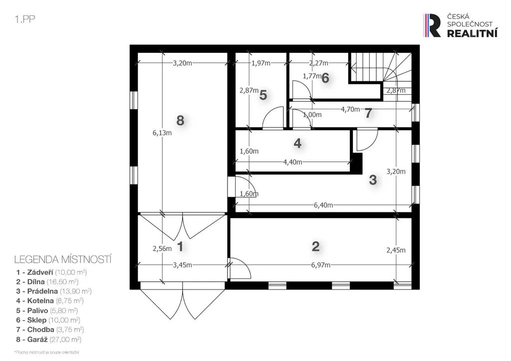
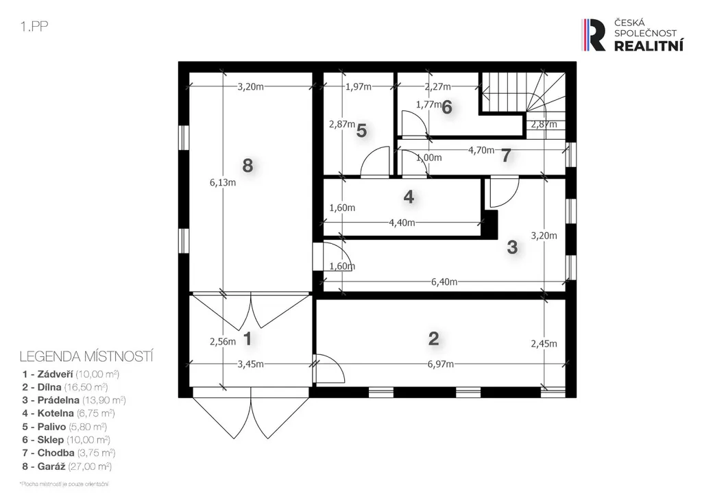
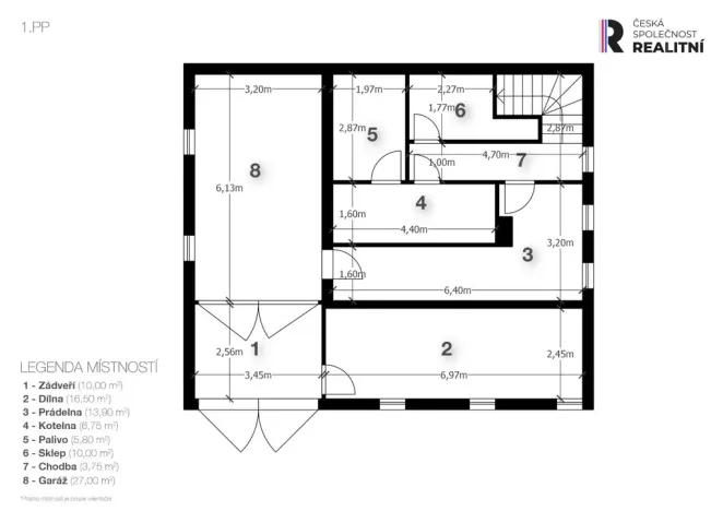
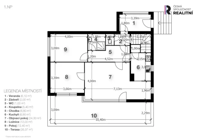
Popis staveb

Budova A

-částečně renovovaná, nová plastová okna a zateplení

-osazen moderním ekologickým kotlem H8–A se zásobníkem

-vhodné pro kancelář, firemní zázemí, ubytování

-navazuje na prostornou stodolu – ideální pro sklad či dílnu


Budova B

-určena k celkové rekonstrukci

-vhodná jako dílna, sklad, garáže nebo rozšíření provozu


Technické parametry

-elektřina 3×25 A

-voda přivedena z obecní studny – zdarma

-odpady vedeny do vlastní jímky

-mírně svažitý oplocený pozemek

-přímý sjezd z komunikace E55


Pro koho je nemovitost ideální?

Pro stavební a servisní firmy, e-shopy, řemeslníky, dopravce, podnikatele s potřebou skladů či zázemí techniky, nebo investory hledající objekt s možností ubytování zaměstnanců a dalším rozvojovým potenciálem.

Energetická náročnost: třída G (PENB se připravuje).

V případě zájmu o další informace či odkaz na detailní webovou prezentaci nás kontaktujte.

Makléř

Máte zájem o tento pozemek?

Tímto, v souladu s nařízením Evropského parlamentu a Rady (EU) 2016/679, v platném znění, prohlašuji, že mi je alespoň 16 let a uděluji tak svůj souhlas se zpracováním zadaných údajů (jméno, telefon, e-mail, ip adresa) společnosti B3 Technology, s.r.o., IČ: 07330600, se sídlem Novostavby 126/23, 435 11 Lom (správce dat), za účelem předání dotazu z tohoto formuláře Vámi vybranému inzerentovi a zpětného kontaktování mé osoby. Osobní údaje bude správce zpracovávat manuálně i automaticky přímo prostřednictvím svých zaměstnanců. Informace předané tímto formulářem budou uloženy v databázi správce maximálně po dobu 10 let. Odvolání souhlasu s uložením a zpracováním poskytnutých dat lze e-mailem na info@origo-reality.cz. V případě podezření na neoprávněné použití Vámi poskytnutých údajů máte právo předat podnět k šetření Úřadu pro ochranu osobních údajů. Více informací
Chystáte se prodat nemovitost?
Pomůžeme Vám!

Přihlášení k odběru

Nenechte si ujít nejnovější nabídky prodeje komerčních pozemků v Voticích.