Pronájem bytu 3+kk, Praha - Kamýk, Cholupická, 109 m2

Cholupická, Kamýk - Praha 12

33 500 Kč
/za měsíc
vratná jistota, zálohy 5.830,- Kč, poplatek za podnájem, garážové stání a sklep v ceně
Získejte výhodnou HYPOTÉKU Chci hypotéku

Parametry bytu

AdresaCholupická, Kamýk - Praha 12
IDN5317
StavbaCihlová
Stav objektuNovostavba
Patro5. z 9
VybavenoČástečně
Typ objektuPatrový
Lokalita objektuKlidná část obce
VlastnictvíOsobní
Užitná plocha109 m2
Podlahová plocha109 m2
Elektřina230V
TopeníÚstřední dálkové
Balkon
Sklep
Výtah
Parkování

Origo partneři v Praze 4

Stěhovací služby

Výkup a prodej starého nábytku

Popis

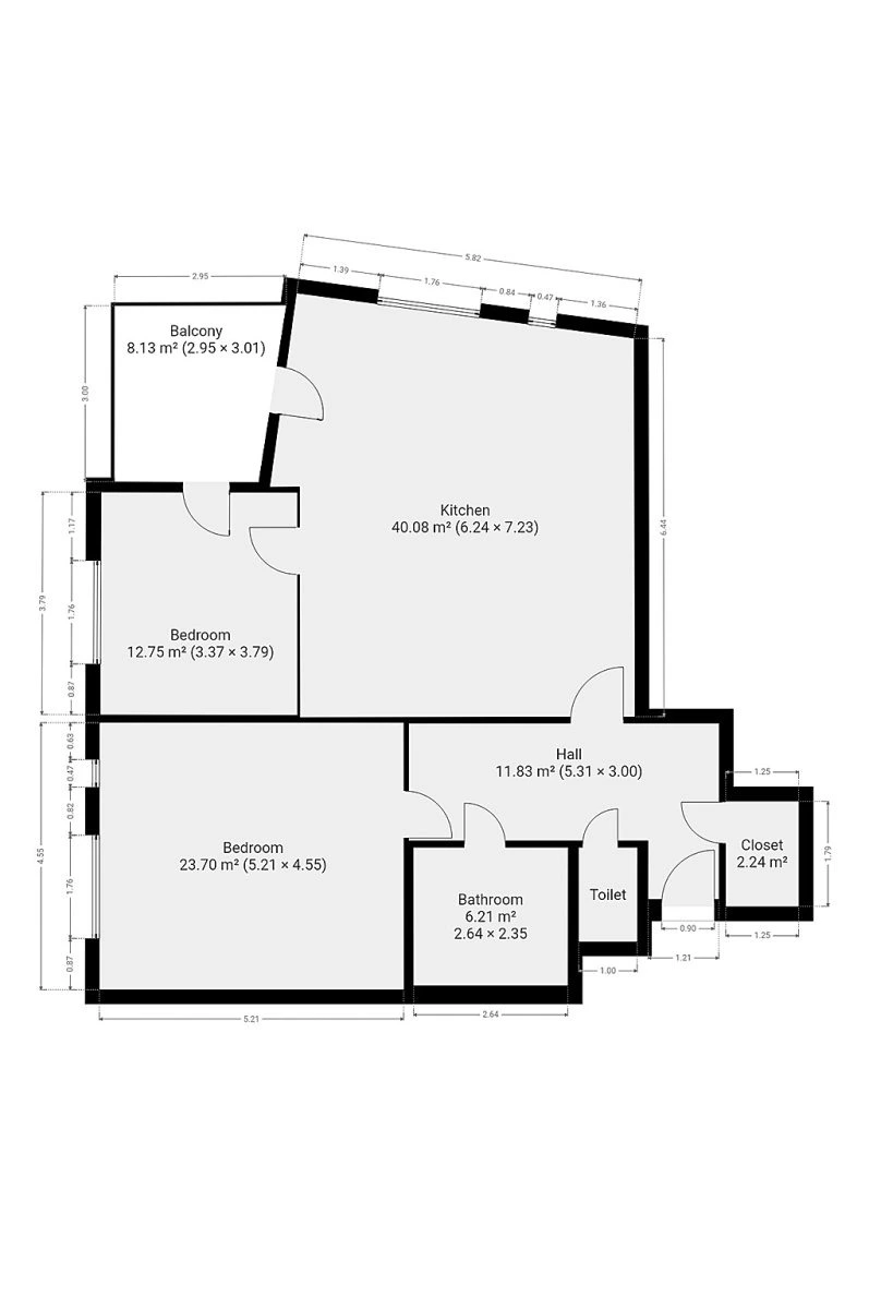
Exkluzivně nabízíme prostorný moderní byt dispozice 3+kk o výměře 109 m2 připravený k okamžitému nastěhování, ideální k vytvoření domova pro až pětičlennou rodinu v klidné lokalitě pražského Kamýku.

Bytu dominuje obrovská hlavní místnost o výměře přes 40 m2 s moderní kuchyní s nadstandardními vestavěnými spotřebiči, která je jako stvořená pro společně trávený čas s rodinou i přáteli. Z místnosti je rovněž přístup na prostorný krytý rohový balkon o ploše 8 m2.

Prostorná hlavní ložnice o výměře téměř 24 m2 je vybavena velkorysými skříněmi s posuvnými dveřmi.

Z druhé ložnice o výměře bezmála 13 m2 je pak rovněž přístup na zmíněný rohový balkón.

Vkusně řešená prostorná koupelna s vanou se sprchovou zástěnou, toaleta je samostatná.

V hale jsou rozměrné policové skříně, další úložné prostory se nalézají v oddělené komoře.

Celý byt se nese v moderním světlém duchu sázejícím na kvalitní materiály a dává i větší rodině dostatečný prostor k vytvoření útulného domova podle vlastních představ.

Byt se nachází v novějším bytovém domě s výtahem a podzemními garážemi v oblasti s dobrou dopravní obslužností. V pěší vzdálenosti je řada obchodů, škol a sportovišť, ale i les pro dlouhé procházky a vyjížďky na kole. V oblasti rovněž sídlí řada sportovních klubů a zájmových sdružení.

V ceně je již obsaženo podzemní garážové stání a nadstandardní úložný prostor o výměře 11 m2.

K dispozici solidním zájemcům hledajícím dlouhodobé kvalitní bydlení k nastěhování ihned.

Individuální prohlídky možné po domluvě kdykoliv včetně pozdních večerních hodin a víkendů.

Byt pronajímá Ideální nájemce - služba, se kterou budete bydlet bezstarostně a za férových podmínek. Když se něco přihodí, k dispozici jsou správci, kteří s Vámi vše vyřeší. Pomůžeme s veškerou administrativou, s nastavením plateb a zajistíme Vám speciální pojištění. Pojďte bydlet s námi!

Makléř

Máte zájem o tento byt?

Tímto, v souladu s nařízením Evropského parlamentu a Rady (EU) 2016/679, v platném znění, prohlašuji, že mi je alespoň 16 let a uděluji tak svůj souhlas se zpracováním zadaných údajů (jméno, telefon, e-mail, ip adresa) společnosti B3 Technology, s.r.o., IČ: 07330600, se sídlem Novostavby 126/23, 435 11 Lom (správce dat), za účelem předání dotazu z tohoto formuláře Vámi vybranému inzerentovi a zpětného kontaktování mé osoby. Osobní údaje bude správce zpracovávat manuálně i automaticky přímo prostřednictvím svých zaměstnanců. Informace předané tímto formulářem budou uloženy v databázi správce maximálně po dobu 10 let. Odvolání souhlasu s uložením a zpracováním poskytnutých dat lze e-mailem na info@origo-reality.cz. V případě podezření na neoprávněné použití Vámi poskytnutých údajů máte právo předat podnět k šetření Úřadu pro ochranu osobních údajů. Více informací
Chystáte se prodat nemovitost?
Pomůžeme Vám!