Pronájem kanceláře, Český Těšín, Nová Tovární, 1053 m2

Nová Tovární, Český Těšín

3 500 Kč
/za měsíc
Získejte výhodnou HYPOTÉKU Chci hypotéku

Parametry nemovitosti

AdresaNová Tovární, Český Těšín
ID1746
StavbaCihlová
Stav objektuVelmi dobrý
Patro1. z 4
VybavenoNe
Typ objektuPatrový
Lokalita objektuKlidná část obce
Užitná plocha1053 m2
Zastavěná plocha456 m2
Podlahová plocha1053 m2
Třída energetické náročnostiG - Mimořádně nehospodárná
PlynPlynovod
OdpadVeřejná kanalizace
KomunikaceAsfaltová
TelekomunikaceInternet
DopravaVlak, Dálnice, Silnice, MHD, Autobus
Převod do OV

Origo partneři v Českém Těšíně

Pojištění a finance

Popis

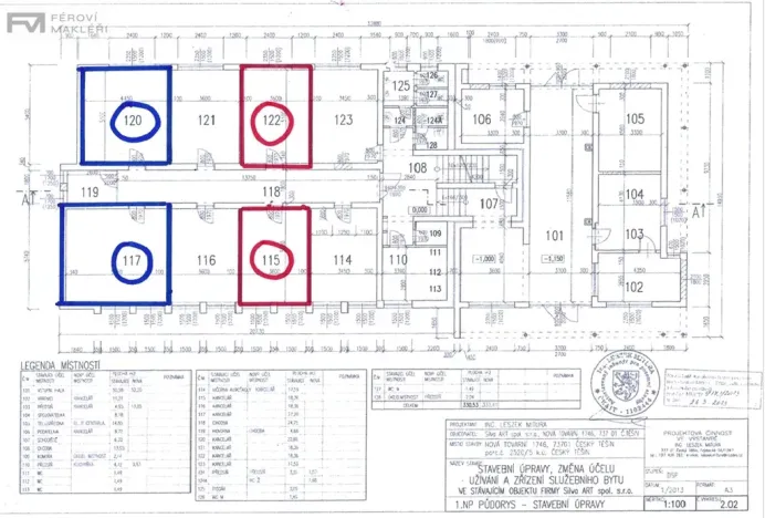
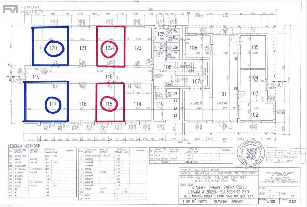
Nabízíme pronájem nebytových prostor na zajímavé adrese za rozumnou cenu. Komerční prostory se nacházejí v oploceném areálu v Českém Těšíně na ulici Nova Tovární. Jedná se o bezpečnou lokalitu s dostatkem parkovacích míst v areálu i mimo areál v těsné blízkosti pronajatých místností. Prostor v budově lze využít jako kanceláře, sklad, dílnu, ateliér nebo provozovnu. Jedná se o 4 místnosti v přízemí, 3 místnosti v prvním patře a 1 velká místnost ve druhém patře. Velikost místností je označena barevně na půdorysu, Červeně do 18 m2 - místnosti č. 115, 122, 215, 216, 217. Modře do 26 m2 místnosti č. 117 a č. 120. Zeleně 76 m2 místnost č. 307. Cena pronájmu včetně vytápění a internetového připojení a používání společné kuchyňky na chodbě a oddělených WC pro muže a ženy je za místnosti 18 m2 3500,- Kč/měsíc, za místnosti do 26 m2 4500,- Kč/měsíc a za největší místnost o velikosti 76,7 m2 je 12000,- Kč/měsíc. Spotřebu elektřiny, vody a tepla si platí nájemce dle vyúčtování skutečné spotřeby. Ke každému pronájmu je povinná měsíční platba za úklid v budově (mytí chodby, schodů, oken, dveří, kuchyňky, wc), údržba zeleně a odklízení sněhu 1000,- Kč. Pokud si nájemce pronajme více kanceláří, bude poskytnuta sleva. Provize RK v ceně jednoho nájmu platí nájemce. V areálu není kantýna, ale je možnost objednat si dovážku jídla dle denní nabídky.

Makléř

Máte zájem o tuto nemovistost?

Tímto, v souladu s nařízením Evropského parlamentu a Rady (EU) 2016/679, v platném znění, prohlašuji, že mi je alespoň 16 let a uděluji tak svůj souhlas se zpracováním zadaných údajů (jméno, telefon, e-mail, ip adresa) společnosti B3 Technology, s.r.o., IČ: 07330600, se sídlem Novostavby 126/23, 435 11 Lom (správce dat), za účelem předání dotazu z tohoto formuláře Vámi vybranému inzerentovi a zpětného kontaktování mé osoby. Osobní údaje bude správce zpracovávat manuálně i automaticky přímo prostřednictvím svých zaměstnanců. Informace předané tímto formulářem budou uloženy v databázi správce maximálně po dobu 10 let. Odvolání souhlasu s uložením a zpracováním poskytnutých dat lze e-mailem na info@origo-reality.cz. V případě podezření na neoprávněné použití Vámi poskytnutých údajů máte právo předat podnět k šetření Úřadu pro ochranu osobních údajů. Více informací
Chystáte se prodat nemovitost?
Pomůžeme Vám!
Theleadway banner

Přihlášení k odběru

Nenechte si ujít nejnovější nabídky pronájmu kanceláří v Českém Těšíně.