Pronájem atypického bytu, Varnsdorf, 5. května, 94 m2

5. května, Varnsdorf

8 000 Kč
/za měsíc
Získejte výhodnou HYPOTÉKU Chci hypotéku

Parametry bytu

Adresa5. května, Varnsdorf
ID05867
StavbaCihlová
Stav objektuDobrý
Patro2.
VlastnictvíOsobní
Užitná plocha94 m2
Třída energetické náročnostiG - Mimořádně nehospodárná

Origo partneři v Varnsdorfu

Okna a dveře

Rekonstrukce

Zámečnické práce

Popis

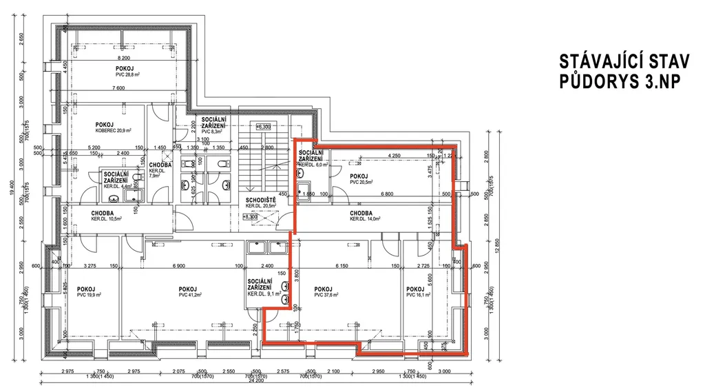
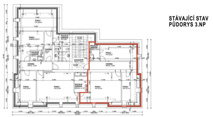
Pronájem atypického bytu 3+0 / 94 m² – ul. 5. května, Varnsdorf. Nabízíme k pronájmu výjimečnou a atypickou udržovanou nemovitost s jedinečnou historií. Objekt, který v minulosti sloužil jako celnice a přechod mezi hranicemi, prošel přestavbou a dnes nabízí praktické bydlení s potenciálem úprav dle potřeb budoucího nájemce.

Byt o celkové výměře 94,2 m² disponuje třemi samostatnými, neprůchozími pokoji, chodbou a sociálním zařízením (WC a sprchový kout). Kuchyň zde aktuálně není vybudována, nicméně veškeré úpravy jsou možné po dohodě s majitelem, což otevírá prostor k vytvoření bydlení přesně podle vašich představ – případně i k využití pro kanceláře, ateliér či jiné komerční účely.

Nájemné: 8.000 Kč / měsíc
Zálohy na služby: dle skutečné spotřeby, výše bude upřesněna po dohodě s majitelem.
Rezervační záloha: 8.000 Kč bude po podpisu nájemní smlouvy zaúčtována jako provize RK
Vratná kauce: 16.000 Kč
K dispozici: ihned

Pokud vás nabídka zaujala, neváhejte nás kontaktovat. Rádi vám poskytneme více informací a domluvíme termín prohlídky podle vašich možností.

Makléř

Máte zájem o tento byt?

Tímto, v souladu s nařízením Evropského parlamentu a Rady (EU) 2016/679, v platném znění, prohlašuji, že mi je alespoň 16 let a uděluji tak svůj souhlas se zpracováním zadaných údajů (jméno, telefon, e-mail, ip adresa) společnosti B3 Technology, s.r.o., IČ: 07330600, se sídlem Novostavby 126/23, 435 11 Lom (správce dat), za účelem předání dotazu z tohoto formuláře Vámi vybranému inzerentovi a zpětného kontaktování mé osoby. Osobní údaje bude správce zpracovávat manuálně i automaticky přímo prostřednictvím svých zaměstnanců. Informace předané tímto formulářem budou uloženy v databázi správce maximálně po dobu 10 let. Odvolání souhlasu s uložením a zpracováním poskytnutých dat lze e-mailem na info@origo-reality.cz. V případě podezření na neoprávněné použití Vámi poskytnutých údajů máte právo předat podnět k šetření Úřadu pro ochranu osobních údajů. Více informací
Chystáte se prodat nemovitost?
Pomůžeme Vám!

Přihlášení k odběru

Nenechte si ujít nejnovější nabídky pronájmu atypických bytů v Varnsdorfu.