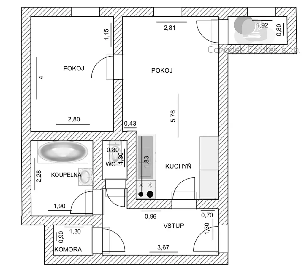
Prodej bytu 2+kk, Ostrava, U Oblouku, 42 m2 (ID: 1917042)

U Oblouku, Ostrava, Poruba

3 250 000 Kč
/za nemovitost
Měsíční náklady 4.794Kč + elektřina + plyn
Hypotéka od 14 526 Kč /měs. Chci hypotéku

Parametry bytu

AdresaU Oblouku, Ostrava, Poruba
ID25-06-003
StavbaCihlová
Stav objektuDobrý
Patro3.
Lokalita objektuCentrum obce
VlastnictvíOsobní
Užitná plocha42 m2
Podlahová plocha42 m2
Třída energetické náročnostiG - Mimořádně nehospodárná
Elektřina230V
PlynPlynovod
OdpadVeřejná kanalizace
TopeníÚstřední dálkové
VodaVodovod
Topné tělesoRadiátory
Sklep
Výtah
Bezbarierový přístup

Origo partneři v Ostravě

Popis

Ne vždy se Vám naskytne možnost bydlet v takto ikonickém domě, který zná snad každý. Je totiž kulturní památkou. Ano, bydlet v takovém domě může mít jisté nevýhody, avšak pojďme se podívat na výhody.

Byt o dispozici 2kk o výměře 42 m2 se nachází v šestém nadzemním podlaží bytového domu. První důležitou výhodou je výtah. Nebudete mít tedy problém se ke svému bytu pohodlně dostat. Je však nutno zmínit, že dům není bezbariérový. Byt se prodává v původním plně funkčním stavu. Ovšem rekonstrukce by mu jistě slušela. Otevírá se zde tedy možnost upustit uzdu fantazie nového majitele a přizpůsobit si byt dle svých představ.

Po vstupu do bytu se ocitnete v malé, ale praktické chodbě. Z chodby již vstupujete do hlavní obytné místnosti, ve které vás ihned zaujme velkorysý kuchyňský kout a zároveň dostatek místa na vytvoření vaší odpočinkové zóny. Hnedle dveře do komory, dveře do koupelny a na samostatnou toaletu. Důležitou místností je neprůchozí ložnice. A i když byt není nafukovací, nachází se v něm malá místnůstka, která čeká na uplatnění nového majitele, třeba k vytvoření “zašívárny”.

Nachází se v lokalitě Ostrava – Poruba. Je to velmi příjemná lokalita disponující nejen spousty relaxačních míst v zeleni pro trávení volného času, ale hlavně veškerou občanskou vybaveností.


Pozn: Uvedená cena je BEZ zprostředkovatelského poplatku ve výší 150.000 Kč vč DPH pro RK. Financování pomůžeme zajistit. Energetický štítek prozatím uvádíme G

Makléř

Máte zájem o tento byt?

Tímto, v souladu s nařízením Evropského parlamentu a Rady (EU) 2016/679, v platném znění, prohlašuji, že mi je alespoň 16 let a uděluji tak svůj souhlas se zpracováním zadaných údajů (jméno, telefon, e-mail, ip adresa) společnosti B3 Technology, s.r.o., IČ: 07330600, se sídlem Novostavby 126/23, 435 11 Lom (správce dat), za účelem předání dotazu z tohoto formuláře Vámi vybranému inzerentovi a zpětného kontaktování mé osoby. Osobní údaje bude správce zpracovávat manuálně i automaticky přímo prostřednictvím svých zaměstnanců. Informace předané tímto formulářem budou uloženy v databázi správce maximálně po dobu 10 let. Odvolání souhlasu s uložením a zpracováním poskytnutých dat lze e-mailem na info@origo-reality.cz. V případě podezření na neoprávněné použití Vámi poskytnutých údajů máte právo předat podnět k šetření Úřadu pro ochranu osobních údajů. Více informací
Chystáte se prodat nemovitost?
Pomůžeme Vám!

Přihlášení k odběru

Nenechte si ujít nejnovější nabídky prodeje bytů 2+kk v Ostravě.