Prodej rodinného domu, Mandre, Chorvatsko, 88 m2 (ID: 1916933)

Mandre

8 085 000 Kč
/za nemovitost

Parametry domu

AdresaMandre
ID450
StavbaPanelová
Stav objektuVelmi dobrý
Užitná plocha88 m2
Plocha pozemku88 m2
Třída energetické náročnostiD - Méně úsporná
Elektřina230V
PlynIndividuální
OdpadVeřejná kanalizace
KomunikaceAsfaltová
TelekomunikaceInternet
DopravaSilnice
VodaVodovod
Parkování
Bazén

Origo partneři

Popis

Chorvatsko-Nemovitosti.cz nabízí nové domy v řadě s bazénem a zahradou na prodej v Mandre na ostrově Pag

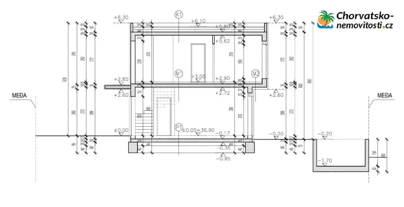
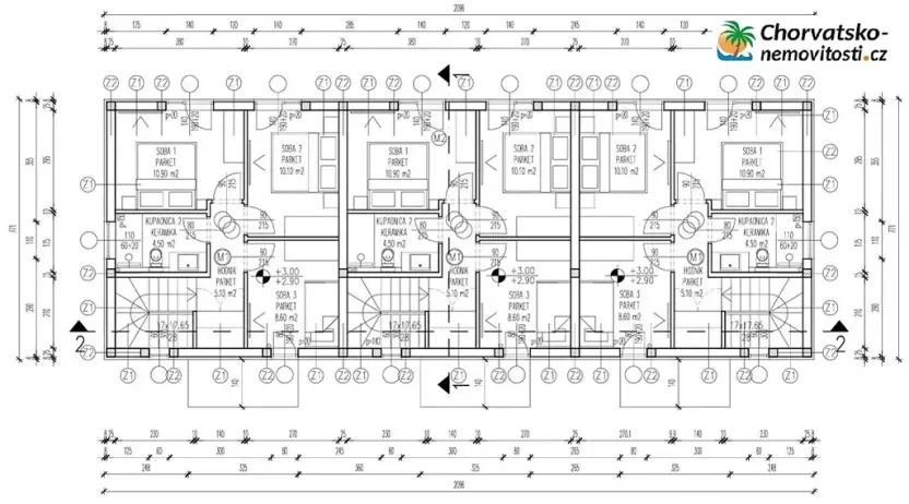
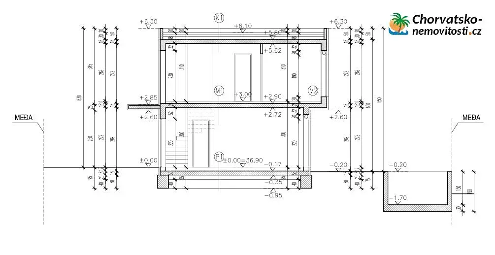
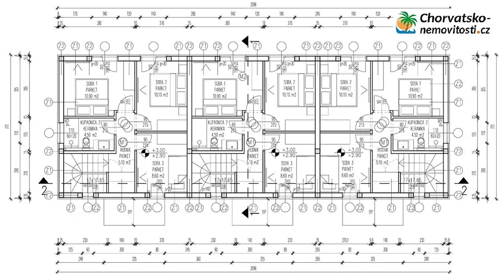
Celkem 87,60 m² uzavřeného obytného prostoru, rozloženého na dvou podlažích, přízemí a prvním patře.
V suterénu se nachází obývací pokoj s kuchyňským koutem a jídelnou o rozloze 31,80 m², koupelna o rozloze 5,10 m², chodba o rozloze 3,20 m² a úložný prostor o rozloze 3,40 m². Celková plocha přízemí: 43,50 m²
V patře se nacházejí tři ložnice – 10,90 m², 10,10 m², 8,50 m², další koupelna – 4,50 m² a chodba se schodištěm – 10,10 m². Celková podlahová plocha: 44,10 m²
Byt zdobí francouzské balkony, které propouštějí dostatek přirozeného světla a propojují ho s venkovním prostorem. Instalují se dvoubarevné PVC dveře (zvenku antracit, zevnitř bílá), hliníkové okenice s tepelnou izolací a každá místnost má samostatnou klimatizační jednotku s funkcí vytápění a chlazení.
Interiér se vyznačuje prvotřídními podlahovými a stěnovými krytinami, skleněnými sprchovými kouty a moderní sanitární keramikou s minimalistickým designem. Exteriér se vyznačuje moderními liniemi a hřejivými detaily, jako jsou kamenné zdi ve dvoře, zelené plochy a kryté terasy.
Celý komplex byl koncipován jako funkční celek s důrazem na bezpečnost, komfort a estetiku – včetně video dohledu, 8 cm silné tepelné fasády, širokých přístupových cest a kvalitních zpevněných povrchů.
Rozměry bazénu 6×3 m (18 m²)
Soukromá zahrada a terasa o rozloze 55 m²
Dvě soukromá parkovací místa (celkem 25 m²)
Terasa pro venkovní posezení
Celková plocha venkovního prostoru je přibližně 98 m², což v kombinaci s vnitřní plochou poskytuje na 136,6 m² vynikající obytné prostředí v klidném a zeleném prostředí.
Pláž je vzdálená přibližně 700 metrů, stejně jako centrum města.
POZNÁMKA: Možnost platby ve splátkách.

Mandre je malá vesnička nacházející se na pobřeží, najdete tu vše potřebné pro dovolenou. Pobřeží lemují malé písčité pláže s kameny a betonová mola. Pláže jsou s pozvolným vstupem do moře.

Ostrov Pag je známý díky teplému klimatu a blízkostí k České republice - Brno 750km po dálnici. Na ostrov se dostanete trajektem i po mostě, najdete zde benzínové pumpy, obchody, stavebniny a prodejny hobby doplňků. Jsou zde také restaurace, bary, diskotéky a mariny pro ukotvení lodí skůtrů atd. Na Pagu najdete výborné Pažské sýry, speciální krajky nebo výrobu solných přípravků.

Veřejné služby
Internet
Příjezdová cesta
Voda
Elektro
Odpady
Certifikáty
Vlastnický certifikát
Kolaudační rozhodnutí
Zápis v Katastru

Info:
Vzdálenost od moře: 700m
Most, který spojuje ostrov pevninu je zdarma
Obchod a restaurace Mandre
Restaurace 9min

Makléř

Máte zájem o tento dům?

Tímto, v souladu s nařízením Evropského parlamentu a Rady (EU) 2016/679, v platném znění, prohlašuji, že mi je alespoň 16 let a uděluji tak svůj souhlas se zpracováním zadaných údajů (jméno, telefon, e-mail, ip adresa) společnosti B3 Technology, s.r.o., IČ: 07330600, se sídlem Novostavby 126/23, 435 11 Lom (správce dat), za účelem předání dotazu z tohoto formuláře Vámi vybranému inzerentovi a zpětného kontaktování mé osoby. Osobní údaje bude správce zpracovávat manuálně i automaticky přímo prostřednictvím svých zaměstnanců. Informace předané tímto formulářem budou uloženy v databázi správce maximálně po dobu 10 let. Odvolání souhlasu s uložením a zpracováním poskytnutých dat lze e-mailem na info@origo-reality.cz. V případě podezření na neoprávněné použití Vámi poskytnutých údajů máte právo předat podnět k šetření Úřadu pro ochranu osobních údajů. Více informací
Chystáte se prodat nemovitost?
Pomůžeme Vám!

Přihlášení k odběru

Nenechte si ujít nejnovější nabídky prodeje rodinných domů.