Pronájem skladu, Ostrava, Teslova, 348 m2 (ID: 1916854)

Teslova, Ostrava, Přívoz

43 500 Kč
/za měsíc
Nájem+ energie a služby účtovány podle způsobu využití
Získejte výhodnou HYPOTÉKU Chci hypotéku

Parametry nemovitosti

AdresaTeslova, Ostrava, Přívoz
ID0729
StavbaCihlová
Stav objektuVelmi dobrý
VybavenoNe
Lokalita objektuCentrum obce
Užitná plocha348 m2
Třída energetické náročnostiG - Mimořádně nehospodárná
Elektřina230V, 400V
OdpadVeřejná kanalizace
KomunikaceAsfaltová
TelekomunikaceKabelové rozvody
DopravaDálnice, Silnice, MHD
VodaVodovod
Topné tělesoRadiátory
Parkování

Origo partneři v Ostravě

Popis

Nabízíme k pronájmu výrobní a skladové prostory v zázemí zateplené zděné budovy. Prostory jsou k dispozici od 31.03.2026. Při domluvě lze potenciálně prostory uvolnit dříve.

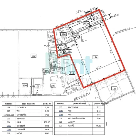
Celková pronajímatelná plocha činí 348 m². Tato plocha je rozdělena na halu o velikosti 298 m² a 2 kancelářské prostory o celkové velikosti 50 m² (kancelář A má 20 m², kancelář B má 30 m²). Hala má výšku vrat 3,7 m a výšku pod nosníky 4,0 m.

Měsíční nájemné je stanoveno na 43.500 Kč/měsíc bez DPH. K dispozici k pronájmu jsou také 3 parkovací místa , každé za 400 Kč/ měsíc bez DPH či reklamní plocha za 100 Kč/měsíc. V rámci paušálních služeb je zajištěna strážní služba, úklid venkovních prostor, odvoz odpadu, odhrnování sněhu a správa objektu. Energie (voda, elektřina, vytápění) i služby jsou účtovány formou záloh dle domluveného způsobu využití. Sdílené šatny a toalety budou účtovány dle počtu osob 1.400,- Kč/ měsíc s DPH na osobu.

Vratná jistota (kauce) činí 2 měsíční nájmy včetně služeb. Provize makléře je stanovena na 26.000,- Kč.

V případě zájmu či bližších informací neváhejte kontaktovat makléřku.

Makléř

Máte zájem o tuto nemovistost?

Tímto, v souladu s nařízením Evropského parlamentu a Rady (EU) 2016/679, v platném znění, prohlašuji, že mi je alespoň 16 let a uděluji tak svůj souhlas se zpracováním zadaných údajů (jméno, telefon, e-mail, ip adresa) společnosti B3 Technology, s.r.o., IČ: 07330600, se sídlem Novostavby 126/23, 435 11 Lom (správce dat), za účelem předání dotazu z tohoto formuláře Vámi vybranému inzerentovi a zpětného kontaktování mé osoby. Osobní údaje bude správce zpracovávat manuálně i automaticky přímo prostřednictvím svých zaměstnanců. Informace předané tímto formulářem budou uloženy v databázi správce maximálně po dobu 10 let. Odvolání souhlasu s uložením a zpracováním poskytnutých dat lze e-mailem na info@origo-reality.cz. V případě podezření na neoprávněné použití Vámi poskytnutých údajů máte právo předat podnět k šetření Úřadu pro ochranu osobních údajů. Více informací
Chystáte se prodat nemovitost?
Pomůžeme Vám!

Přihlášení k odběru

Nenechte si ujít nejnovější nabídky pronájmu skladů v Ostravě.