Prodej rodinného domu, Poteč, 238 m2

Poteč

2 900 000 Kč
/za nemovitost
cena za nemovitost
Hypotéka od 12 961 Kč /měs. Chci hypotéku

Parametry domu

AdresaPoteč
StavbaCihlová
Stav objektuV rekonstrukci
VybavenoNe
Druh objektuSamostatný
Lokalita objektuOkraj obce
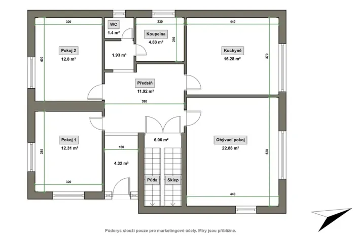
Užitná plocha238 m2
Zastavěná plocha492 m2
Podlahová plocha1731 m2
Plocha pozemku1731 m2
Plocha zahrady1239 m2
Třída energetické náročnostiG - Mimořádně nehospodárná
Elektřina230V
OdpadSeptik
KomunikaceAsfaltová
DopravaVlak, Silnice, Autobus
VodaMístní zdroj vody, Studna
Sklep
Výtah
Bezbarierový přístup

Origo partneři v Poteči

Popis

Ráda bych Vás provedla a představila Vám ke koupi rodinný dům v obci Poteč s číslem popisným, situovaný na pozemku o celkové výměře 1 731 m².Jedná se o zděný rodinný dům s užitnou plochou cca 238 m² a navazující zahradou o výměře 1 239 m².

Dům má dispozici 4+1 a zahrnuje kuchyni, koupelnu, samostatné WC a zádveří. Objekt je z části podsklepený. V podkroví se nachází půdní prostor s možností vybudování další bytové jednotky či rozšíření obytné plochy.

Na nemovitosti je započatá rekonstrukce – osazena jsou nová dřevěná okna a střešní krytinu tvoří šindel. Součástí domu je rovněž přístavba, která není dosud zkolaudována. Dům je nutné dále dokončit a opravit dle vlastních představ nového majitele, což nabízí prostor pro individuální úpravy a přizpůsobení bydlení.

Inženýrské sítě: elektřina, vlastní studna na pozemku, septik, v hranici pozemku obecní vodovod a kanalizace.

Na nemovitosti vázne věcné břemeno užívání, zapsané v katastru nemovitostí. Tato skutečnost bude transparentně vysvětlena zájemcům.
Příjezdová cesta k nemovitosti vede po asfaltové komunikaci.

Krásný, slunný pozemek na rovině je velikým bonusem.

V okolí domu je veškerá občanská vybavenost. Nemovitost se nachází v klidné lokalitě s dostatkem soukromí a zeleně a představuje zajímavou příležitost pro ty, kteří hledají dům k dokončení a rekonstrukci podle vlastních potřeb.

Tak si domluvte prohlídku a já se na Vás budu těšit, Martina.

Makléř

Máte zájem o tento dům?

Tímto, v souladu s nařízením Evropského parlamentu a Rady (EU) 2016/679, v platném znění, prohlašuji, že mi je alespoň 16 let a uděluji tak svůj souhlas se zpracováním zadaných údajů (jméno, telefon, e-mail, ip adresa) společnosti B3 Technology, s.r.o., IČ: 07330600, se sídlem Novostavby 126/23, 435 11 Lom (správce dat), za účelem předání dotazu z tohoto formuláře Vámi vybranému inzerentovi a zpětného kontaktování mé osoby. Osobní údaje bude správce zpracovávat manuálně i automaticky přímo prostřednictvím svých zaměstnanců. Informace předané tímto formulářem budou uloženy v databázi správce maximálně po dobu 10 let. Odvolání souhlasu s uložením a zpracováním poskytnutých dat lze e-mailem na info@origo-reality.cz. V případě podezření na neoprávněné použití Vámi poskytnutých údajů máte právo předat podnět k šetření Úřadu pro ochranu osobních údajů. Více informací
Chystáte se prodat nemovitost?
Pomůžeme Vám!

Přihlášení k odběru

Nenechte si ujít nejnovější nabídky prodeje rodinných domů v Poteči.