Pronájem kanceláře, Praha - Nové Město, Václavské náměstí, 133 m2 (ID: 1915938)

Václavské náměstí, Praha, Nové Město

23 €
/za metr čtvereční / měsíc
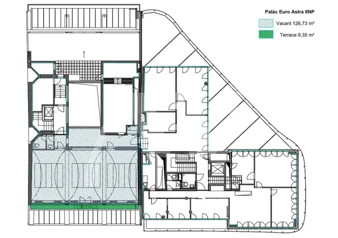
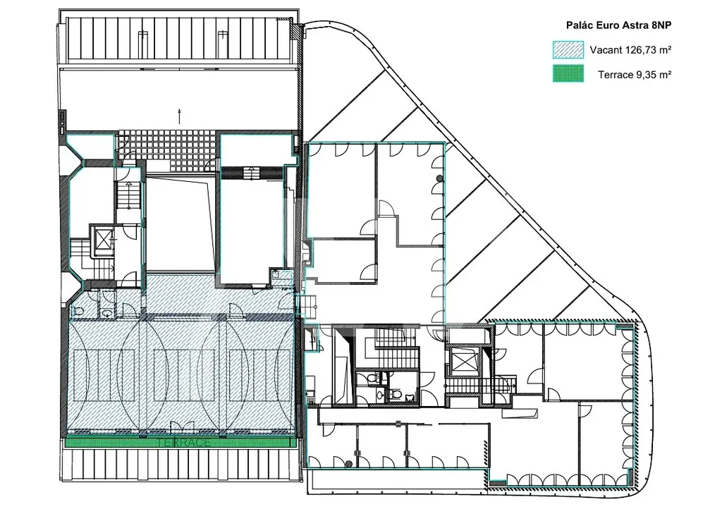
Poplatky za služby 225 Kč/m2/měsíc včetně elektřiny + DPH. Nájem terasa (9,35 m2) 5 EUR/m2/měsíc + DPH., cena k jednání
Získejte výhodnou HYPOTÉKU Chci hypotéku

Parametry nemovitosti

AdresaVáclavské náměstí, Praha, Nové Město
ID00044-4
StavbaSmíšená
Stav objektuVelmi dobrý
Patro8.
Užitná plocha133 m2
Třída energetické náročnostiG - Mimořádně nehospodárná
Výtah
Bezbarierový přístup

Origo partneři v Praze 1

Stěhovací služby

Výkup a prodej starého nábytku

Pojištění a finance

Popis

Budovy PALÁC EURO a PALÁC ASTRA nabízejí kancelářské prostory a v přízemí obchody k pronájmu.

Palác Astra, postaven v letech 1925-27, byl v roce 2011 kompletně zrekonstruován. Palác Euro byl dokončen v roce 2002.

Nabízíme k pronájmu zajímavou kancelář umístěnou v nejvyšším podlaží (7.patro) budovy Palác Astra o velikosti cca 133 m2 odhadem pro 8-12 osob spolu s užší podélnou terasou o velikosti 9,35 m2 s výhledem na Václavské náměstí:

• dispozice zahrnuje 2 prostorné kanceláře, velkou zasedací místnost pro až 12 osob, kuchyňku a 2 vlastní toalety 
• výhledy na Václavské náměstí
• na podlaze jsou koberce
• kancelář je plně klimatizovaná podokenními jednotkami s ovládáním
• okna jsou otevíratelná
• místnosti jsou rozděleny skříněmi (od podlahy po strop), je zde dostatek úložného prostoru
• plně vybavená kuchyňka (lednice, myčka)
• velmi světlá jednotka

Poplatky za služby (kancelář): 225 Kč/m2/měsíc (včetně spotřeby elektřiny) + DPH.

Doba nájmu je flexibilní, dohodou.

Parkování na ulici (modrá zóna).

K dispozici IHNED.

NÁJEMCE NEHRADÍ PROVIZI.

Makléř

Máte zájem o tuto nemovistost?

Tímto, v souladu s nařízením Evropského parlamentu a Rady (EU) 2016/679, v platném znění, prohlašuji, že mi je alespoň 16 let a uděluji tak svůj souhlas se zpracováním zadaných údajů (jméno, telefon, e-mail, ip adresa) společnosti B3 Technology, s.r.o., IČ: 07330600, se sídlem Novostavby 126/23, 435 11 Lom (správce dat), za účelem předání dotazu z tohoto formuláře Vámi vybranému inzerentovi a zpětného kontaktování mé osoby. Osobní údaje bude správce zpracovávat manuálně i automaticky přímo prostřednictvím svých zaměstnanců. Informace předané tímto formulářem budou uloženy v databázi správce maximálně po dobu 10 let. Odvolání souhlasu s uložením a zpracováním poskytnutých dat lze e-mailem na info@origo-reality.cz. V případě podezření na neoprávněné použití Vámi poskytnutých údajů máte právo předat podnět k šetření Úřadu pro ochranu osobních údajů. Více informací
Chystáte se prodat nemovitost?
Pomůžeme Vám!
Theleadway banner