Prodej komerčního pozemku, Kladno, Dubská, 272 m2

Dubská, Kladno

1 650 000 Kč
/za nemovitost
Včetně provize RK a kompletního právního servisu.
Hypotéka od 7 375 Kč /měs. Chci hypotéku

Parametry pozemku

AdresaDubská, Kladno
ID928561
Stav objektuDobrý
VybavenoNe
Lokalita objektuRušná část obce
VlastnictvíOsobní
Plocha pozemku272 m2

Origo partneři v Kladně

Popis

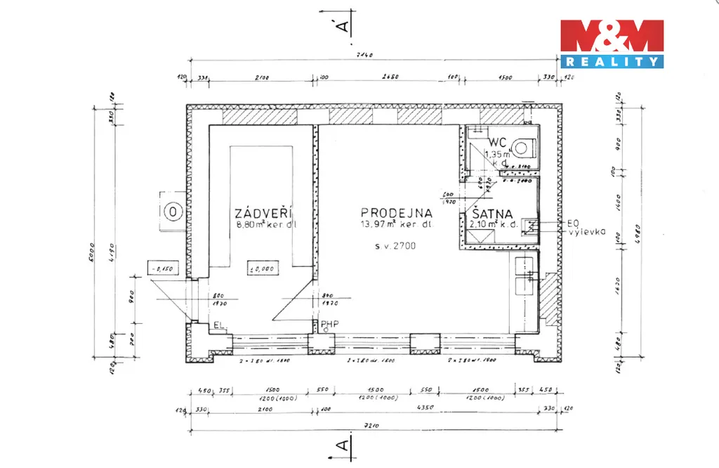
Nabízíme k prodeji jedinečnou komerční nemovitost v rušné části obce Dubí u Kladna. Tato stavba bez čísla popisného i evidenčního se nachází na pozemku o rozloze 272 m² a je ideální pro podnikatelské záměry. Objekt je připraven pro kolaudaci na prodejnu, ale jeho využití je mnohem širší – může sloužit jako prodejna, výrobní prostor, garáž či jiné podnikatelské aktivity dle vašeho nápadu. Nemovitost s užitnou plochou 26 m² je přízemní a její stav je hodnocen jako dobrý. Výborná lokalita v rušné části obce což je ideální pro podnikání. Nepropásněte tuto příležitost a přijďte se přesvědčit o potenciálu této nemovitosti.

Makléř

Máte zájem o tento pozemek?

Tímto, v souladu s nařízením Evropského parlamentu a Rady (EU) 2016/679, v platném znění, prohlašuji, že mi je alespoň 16 let a uděluji tak svůj souhlas se zpracováním zadaných údajů (jméno, telefon, e-mail, ip adresa) společnosti B3 Technology, s.r.o., IČ: 07330600, se sídlem Novostavby 126/23, 435 11 Lom (správce dat), za účelem předání dotazu z tohoto formuláře Vámi vybranému inzerentovi a zpětného kontaktování mé osoby. Osobní údaje bude správce zpracovávat manuálně i automaticky přímo prostřednictvím svých zaměstnanců. Informace předané tímto formulářem budou uloženy v databázi správce maximálně po dobu 10 let. Odvolání souhlasu s uložením a zpracováním poskytnutých dat lze e-mailem na info@origo-reality.cz. V případě podezření na neoprávněné použití Vámi poskytnutých údajů máte právo předat podnět k šetření Úřadu pro ochranu osobních údajů. Více informací
Chystáte se prodat nemovitost?
Pomůžeme Vám!

Přihlášení k odběru

Nenechte si ujít nejnovější nabídky prodeje komerčních pozemků v Kladně.