Pronájem kanceláře, Praha - Nové Město, Opletalova, 91 m2 (ID: 1915561)

Opletalova, Praha, Nové Město

32 185 Kč
/za měsíc
+ popl. paušál 3.098,00 Kč + topení 2.733,00 Kč + elektřina, voda, ohřev vody a odvoz odpadu 500,00 Kč/měs./os. Uvedené ceny jsou bez DPH
Získejte výhodnou HYPOTÉKU Chci hypotéku

Parametry nemovitosti

AdresaOpletalova, Praha, Nové Město
ID009071
StavbaCihlová
Stav objektuVelmi dobrý
Patro3. z 3
VybavenoNe
Typ objektuPatrový
Lokalita objektuCentrum obce
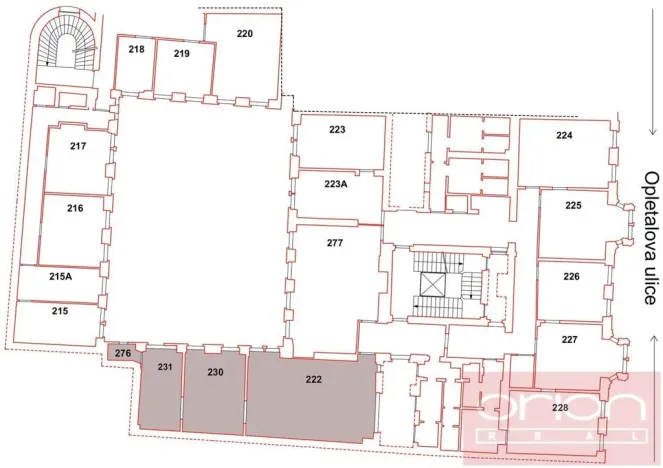
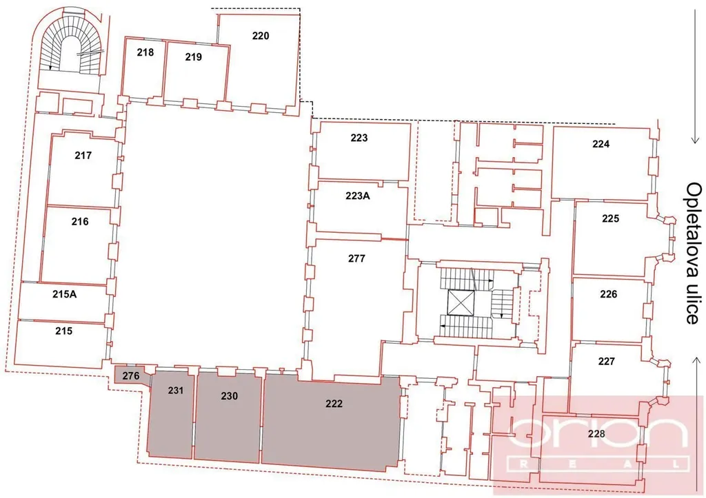
Užitná plocha91 m2
Zastavěná plocha91 m2
Podlahová plocha91 m2
Třída energetické náročnostiG - Mimořádně nehospodárná
KomunikaceDlážděná, Asfaltová
TelekomunikaceInternet, Kabelové rozvody
DopravaVlak, Dálnice, Silnice, MHD
Výtah
Bezbarierový přístup

Origo partneři v Praze 1

Stěhovací služby

Výkup a prodej starého nábytku

Popis

Nabízíme k pronájmu kancelářské prostory o celkové velikosti 91,10 m2 ve 3. patře zrekonstruované budovy ve vyhledávané lokalitě Praha 1 - Nové Město. Kancelářský prostor tvoří 3 místnosti vedle sebe situované do tichého dvora s vlastní kuchyňkou a toaletou. K vybavení patří klimatizace, žaluzie, koberce. Možnost doplnit pracovní stoly. Budova se nachází pouze pár kroků od stanice metra Muzeum přímo na Václavském náměstí a blízko nájezdu na magistrálu. V budově je recepce a 24/7 ostraha. K dispozici ihned, prohlídky na vyžádání.

Makléř

Máte zájem o tuto nemovistost?

Tímto, v souladu s nařízením Evropského parlamentu a Rady (EU) 2016/679, v platném znění, prohlašuji, že mi je alespoň 16 let a uděluji tak svůj souhlas se zpracováním zadaných údajů (jméno, telefon, e-mail, ip adresa) společnosti B3 Technology, s.r.o., IČ: 07330600, se sídlem Novostavby 126/23, 435 11 Lom (správce dat), za účelem předání dotazu z tohoto formuláře Vámi vybranému inzerentovi a zpětného kontaktování mé osoby. Osobní údaje bude správce zpracovávat manuálně i automaticky přímo prostřednictvím svých zaměstnanců. Informace předané tímto formulářem budou uloženy v databázi správce maximálně po dobu 10 let. Odvolání souhlasu s uložením a zpracováním poskytnutých dat lze e-mailem na info@origo-reality.cz. V případě podezření na neoprávněné použití Vámi poskytnutých údajů máte právo předat podnět k šetření Úřadu pro ochranu osobních údajů. Více informací
Chystáte se prodat nemovitost?
Pomůžeme Vám!

Přihlášení k odběru

Nenechte si ujít nejnovější nabídky pronájmu kanceláří v Praze 1.