Prodej rodinného domu, Brno, Podstránská, 60 m2 (ID: 1914930)

Podstránská, Brno, Slatina

6 490 000 Kč
/za nemovitost
Hypotéka od 29 006 Kč /měs. Chci hypotéku

Parametry domu

AdresaPodstránská, Brno, Slatina
StavbaCihlová
Stav objektuDobrý
Užitná plocha60 m2
Plocha pozemku145 m2

Origo partneři v Brně

Popis

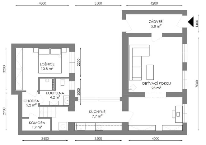
Exkluzivně vám nabízíme ke koupi rodinný dům v městské části Bno-Slatina. Dům o dispozici 2+1 má užitnou plochu 60 m² + terasa ve vnitrobloku cca 20 m². Celková plocha pozemku je 146 m². V 1.NP domu se nachází vstupní chodba z které je přímý vstup na terasu, velmi prostorný obývací pokoj s pracovním koutem, kuchyň, ložnice, koupelna se sprchovým koutem a toaletou, spíž/komora. Dům lze rozšířit/zvednout do 2.NP a vybudovat tak prostorné 4kk či dvě bytové jednotky. Celý dům je vytápěný plynovým kotlem a ohřev vody zajišťuje bojler. V domě je zaveden i plyn. Podlahy jsou kombinace plovoucí podlahy/lamino/dlažba. Za domem se ve svahu nachází zahrada, kterou lze primárně využívat, ač je na městském pozemku.

Tato nemovitost naskýtá skvělou investiční příležitost, či možnost pro ty, kteří hledají klidné bydlení v atraktivní lokalitě. Dům je volný ihned.

Samozřejmostí je rychlé vyřízení hypotéky za velmi příznivých podmínek.

*garáž před domem není součástí prodeje

Makléř

Máte zájem o tento dům?

Tímto, v souladu s nařízením Evropského parlamentu a Rady (EU) 2016/679, v platném znění, prohlašuji, že mi je alespoň 16 let a uděluji tak svůj souhlas se zpracováním zadaných údajů (jméno, telefon, e-mail, ip adresa) společnosti B3 Technology, s.r.o., IČ: 07330600, se sídlem Novostavby 126/23, 435 11 Lom (správce dat), za účelem předání dotazu z tohoto formuláře Vámi vybranému inzerentovi a zpětného kontaktování mé osoby. Osobní údaje bude správce zpracovávat manuálně i automaticky přímo prostřednictvím svých zaměstnanců. Informace předané tímto formulářem budou uloženy v databázi správce maximálně po dobu 10 let. Odvolání souhlasu s uložením a zpracováním poskytnutých dat lze e-mailem na info@origo-reality.cz. V případě podezření na neoprávněné použití Vámi poskytnutých údajů máte právo předat podnět k šetření Úřadu pro ochranu osobních údajů. Více informací
Chystáte se prodat nemovitost?
Pomůžeme Vám!

Přihlášení k odběru

Nenechte si ujít nejnovější nabídky prodeje rodinných domů v Brně.