Prodej bytu 2+kk, Praha - Stodůlky, Drimlova, 43 m2

Drimlova, Praha 5

5 999 000 Kč
/za nemovitost
Hypotéka od 26 812 Kč /měs. Chci hypotéku

Parametry bytu

AdresaDrimlova, Praha 5
ID18232
StavbaPanelová
Stav objektuVelmi dobrý
Patro1. z 7
VybavenoNe
Lokalita objektuSídliště
VlastnictvíOsobní
Užitná plocha43 m2
Podlahová plocha46 m2
Třída energetické náročnostiG - Mimořádně nehospodárná
Elektřina230V
OdpadVeřejná kanalizace
TelekomunikaceInternet
DopravaSilnice, MHD
VodaVodovod
Sklep
Výtah

Origo partneři v Praze 5

Stěhovací služby

Výkup a prodej starého nábytku

Popis

K prodeji nabízíme přízemní jednotku 2+kk, po rekonstrukci.

Bytová jednotka je vhodná jako startovací nebo investiční byt. Aktuálně je jednotka stále v družstevním vlastnictví, v dohledné době bude ovšem převedena do osobního.

- nové rozvody elektřiny
- nové radiátory typu Radik
- podhledy
- laminátová podlaha a keramická dlažba
- dálkové vytápění + topný žebřík v koupelně
- plastová okna s dvojskly
- příprava na kuchyňskou linku (majitelem nebude instalována)

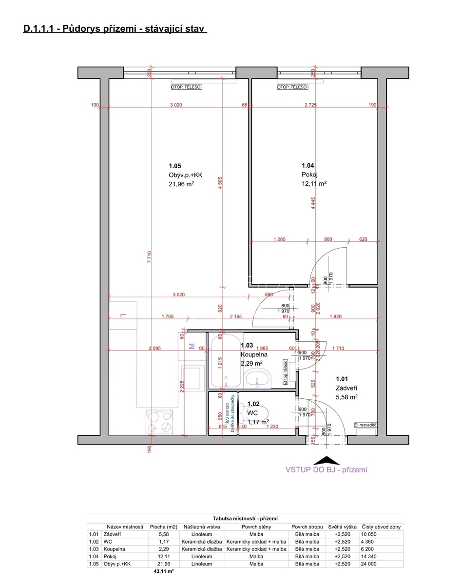
Orientační velikost místností:
Obývací pokoj: 16,23 m2
Kuchyňská kout: 4,64 m2
Ložnice: 12,08 m2
Koupelna: 2,27 m2
Předsíň: 6,66 m2
Toaleta: 1,1 m2
--------------------------------
Celkem: 42,98 m2
+ sklepní kóje: 2,93 m2

Nemovitost je právně čistá, není zde žádný úvěr ani jiný právní problém. Je tedy možné financovat hypotečním úvěrem.

Makléř

Máte zájem o tento byt?

Tímto, v souladu s nařízením Evropského parlamentu a Rady (EU) 2016/679, v platném znění, prohlašuji, že mi je alespoň 16 let a uděluji tak svůj souhlas se zpracováním zadaných údajů (jméno, telefon, e-mail, ip adresa) společnosti B3 Technology, s.r.o., IČ: 07330600, se sídlem Novostavby 126/23, 435 11 Lom (správce dat), za účelem předání dotazu z tohoto formuláře Vámi vybranému inzerentovi a zpětného kontaktování mé osoby. Osobní údaje bude správce zpracovávat manuálně i automaticky přímo prostřednictvím svých zaměstnanců. Informace předané tímto formulářem budou uloženy v databázi správce maximálně po dobu 10 let. Odvolání souhlasu s uložením a zpracováním poskytnutých dat lze e-mailem na info@origo-reality.cz. V případě podezření na neoprávněné použití Vámi poskytnutých údajů máte právo předat podnět k šetření Úřadu pro ochranu osobních údajů. Více informací
Chystáte se prodat nemovitost?
Pomůžeme Vám!

Přihlášení k odběru

Nenechte si ujít nejnovější nabídky prodeje bytů 2+kk v Praze 5.