Prodej pozemku pro bydlení, Staré Smrkovice, 1614 m2 (ID: 1914712)

Staré Smrkovice

1 570 000 Kč
/za nemovitost
Hypotéka od 7 017 Kč /měs. Chci hypotéku

Parametry pozemku

AdresaStaré Smrkovice
Lokalita objektuKlidná část obce
Plocha pozemku1614 m2
KomunikaceNeupravená
DopravaAutobus

Origo partneři v Starých Smrkovicích

Popis

Ve Starých Smrkovicích můžete vlastnit atraktivní stavební pozemek o velikosti 1 614 m², umístěný v klidné části obce, stranou od hlavní silnice a v těsné blízkosti menšího lesa.

K pozemku patří platné stavební povolení, kompletní projektová dokumentace i energetický štítek s mimořádně úspornou třídou A. Díky tomu můžete začít stavět okamžitě, bez zdlouhavého vyřizování na úřadech.

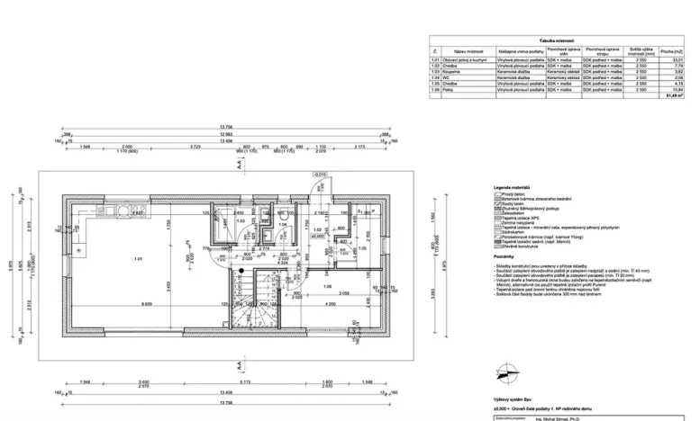
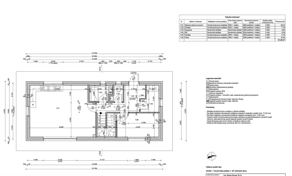
Součástí prodeje je projekt moderního dvoupodlažního domu s dispozicí 5+kk a užitnou plochou 123 m². Návrh počítá s nízkými provozními náklady a šetrností k přírodě. Na pozemku je zajištěna přípojka elektřiny, možnost napojení na obecní vodovod a příjezdová cesta je v osobním vlastnictví.

Staré Smrkovice leží na strategickém místě mezi Hořicemi, Novým Bydžovem a Jičínem. Nabízí veškerou občanskou vybavenost, klid venkova i dobrou dostupnost měst a přírody. V obci nechybí obchod, dětské hřiště ani hospůdka – ideální prostředí pro rodinný život.

Pokud hledáte místo, kde můžete začít stavět bez starostí a zbytečných průtahů, tento pozemek je tou správnou volbou. Zavolejte a domluvte si osobní prohlídku.


Základní informace:
• Velikost pozemku 1614 m²
• GPS: 50.3412236N, 15.4938400E
• Okres: Jičín
• Kraj: Královéhradecký
• Vlastnictví: Osobní
• Voda: Možnost napojení na obecní vodovod
• Elektřina: Na hranici pozemku
• Součástí ceny je i podíl 1/2 na příjezdové cestě o velikosti: 151 m²
• Komunikace: Asfaltová
• Příjezdová cesta: Neupravená
• Doprava: Autobus

Makléř

Máte zájem o tento pozemek?

Tímto, v souladu s nařízením Evropského parlamentu a Rady (EU) 2016/679, v platném znění, prohlašuji, že mi je alespoň 16 let a uděluji tak svůj souhlas se zpracováním zadaných údajů (jméno, telefon, e-mail, ip adresa) společnosti B3 Technology, s.r.o., IČ: 07330600, se sídlem Novostavby 126/23, 435 11 Lom (správce dat), za účelem předání dotazu z tohoto formuláře Vámi vybranému inzerentovi a zpětného kontaktování mé osoby. Osobní údaje bude správce zpracovávat manuálně i automaticky přímo prostřednictvím svých zaměstnanců. Informace předané tímto formulářem budou uloženy v databázi správce maximálně po dobu 10 let. Odvolání souhlasu s uložením a zpracováním poskytnutých dat lze e-mailem na info@origo-reality.cz. V případě podezření na neoprávněné použití Vámi poskytnutých údajů máte právo předat podnět k šetření Úřadu pro ochranu osobních údajů. Více informací
Chystáte se prodat nemovitost?
Pomůžeme Vám!

Přihlášení k odběru

Nenechte si ujít nejnovější nabídky prodeje pozemků pro bydlení v Starých Smrkovicích.