Prodej pozemku pro bydlení, Podbořany - Pšov, 1001 m2 (ID: 1914277)

Podbořany, Pšov

2 490 000 Kč
/za nemovitost
včetně DPH, včetně provize, včetně právního servisu
Hypotéka od 11 129 Kč /měs. Chci hypotéku

Parametry pozemku

AdresaPodbořany, Pšov
ID00904-2
Druh objektuSamostatný
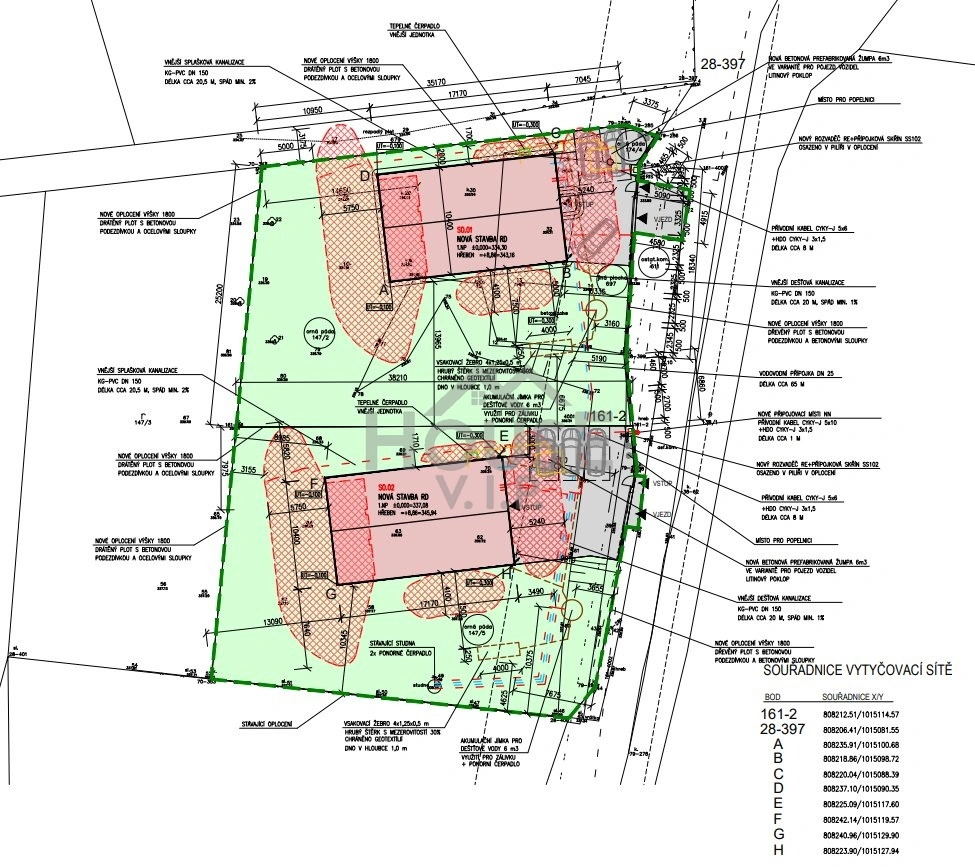
Plocha pozemku1001 m2
Elektřina400V
OdpadČOV pro celý objekt

Origo partneři v Podbořanech

Okna a dveře

Rekonstrukce

Zámečnické práce

Popis

Nabízíme k prodeji slunný stavební pozemek o výměře 1 000 m² v klidné části obce Podbořany s krásným výhledem do zeleně. Součástí prodeje je projekt moderního rodinného domu 4+kk o užitné ploše 194 m², jehož realizace bude provedena přímo současným vlastníkem pozemku – stavební firmou s dlouholetou zkušeností v oboru. Schválení stavebního povolení očekáváme koncem roku 2025.

Podmínka koupě:
Realizace stavby může být provedena vlastníkem pozemku s rozsáhlými zkušenostmi s výstavbou podobných projektů, který zajistí kompletní výstavbu od základů až po dokončení, dle domluveného rozsahu a standardu. Je také možné koupit pozemek ihned s hotovým projektem za uvedenou cenu a realizovat projekt svépomocí.

Cena zahrnuje: pozemek 1 000 m².
Za příplatek je realizace hrubé stavby (základy, nosné konstrukce, střecha, zateplení, okna, dveře, schodiště) + možnost dokončení na klíč dle vizualizace nebo individuálních požadavků.

Financování stavby je možné rozdělit na jednotlivé etapy, takže celou částku nemusíte platit najednou.

Hlavní parametry plánované stavby:
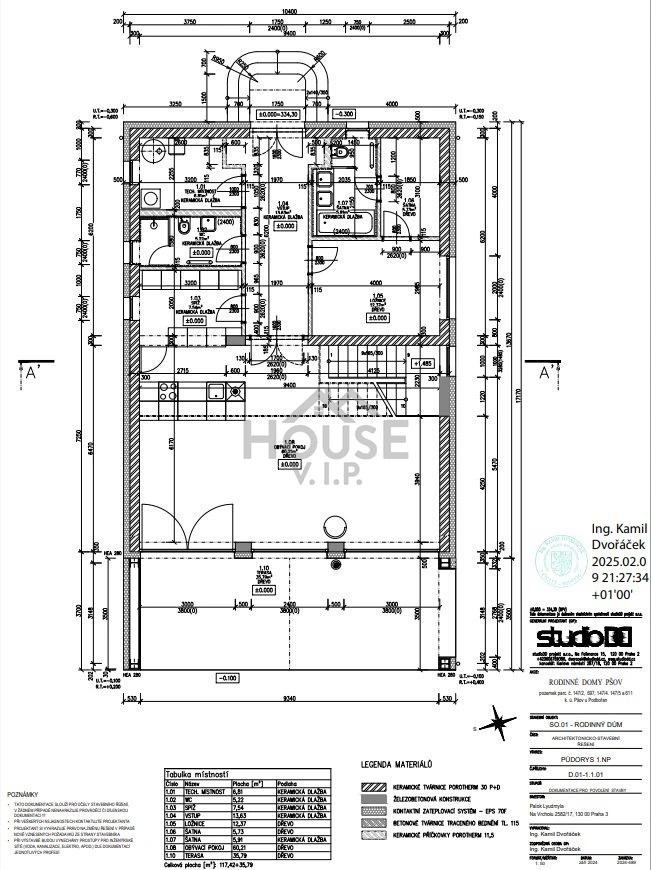
Zastavěná plocha: 178,57 m².
Podlahová plocha: 194,25 m².
 • 1. NP: 117,42 m² + terasa 35,79 m².
 • 2. NP: 76,83 m².
Výška stavby: 8,86 m.

Lokalita: tichá část obce, 350 m od zastávky autobusu směr Žatec.
Plná občanská vybavenost v Podbořanech, dobrá dostupnost do větších měst.
Projekt domu navržen s důrazem na kvalitu materiálů, energetickou úspornost a komfortní bydlení.

Bonus: na prodej je také sousední pozemek o stejné výměře 1 000 m² se stejnou možností realizace.

Konstrukce: dutinové keramické tvárnice, železobetonový monolitický strop (250 mm).
Vytápění: tepelné čerpadlo + krbová vložka.
Další technologie: fotovoltaika, domovní ČOV, přípojka vody ze stávající studny.

Energetická náročnost:
Plánovaný PENB třídy "A" – nízkoenergetický až pasivní dům s velmi nízkými provozními náklady.

Pokud hledáte krásný pozemek s jistotou profesionální a kvalitní realizace moderní stavby, tato nabídka je ideální kombinací investice a budoucího komfortního bydlení.

Makléř

Máte zájem o tento pozemek?

Tímto, v souladu s nařízením Evropského parlamentu a Rady (EU) 2016/679, v platném znění, prohlašuji, že mi je alespoň 16 let a uděluji tak svůj souhlas se zpracováním zadaných údajů (jméno, telefon, e-mail, ip adresa) společnosti B3 Technology, s.r.o., IČ: 07330600, se sídlem Novostavby 126/23, 435 11 Lom (správce dat), za účelem předání dotazu z tohoto formuláře Vámi vybranému inzerentovi a zpětného kontaktování mé osoby. Osobní údaje bude správce zpracovávat manuálně i automaticky přímo prostřednictvím svých zaměstnanců. Informace předané tímto formulářem budou uloženy v databázi správce maximálně po dobu 10 let. Odvolání souhlasu s uložením a zpracováním poskytnutých dat lze e-mailem na info@origo-reality.cz. V případě podezření na neoprávněné použití Vámi poskytnutých údajů máte právo předat podnět k šetření Úřadu pro ochranu osobních údajů. Více informací
Chystáte se prodat nemovitost?
Pomůžeme Vám!

Přihlášení k odběru

Nenechte si ujít nejnovější nabídky prodeje pozemků pro bydlení v Podbořanech.