Prodej rodinného domu, Bernartice - Svatkovice, 104 m2

Bernartice, Svatkovice

5 500 000 Kč
/za nemovitost
Hypotéka od 24 582 Kč /měs. Chci hypotéku

Parametry domu

AdresaBernartice, Svatkovice
ID928500
StavbaSmíšená
Stav objektuVelmi dobrý
VybavenoAno
Druh objektuSamostatný
Lokalita objektuKlidná část obce
VlastnictvíOsobní
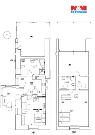
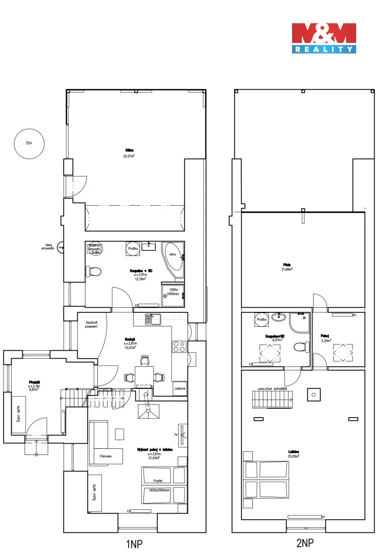
Užitná plocha104 m2
Plocha pozemku690 m2

Origo partneři v Bernarticích

Výkup a prodej starého nábytku

Popis

Nabízíme k prodeji zrekonstruovaný patrový rodinný dům v klidné části obce Svatkovice u Bernartic. Tento slunný dům je ideální pro rodiny hledající komfort a klid. Dispozice 2+1 s další malou místností, v každém NP je koupelna s WC, obytná plocha je 104 m². Dům je vytápěný krbovými kamny s výměníkem a rozvodem do radiátorů. K domu náleží okrasná slunná zahrada o rozloze 511 m² s altánkem, ideální pro relaxaci. Voda je zajištěna z vlastní studny, odpad přes domácí ČOV, v obci je naplánovaná výstavba veřejného vodovodu. Energetická náročnost zatepleného domu je třídy B a zaručuje nízké provozní náklady. Možnost rozšíření o další pokoje v obou podlažích, na vyžádání poskytneme 3D vizualizaci s návrhem změny dispozice. Celková plocha pozemku činí 690 m². Nepropásněte tuto jedinečnou příležitost bydlení v klidné obci Svatkovice.

Makléř

Máte zájem o tento dům?

Tímto, v souladu s nařízením Evropského parlamentu a Rady (EU) 2016/679, v platném znění, prohlašuji, že mi je alespoň 16 let a uděluji tak svůj souhlas se zpracováním zadaných údajů (jméno, telefon, e-mail, ip adresa) společnosti B3 Technology, s.r.o., IČ: 07330600, se sídlem Novostavby 126/23, 435 11 Lom (správce dat), za účelem předání dotazu z tohoto formuláře Vámi vybranému inzerentovi a zpětného kontaktování mé osoby. Osobní údaje bude správce zpracovávat manuálně i automaticky přímo prostřednictvím svých zaměstnanců. Informace předané tímto formulářem budou uloženy v databázi správce maximálně po dobu 10 let. Odvolání souhlasu s uložením a zpracováním poskytnutých dat lze e-mailem na info@origo-reality.cz. V případě podezření na neoprávněné použití Vámi poskytnutých údajů máte právo předat podnět k šetření Úřadu pro ochranu osobních údajů. Více informací
Chystáte se prodat nemovitost?
Pomůžeme Vám!

Přihlášení k odběru

Nenechte si ujít nejnovější nabídky prodeje rodinných domů v Bernarticích (okr. Písek).