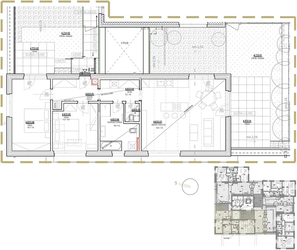
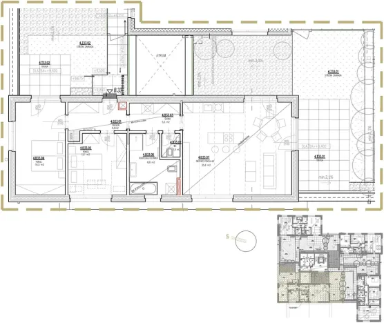
Prodej chalupy, Jablonec nad Nisou, Krkonošská, 86 m2

Krkonošská, Jablonec nad Nisou, Kokonín

9 874 000 Kč
/za nemovitost
Hypotéka od 44 131 Kč /měs. Chci hypotéku

Parametry domu

AdresaKrkonošská, Jablonec nad Nisou, Kokonín
ID353/34 (Chalupa)
StavbaDřevěná
Stav objektuNovostavba
Užitná plocha86 m2
Plocha pozemku79 m2
Třída energetické náročnostiB - Velmi úsporná
Sklep
Parkování

Origo partneři v Jablonci nad Nisou

Rekonstrukce

Úklidové služby

Popis

Chalupa s bezkonkurenčními výhledy - připravena k nastěhování.

Nabízíme k prodeji exkluzivní moderní chalupu o dispozici 3+kk a celkové výměře 89,1 m² dle NOZ (čistá užitná plocha 85,9 m²). Dům je orientován na všechny světové strany, díky čemuž nabízí úchvatné panoramatické výhledy na Jizerské hory a okolní krajinu.

K nemovitosti náleží dvě prostorné terasy, předzahrádka a také praktická sklepní kóje (2,8 m²) přímo u vstupu. V ceně je zahrnuto i vyhrazené parkovací stání – vše již včetně DPH.

Tento dům je ideální volbou pro ty, kteří chtějí rekreační nemovitost bez starostí – dům i zahrada jsou prakticky bezúdržbové! Stačí přijet, vypnout a užít si klid a výhledy na Jizerské hory.

Součástí rezidenčního areálu je pouze omezený počet domů. Pro rezidenty je k dispozici také dětské hřiště a společné zelené plochy.

Lokalita spojuje výhody klidného bydlení v přírodě s plnou občanskou vybaveností města Jablonce nad Nisou. V blízkosti se nachází Černostudniční hřeben, Bártlův vrch i Jizerské hory – ideální pro bydlení, sport a relaxaci po celý rok.

Více informací a kompletní nabídku nemovitostí najdete na webových stránkách projektu – odkaz naleznete níže v sekci Kontakt. Byt prodává přímo developer – neplatíte žádnou provizi!

Makléř

Máte zájem o tento dům?

Tímto, v souladu s nařízením Evropského parlamentu a Rady (EU) 2016/679, v platném znění, prohlašuji, že mi je alespoň 16 let a uděluji tak svůj souhlas se zpracováním zadaných údajů (jméno, telefon, e-mail, ip adresa) společnosti B3 Technology, s.r.o., IČ: 07330600, se sídlem Novostavby 126/23, 435 11 Lom (správce dat), za účelem předání dotazu z tohoto formuláře Vámi vybranému inzerentovi a zpětného kontaktování mé osoby. Osobní údaje bude správce zpracovávat manuálně i automaticky přímo prostřednictvím svých zaměstnanců. Informace předané tímto formulářem budou uloženy v databázi správce maximálně po dobu 10 let. Odvolání souhlasu s uložením a zpracováním poskytnutých dat lze e-mailem na info@origo-reality.cz. V případě podezření na neoprávněné použití Vámi poskytnutých údajů máte právo předat podnět k šetření Úřadu pro ochranu osobních údajů. Více informací
Chystáte se prodat nemovitost?
Pomůžeme Vám!

Přihlášení k odběru

Nenechte si ujít nejnovější nabídky prodeje chalup v Jablonci nad Nisou.