Prodej rodinného domu, Nová Ves, 375 m2

Nová Ves u Albrechtic

24 990 000 Kč
/za nemovitost
Hypotéka od 111 690 Kč /měs. Chci hypotéku

Parametry domu

AdresaNová Ves u Albrechtic
ID305-NP00853
StavbaCihlová
Stav objektuProjekt
VybavenoNe
Typ objektuPatrový
Druh objektuSamostatný
Lokalita objektuSamota
Užitná plocha375 m2
Zastavěná plocha306 m2
Podlahová plocha375 m2
Plocha pozemku73573 m2
Plocha zahrady73573 m2
Třída energetické náročnostiA - Mimořádně úsporná
Ukazatel energetické náročnosti53 kWh/m2 za rok
Elektřina230V, 400V
OdpadČOV pro celý objekt
VodaMístní zdroj vody, Studna
Převod do OV
Parkování

Origo partneři v Nové Vsi

Popis

Rodinný dům 5KK 375m2, pozemek 73573m², stavební pozemek uprostřed lesa a rybníka 7,36 ha, Nová Ves – Žďárský rybník

Výhradně vám nabízíme jedinečný projekt samostatného rodinného domu na výjimečném místě Nová Ves – Žďárský rybník u Týniště nad Orlicí, a to včetně platného stavebního povolení na rodinný dům s vedlejším objektem. Součástí nabídky je rozlehlý pozemek o celkové výměře 73 573 m², ze tří stran lemovaný lesem, s nádherným výhledem na Žďárský rybník. Z toho cca 3 500 m² je určeno pro výstavbu.
Pokud netoužíte po životě ve městě a láká vás klid, příroda, lesy a louky na dosah, pak je toto místo pro vás jako stvořené. Pozemek nabízí soukromí, klid a krásné výhledy do okolní krajiny. Přesto je veškerá občanská vybavenost na dosah – Týniště nad Orlicí je vzdálené 4 km a nájezd na dálnici D11 pouhých 15 km.

Popis pozemku
Celková výměra: 73 573 m², rozděleno na:
1) Stavební pozemek – cca 3 500 m²
V územním plánu veden jako plochy smíšené obytné – venkovské (SV), umožňující:
• výstavbu rodinného domu,
• drobnou podnikatelskou činnost,
• občanskou vybavenost a další.
Regulativy územního plánu:
• maximální výška zástavby: 9 m
• minimální výměra stavebních pozemků: 1 400 m²
• koeficient zastavění: max. 35 %
2) Přírodní a zemědělský pozemek – 67 628 m²
V územním plánu veden jako plochy přírodní a zemědělské (NS)
3) Lesní plocha – 444 m²
V územním plánu jako plochy lesní (NL).
4) Plocha dopravní infrastruktury – 2 001 m²

Stavební povolení a projekt
Na pozemku 362/1 je vydané a pravomocné stavební povolení pro:
• novostavbu rodinného domu včetně technické infrastruktury,
• doplňkové stavby (hospodářský objekt, kryté stání, krytá terasa),
• sjezd a zpevněné plochy,
• vsakovací zařízení,
• oplocení, terénní a sadové úpravy,
• demolici původní zemědělské stavby.
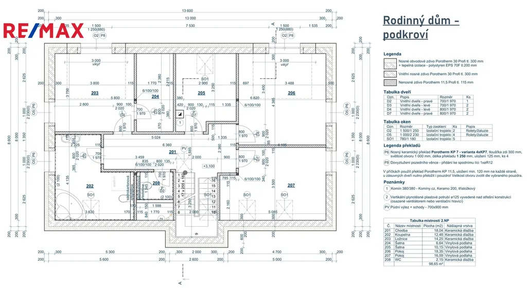
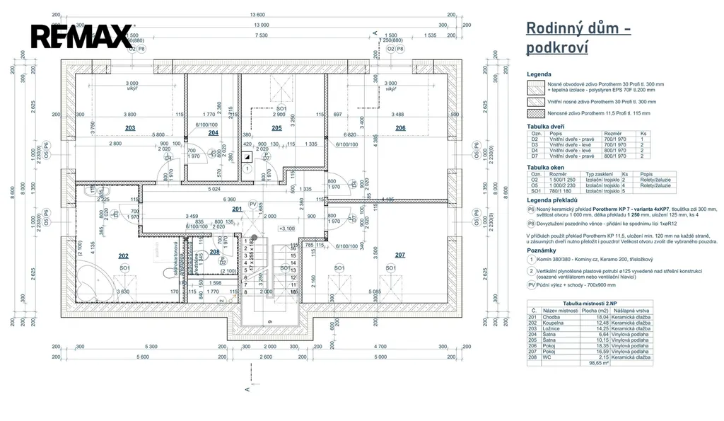
Projektovaný rodinný dům - PENB "A" mimořádně úsporné:
• dispozice: 5+KK,
• obytné podkroví,
• užitná plocha: 194,5 m²,
• krytá terasa: 45 m²,
• kryté stání: 45 m²,
• vedlejší hospodářský objekt 180 m².
Vytápění je řešeno tepelným čerpadlem vzduch–voda.
Na pozemku se již nachází:
• vrtaná studna (48 m),
• elektrická přípojka – sloupek na hranici pozemku,
• domácí ČOV (řešení kanalizace).
Veškerá stavební dokumentace je k nahlédnutí, projekt je již povolen.

Výjimečné místo plné klidu
Pozemek je skrytý před okolním děním, nabízí naprosté soukromí, ticho a atmosféru, kterou jinde nenajdete. Ideální pro okamžitou výstavbu jednoho či více rodinných domů — projekt lze upravit, případně realizovat nový dle vašich představ. Nejdelší strana pozemku sousedí s rybníkem, který nabízí nádherný a ničím nerušený výhled.
Možnosti využití jsou opravdu široké. Ideální, klidná lokalita pro chov koní nebo pro založení vlastní farmy.

Dle územního plánu jsou možné změny projektu, jeho rozšíření i zcela nový projekt podle Vašich představ.
Pokud vás nabídka zaujala, rád vás osobně provedu pozemkem v obci Nová Ves. Těším se na setk Prodávající si vyhrazuje právo vybrat kupujícího na základě jím zvolených kritérií.

Makléř

Máte zájem o tento dům?

Tímto, v souladu s nařízením Evropského parlamentu a Rady (EU) 2016/679, v platném znění, prohlašuji, že mi je alespoň 16 let a uděluji tak svůj souhlas se zpracováním zadaných údajů (jméno, telefon, e-mail, ip adresa) společnosti B3 Technology, s.r.o., IČ: 07330600, se sídlem Novostavby 126/23, 435 11 Lom (správce dat), za účelem předání dotazu z tohoto formuláře Vámi vybranému inzerentovi a zpětného kontaktování mé osoby. Osobní údaje bude správce zpracovávat manuálně i automaticky přímo prostřednictvím svých zaměstnanců. Informace předané tímto formulářem budou uloženy v databázi správce maximálně po dobu 10 let. Odvolání souhlasu s uložením a zpracováním poskytnutých dat lze e-mailem na info@origo-reality.cz. V případě podezření na neoprávněné použití Vámi poskytnutých údajů máte právo předat podnět k šetření Úřadu pro ochranu osobních údajů. Více informací
Chystáte se prodat nemovitost?
Pomůžeme Vám!

Přihlášení k odběru

Nenechte si ujít nejnovější nabídky prodeje rodinných domů v Nové Vsi (okr. Rychnov nad Kněžnou).