Prodej pozemku pro bydlení, Velká Polom, Okružní, 2292 m2 (ID: 1912344)

Okružní, Velká Polom

6 500 000 Kč
/za nemovitost
Hypotéka od 29 051 Kč /měs. Chci hypotéku

Parametry pozemku

AdresaOkružní, Velká Polom
ID0373
Lokalita objektuKlidná část obce
Plocha pozemku2292 m2
PlynPlynovod
OdpadVeřejná kanalizace
KomunikaceAsfaltová
Převod do OV

Origo partneři v Velké Polomi

Popis

Nabízíme Vám k prodeji jeden z nejkrásnějších pozemků na ulici Okružní v atraktivní části obce Velká Polom, Ostrava.

Stavební pozemek o velikosti 1329m2 + les 963m2 s nádhernou polohou, tvarem ideálního čtverce zaručuje soukromí, prestiž a možnost krásného bydlení i tomu nejnáročnějšímu klientovi.
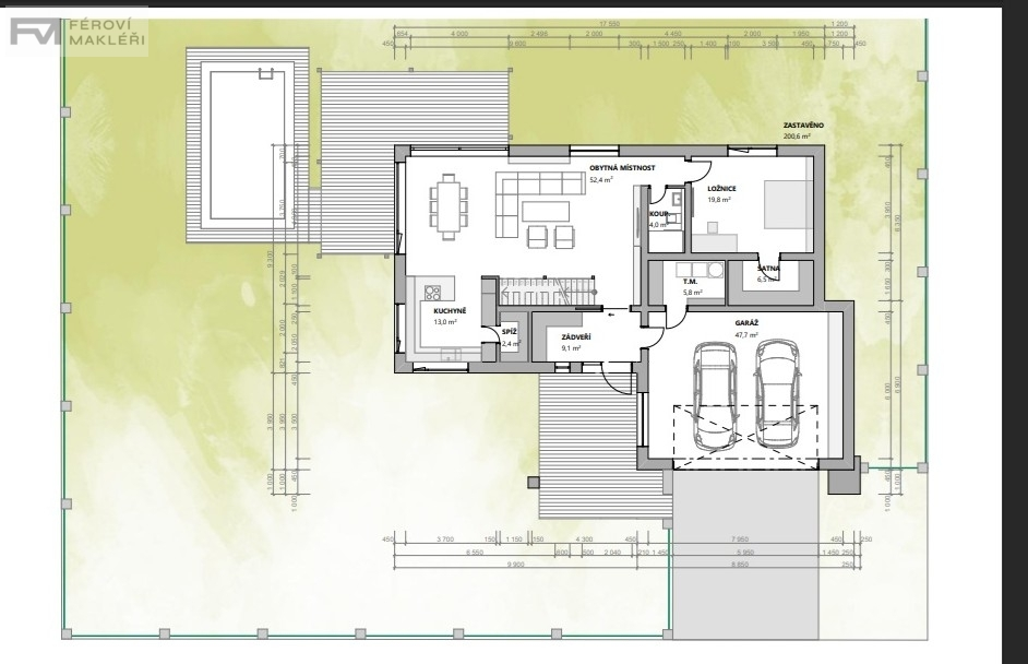
Součástí pozemku je vypracovaný projekt od renomovaných architektů z Ateliéru Pod věží - dům 5kk s dvojgaráží. Projekt má schválené stavební povolení, lze ihned stavět.

Pokud hledáte stavební pozemek propojený s přírodou, velice hezkým okolím a s dostupností do Ostravy Poruby do 5 minut neváhejte mi kdykoliv zavolat, poskytnu Vám více informací.

Makléř

Máte zájem o tento pozemek?

Tímto, v souladu s nařízením Evropského parlamentu a Rady (EU) 2016/679, v platném znění, prohlašuji, že mi je alespoň 16 let a uděluji tak svůj souhlas se zpracováním zadaných údajů (jméno, telefon, e-mail, ip adresa) společnosti B3 Technology, s.r.o., IČ: 07330600, se sídlem Novostavby 126/23, 435 11 Lom (správce dat), za účelem předání dotazu z tohoto formuláře Vámi vybranému inzerentovi a zpětného kontaktování mé osoby. Osobní údaje bude správce zpracovávat manuálně i automaticky přímo prostřednictvím svých zaměstnanců. Informace předané tímto formulářem budou uloženy v databázi správce maximálně po dobu 10 let. Odvolání souhlasu s uložením a zpracováním poskytnutých dat lze e-mailem na info@origo-reality.cz. V případě podezření na neoprávněné použití Vámi poskytnutých údajů máte právo předat podnět k šetření Úřadu pro ochranu osobních údajů. Více informací
Chystáte se prodat nemovitost?
Pomůžeme Vám!

Přihlášení k odběru

Nenechte si ujít nejnovější nabídky prodeje pozemků pro bydlení v Velké Polomi.