Prodej rodinného domu, Hodslavice, 211 m2 (ID: 1912048)

Hodslavice

Cena na vyžádání
/za nemovitost
Získejte výhodnou HYPOTÉKU Chci hypotéku

Parametry domu

AdresaHodslavice
ID922248
StavbaCihlová
Stav objektuPřed rekonstrukcí
Druh objektuSamostatný
Užitná plocha211 m2
Zastavěná plocha137 m2
Podlahová plocha178 m2
Plocha pozemku840 m2
Plocha zahrady369 m2
Třída energetické náročnostiG - Mimořádně nehospodárná
PlynPlynovod
OdpadVeřejná kanalizace
KomunikaceAsfaltová
DopravaSilnice
VodaVodovod
Sklep
Parkování

Origo partneři v Hodslavicích

Popis

Představuji vám unikátní příležitost ke koupi vícegeneračního rodinného domu s vytvořeným kompletním projektem na rekonstrukci, situovaného v malebné obci Hodslavice. Dům je aktuálně členěn do dvou nadzemních podlaží a jednoho podzemního. Okolí a lokalita nabízí idylický venkovský život s dobrou dostupností do velkých měst a veškerou občanskou vybavenost. Přiložené vizualizace odpovídají připravenému projektu na rekonstrukci, ale není podmínkou dle tohoto projektu rekonstrukci realizovat.

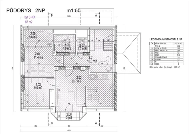
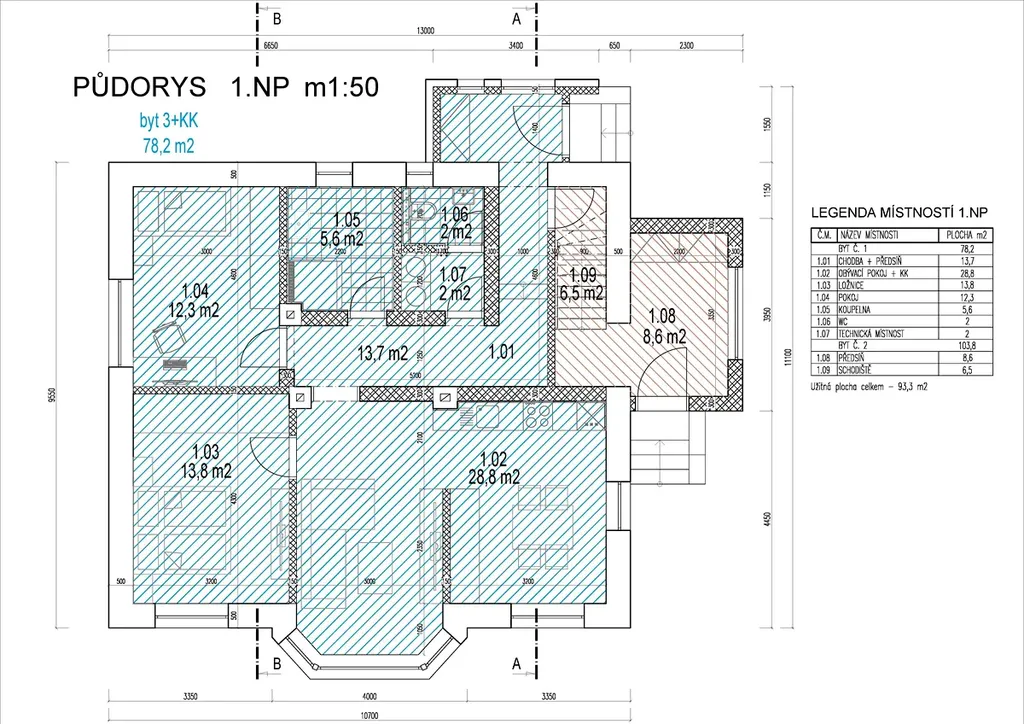
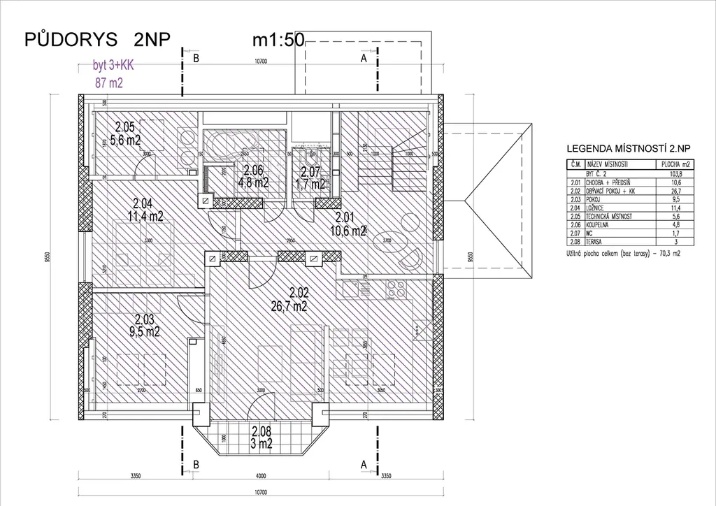
Dům má celkovou obytnou plochu 178 m² a užitkovou plochu 211 m², která je rozložena mezi dvěma nadzemními patry a jedním podzemním podlažím. Dle vytvořené studie a stavebního projektu lze dům přestavět na dvě samostatná bytové jednotky s dispozicí 3+kk, kdy byt ve 2.NP disponuje balkonem a menším podkroví. Obě bytové jednotky budou mít svoje vlastní, oddělené a samostatně přístupné sklepní prostory. Spodní byt v přízemí nabízí potom 78,2 m² užitné plochy a byt ve druhém podlaží potom 87 m². Oba byty počítají s vlastním vstupem, a tedy jsou absolutně na sobě nezávislé. Díky tomu je dům a byty ideální pro rodiny hledající prostor a soukromí. Nicméně lze zachovat aktuální společné prostory a pak může být dům kompletně vícegenerační a nabízet více společných prostor pro rodiny. V současné stavu je dům určen k rekonstrukci, což představuje skvělou příležitost přizpůsobit interiér podle vlastních představ a potřeb, kdy se projekt může změnit dle představ nových majitelů. Po vybudování samostatných bytů lze využít jako investiční příležitost se ziskem z pronájmů.

U domu může vzniknout dle studie 5 parkovacích míst na pozemku za bránou. Aktuálně se počítá s využitím pozemku, který je zastavěný hospodářským stavením, a tento po demolici využít na výstavbu druhého rodinného domu. Není to však podmínkou.

Hodslavice jsou položeny ideálně uprostřed cesty mezi Novým Jičínem a Valašským Meziříčím, kdy do obou měst se dostanete pohodlně autobusem či do 10 minut osobním vozidlem. Dům s projektem je k dispozici ihned a nákup je možný prostřednictvím hypotečního úvěr jehož nejlepší podmínky vám pomohu zajistit.

Dům je aktuálně napojen na elektřinu a obecní vodovod. Plynová přípojka a kanalizace se nachází před domem a je možné dům bez problémů napojit. V projektu se počítá s elektrickým kotlem na vytápění a ohřev vody.

Těším se, až vám tento dům a projekt na rekonstrukci budu moci představit osobně. Martin Matela LEV REALIT

Makléř

Máte zájem o tento dům?

Tímto, v souladu s nařízením Evropského parlamentu a Rady (EU) 2016/679, v platném znění, prohlašuji, že mi je alespoň 16 let a uděluji tak svůj souhlas se zpracováním zadaných údajů (jméno, telefon, e-mail, ip adresa) společnosti B3 Technology, s.r.o., IČ: 07330600, se sídlem Novostavby 126/23, 435 11 Lom (správce dat), za účelem předání dotazu z tohoto formuláře Vámi vybranému inzerentovi a zpětného kontaktování mé osoby. Osobní údaje bude správce zpracovávat manuálně i automaticky přímo prostřednictvím svých zaměstnanců. Informace předané tímto formulářem budou uloženy v databázi správce maximálně po dobu 10 let. Odvolání souhlasu s uložením a zpracováním poskytnutých dat lze e-mailem na info@origo-reality.cz. V případě podezření na neoprávněné použití Vámi poskytnutých údajů máte právo předat podnět k šetření Úřadu pro ochranu osobních údajů. Více informací
Chystáte se prodat nemovitost?
Pomůžeme Vám!

Přihlášení k odběru

Nenechte si ujít nejnovější nabídky prodeje rodinných domů v Hodslavicích.