Prodej rodinného domu, Vyškov, Havlíčkova, 368 m2

Havlíčkova, Vyškov-Předměstí

13 500 000 Kč
/za nemovitost
+ provize Rk, včetně právního servisu
Hypotéka od 60 337 Kč /měs. Chci hypotéku

Parametry domu

AdresaHavlíčkova, Vyškov-Předměstí
StavbaCihlová
Stav objektuDobrý
Druh objektuRohový
Lokalita objektuCentrum obce
Užitná plocha368 m2
Zastavěná plocha338 m2
Plocha pozemku602 m2
Třída energetické náročnostiG - Mimořádně nehospodárná
Elektřina230V
PlynPlynovod
OdpadVeřejná kanalizace
KomunikaceAsfaltová
DopravaVlak, Dálnice, Silnice, Autobus
VodaVodovod
Sklep
Parkování

Origo partneři v Vyškově

Popis

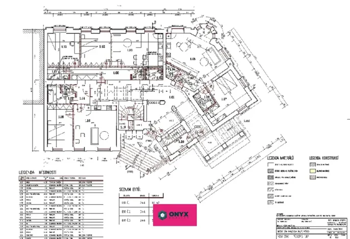
Nepřehlédnutelná, atraktivní nemovitost ve Vyškově na ul Havlíčkova ke komerčnímu využití - dalšímu rozvoji/developmentu či bydlení. Tato budova z první republiky dokáže být reprezentativním sídlem či netradičním rodinným domem. Zároveň má zpracovanou PD pro rekonstrukci na 6 bytových jednotek, kladná stanoviska DOSS s jedinou výjimkou - odbor dopravy, zde je nutné schválení využití stávajícího sjezdu pro tento projekt var. řešením je dohoda o parkování se sousedem - předjednáno. V projektu se počítá s výnosem cca 368m2 plochy nových bytů. Pozemek o velikosti 602m2 skýtá dostatek prostoru pro zajištění parkovacích míst. Inženýrské sítě jsou k této nemovitosti přivedené všechny, objekt má funkční hydroizolaci proti zemní vlhkosti (vyjma 1.PP). V rámci inzerce uvádíme i část PD, ze které je patrný rozsah rekonstrukce i dispozice navržených bytů.
Tak jak se v současné době Vyškov rozvíjí nabývá i potenciál tato nemovitost.

Makléř

Máte zájem o tento dům?

Tímto, v souladu s nařízením Evropského parlamentu a Rady (EU) 2016/679, v platném znění, prohlašuji, že mi je alespoň 16 let a uděluji tak svůj souhlas se zpracováním zadaných údajů (jméno, telefon, e-mail, ip adresa) společnosti B3 Technology, s.r.o., IČ: 07330600, se sídlem Novostavby 126/23, 435 11 Lom (správce dat), za účelem předání dotazu z tohoto formuláře Vámi vybranému inzerentovi a zpětného kontaktování mé osoby. Osobní údaje bude správce zpracovávat manuálně i automaticky přímo prostřednictvím svých zaměstnanců. Informace předané tímto formulářem budou uloženy v databázi správce maximálně po dobu 10 let. Odvolání souhlasu s uložením a zpracováním poskytnutých dat lze e-mailem na info@origo-reality.cz. V případě podezření na neoprávněné použití Vámi poskytnutých údajů máte právo předat podnět k šetření Úřadu pro ochranu osobních údajů. Více informací
Chystáte se prodat nemovitost?
Pomůžeme Vám!

Přihlášení k odběru

Nenechte si ujít nejnovější nabídky prodeje rodinných domů v Vyškově.