Prodej bytu 4+1, Praha - Troja, Mazurská, 92 m2 (ID: 1911271)

Mazurská, Praha, Troja

10 350 000 Kč
/za nemovitost
Hypotéka od 46 258 Kč /měs. Chci hypotéku

Parametry bytu

AdresaMazurská, Praha, Troja
IDMAT 432
StavbaPanelová
Stav objektuVelmi dobrý
Patro3.
VlastnictvíOsobní
Užitná plocha92 m2
Sklep
Lodžie

Origo partneři v Praze 8

Stěhovací služby

Výkup a prodej starého nábytku

Popis

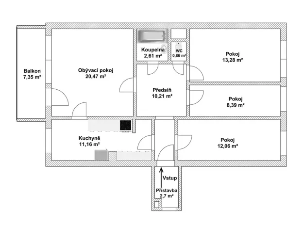
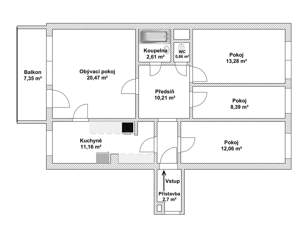
Nabízíme Vám k prodeji prostorný byt o dispozici 4+1 a celkové výměře 92 m2, který se nachází ve 2. patře udržovaného panelového domu s prostorným výtahem, v oblíbené a klidné lokalitě Praha 8 -Troja – ulice Mazurská.
Byt je určen k rekonstrukci dle vlastních potřeb, ale jinak je v dobrém stavu. Dům je po kompletní revitalizaci.
Dispozice zahrnuje čtyři samostatné pokoje, kuchyň, předsíň, koupelnu (zděné jádro), samostatné WC a prostornou atypickou zasklenou lodžii. K bytu náleží také sklepní kóje (2,8 m2). Byt je orientován na dvě světové strany – jih a sever. Vytápění zajišťuje centrální dálkový systém.
Lokalita Troja je velmi vyhledávaná díky své klidné atmosféře, množství zeleně a výborné dostupnosti do centra města.
Jedná se o skvělou lokalitu pro milovníky komfortu, zeleně a klidu. Před domem autobusová zastávka Poliklinika Mazurská - 7 minut u metra C- Kobylisy. Do centra města se dostanete za 20 minut autem a 35 minut městskou hromadnou dopravou. Botanická zahrada je pár minut chůze (můžete ji využívat jako park, sousedské permanentky za sto korun ročně), zoologická zahrada pár minut chůze. V blízkém okolí je spousta zeleně, včetně pražské ZOO a botanické zahrady. V pěší vzdálenosti najdete Mateřskou i základní školu, Gymnázium Ústavní, knihovnu, lékárnu, parky, Polikliniku Mazurská, poštu, Supermarkety (Albert, Billa, Penny i Lidl), restaurace a další obchody a služby. V blízkosti je i nové obchodní centrum Krakov, nebo Aquacentrum Šutka.
V případě zájmu o prohlídku či více informací mne neváhejte kontaktovat.

Makléř

Máte zájem o tento byt?

Tímto, v souladu s nařízením Evropského parlamentu a Rady (EU) 2016/679, v platném znění, prohlašuji, že mi je alespoň 16 let a uděluji tak svůj souhlas se zpracováním zadaných údajů (jméno, telefon, e-mail, ip adresa) společnosti B3 Technology, s.r.o., IČ: 07330600, se sídlem Novostavby 126/23, 435 11 Lom (správce dat), za účelem předání dotazu z tohoto formuláře Vámi vybranému inzerentovi a zpětného kontaktování mé osoby. Osobní údaje bude správce zpracovávat manuálně i automaticky přímo prostřednictvím svých zaměstnanců. Informace předané tímto formulářem budou uloženy v databázi správce maximálně po dobu 10 let. Odvolání souhlasu s uložením a zpracováním poskytnutých dat lze e-mailem na info@origo-reality.cz. V případě podezření na neoprávněné použití Vámi poskytnutých údajů máte právo předat podnět k šetření Úřadu pro ochranu osobních údajů. Více informací
Chystáte se prodat nemovitost?
Pomůžeme Vám!

Přihlášení k odběru

Nenechte si ujít nejnovější nabídky prodeje bytů 4+1 v Praze 8.