Pronájem bytu 3+kk, Brno - Trnitá, Řeznická, 65 m2

Řeznická, Brno-střed

23 000 Kč
/za měsíc
+ 2 500 Kč za energie, 23 000 Kč kauce , + provize RK
Získejte výhodnou HYPOTÉKU Chci hypotéku

Parametry bytu

AdresaŘeznická, Brno-střed
ID18203
StavbaCihlová
Stav objektuVelmi dobrý
Patro3. z 4
VlastnictvíOsobní
Užitná plocha65 m2
Zastavěná plocha331 m2
Podlahová plocha73 m2
Třída energetické náročnostiG - Mimořádně nehospodárná
PlynPlynovod
OdpadVeřejná kanalizace
DopravaMHD
Výtah
Parkování

Origo partneři v Brně

Popis

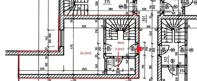
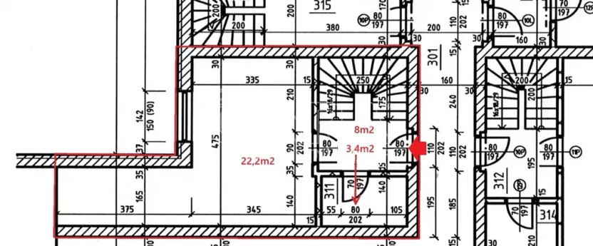
Nabízíme k pronájmu atypický mezonetový byt o velikosti 3+kk, nacházející se na ulici Řeznická, v části obce Trnitá v Brně. Tento jedinečný byt s celkovou plochou 65 m² se nachází ve třetím a čtvrtém nadzemní podlaží cihlového domu.

Dispozice:
3.NP: obývací pokoj s kuchyňským koutem 22,2 m2, předsíň 8 m2, koupelna se sprchovým koutem 3,4 m2
4.NP: pokoj 10,2 m2, pokoj 8,8 m2, koupelna s vanou 5.6 m2 chodba 7,6 m2

Velkou devizou bytu jsou dvě koupelny - jedna se sprchovým koutem, druhá s vanou.
Byt se nabízí, kromě kuchyňské linky s vestavěnými spotřebiči, nezařízená nábytkem. V bytě je k dispozici plynový kotel pro vytápění a elektrický bojler na ohřev vody.

Dům je ve velmi dobrém stavu a je vybaven výtahem. K nemovitosti náleží také jedno parkovací místo, které je k dispozici za 1 000 Kč měsíčně.

Okolí je dobře dostupné díky MHD, což zajišťuje snadný přístup do dalších částí města. V blízkosti se nachází veškerá občanská vybavenost, což naplňuje potřeby moderního bydlení. Vhodné pro max 4 osoby.

Makléř

Máte zájem o tento byt?

Tímto, v souladu s nařízením Evropského parlamentu a Rady (EU) 2016/679, v platném znění, prohlašuji, že mi je alespoň 16 let a uděluji tak svůj souhlas se zpracováním zadaných údajů (jméno, telefon, e-mail, ip adresa) společnosti B3 Technology, s.r.o., IČ: 07330600, se sídlem Novostavby 126/23, 435 11 Lom (správce dat), za účelem předání dotazu z tohoto formuláře Vámi vybranému inzerentovi a zpětného kontaktování mé osoby. Osobní údaje bude správce zpracovávat manuálně i automaticky přímo prostřednictvím svých zaměstnanců. Informace předané tímto formulářem budou uloženy v databázi správce maximálně po dobu 10 let. Odvolání souhlasu s uložením a zpracováním poskytnutých dat lze e-mailem na info@origo-reality.cz. V případě podezření na neoprávněné použití Vámi poskytnutých údajů máte právo předat podnět k šetření Úřadu pro ochranu osobních údajů. Více informací
Chystáte se prodat nemovitost?
Pomůžeme Vám!

Přihlášení k odběru

Nenechte si ujít nejnovější nabídky pronájmu bytů 3+kk v Brně.