Prodej rodinného domu, Vrábče, 180 m2 (ID: 1910141)

Vrábče, Koroseky

12 900 000 Kč
/za nemovitost
Hypotéka od 57 655 Kč /měs. Chci hypotéku

Parametry domu

AdresaVrábče, Koroseky
ID00526
StavbaSmíšená
Stav objektuVelmi dobrý
VybavenoAno
Druh objektuSamostatný
Lokalita objektuPolosamota
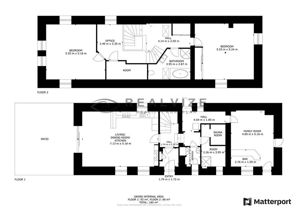
Užitná plocha180 m2
Zastavěná plocha126 m2
Plocha pozemku207 m2
Třída energetické náročnostiG - Mimořádně nehospodárná
KomunikaceAsfaltová
TelekomunikaceTelefon, Internet
DopravaSilnice
VodaVodovod
Topné tělesoPodlahové vytápění, Radiátory, Krbová kamna
Zdroj teplé vodyTepelné čerpadlo
Garáž
Výtah

Origo partneři v Vrábči

Výkup a prodej starého nábytku

Popis

Nabízíme k prodeji samostatně stojící rodinný dům po rekonstrukci, který se nachází v klidné lokalitě Koroseky-Vrábče u Českých Budějovic. Dům má užitnou plochu 180 m2, stojí na pozemku o velikosti 207 m2 a je ideální pro rodinu, která hledá pohodlí, klid a minimum starostí s údržbou.

V domě najdete 4 pokoje, 2 koupelny a garáž pro jedno auto. Dům je rozložen do dvou podlaží, což umožňuje praktické a pohodlné využití prostoru.

Vytápění zajišťuje podlahové topení, topení na tuhá paliva s výměníkem, tepelné čerpadlo a fotovoltaika – to vše výrazně snižuje náklady na provoz.
Napojení na obecní vodovod, odpad řešen čtyřkomorovým septikem.

Dům se nachází ve velmi klidné lokalitě obklopené přírodou, ideální pro ty, kteří chtějí klidné bydlení bez nutnosti starat se o velký pozemek – zahrada je přesně tak akorát.

Skvělá volba pro rodinu, která hledá harmonické a udržitelné bydlení mimo městský ruch.

Více informací na vyžádání u makléře. Budeme se těšit na prohlídce.

Makléř

Máte zájem o tento dům?

Tímto, v souladu s nařízením Evropského parlamentu a Rady (EU) 2016/679, v platném znění, prohlašuji, že mi je alespoň 16 let a uděluji tak svůj souhlas se zpracováním zadaných údajů (jméno, telefon, e-mail, ip adresa) společnosti B3 Technology, s.r.o., IČ: 07330600, se sídlem Novostavby 126/23, 435 11 Lom (správce dat), za účelem předání dotazu z tohoto formuláře Vámi vybranému inzerentovi a zpětného kontaktování mé osoby. Osobní údaje bude správce zpracovávat manuálně i automaticky přímo prostřednictvím svých zaměstnanců. Informace předané tímto formulářem budou uloženy v databázi správce maximálně po dobu 10 let. Odvolání souhlasu s uložením a zpracováním poskytnutých dat lze e-mailem na info@origo-reality.cz. V případě podezření na neoprávněné použití Vámi poskytnutých údajů máte právo předat podnět k šetření Úřadu pro ochranu osobních údajů. Více informací
Chystáte se prodat nemovitost?
Pomůžeme Vám!

Přihlášení k odběru

Nenechte si ujít nejnovější nabídky prodeje rodinných domů v Vrábči.