Prodej bytu 3+kk, Orihuela, Španělsko, 60 m2 (ID: 1909773)

Orihuela

157 500 €
/za nemovitost

Parametry bytu

AdresaOrihuela
IDF20215
StavbaCihlová
Stav objektuNovostavba
Patro3. z 3
VybavenoČástečně
Lokalita objektuKlidná část obce
VlastnictvíOsobní
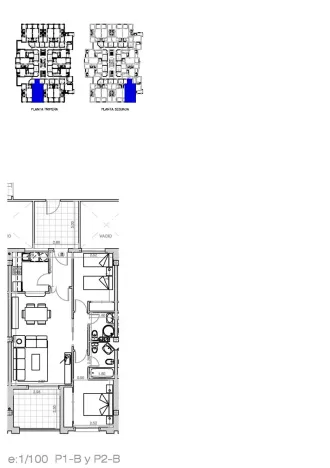
Užitná plocha60 m2
Podlahová plocha69 m2
Elektřina230V
OdpadVeřejná kanalizace
TopeníLokální elektrické
TelekomunikaceInternet
DopravaDálnice, Silnice, MHD
VodaVodovod
Terasa
Výtah
Parkování

Origo partneři

Popis

V srdci vyhledávané oblasti Lomas de Cabo Roig vzniká projekt, který spojuje středomořský klid, moderní bydlení a skvělou dostupnost k moři. Tento zrekonstruovaný apartmán 3+kk o celkové ploše 69 m² nabízí příjemný prostor pro život i rekreaci a svou polohou jen 2 km od pobřeží patří mezi místa, kde se každý den žije o trochu lehčeji.
Byt se nachází v renovovaném rezidenčním komplexu. Interiér je navržen tak, aby působil vzdušně a příjemně – obývací prostor plynule navazuje na kuchyň a díky velkým oknům je naplněn světlem po celý den. Dvě samostatné ložnice poskytují klid a soukromí, dvě moderní koupelny doplňují praktické a pohodlné zázemí. K bytu patří také terasa o velikosti 17 m², ideální pro posezení při západu slunce nebo klidné snídaně pod širým nebem.
Komplex nabízí obyvatelům pěkně upravené zahrady, společný bazén a výtah, což přináší pohodlí v každodenním životě. K dispozici jsou také podzemní parkovací místa za příplatek. Celý projekt působí čistě a moderně a je koncipován tak, aby poskytoval komfort jak pro trvalé bydlení, tak pro rekreační pobyty.
Lomas de Cabo Roig patří mezi nejatraktivnější části Orihuela Costa. V okolí najdete restaurace, obchody, supermarkety i nákupní centrum Zenia Boulevard. Milovníci golfu ocení blízkost hřiště Villamartín a ti, kteří hledají přístup k moři, mají na dosah jedny z nejkrásnějších pláží oblasti – Cabo Roig a Campoamor. Výborné dopravní napojení umožňuje snadný přesun po regionu a rychlý dojezd na letiště v Alicante.
Tento apartmán představuje příležitost, která spojuje výhodnou investici s možností vytvořit si místo, kde se budete rádi vracet. Nabízí kvalitní rekonstrukci, pohodlné zázemí a skvělou polohu, která zaručuje příjemný život pod španělským sluncem.
Pokud vás tento byt zaujal, rád poskytnu více informací, domluvím prohlídku a zajistím celý proces tak, abyste si mohli brzy užívat vlastní domov na Costa Blanca.

Makléř

Máte zájem o tento byt?

Tímto, v souladu s nařízením Evropského parlamentu a Rady (EU) 2016/679, v platném znění, prohlašuji, že mi je alespoň 16 let a uděluji tak svůj souhlas se zpracováním zadaných údajů (jméno, telefon, e-mail, ip adresa) společnosti B3 Technology, s.r.o., IČ: 07330600, se sídlem Novostavby 126/23, 435 11 Lom (správce dat), za účelem předání dotazu z tohoto formuláře Vámi vybranému inzerentovi a zpětného kontaktování mé osoby. Osobní údaje bude správce zpracovávat manuálně i automaticky přímo prostřednictvím svých zaměstnanců. Informace předané tímto formulářem budou uloženy v databázi správce maximálně po dobu 10 let. Odvolání souhlasu s uložením a zpracováním poskytnutých dat lze e-mailem na info@origo-reality.cz. V případě podezření na neoprávněné použití Vámi poskytnutých údajů máte právo předat podnět k šetření Úřadu pro ochranu osobních údajů. Více informací
Chystáte se prodat nemovitost?
Pomůžeme Vám!

Přihlášení k odběru

Nenechte si ujít nejnovější nabídky prodeje bytů 3+kk.