Prodej rodinného domu, Hradec Králové, Nová, 102 m2

Nová, Hradec Králové

8 900 000 Kč
/za nemovitost
Hypotéka od 39 778 Kč /měs. Chci hypotéku

Parametry domu

AdresaNová, Hradec Králové
IDN2516883
StavbaCihlová
Stav objektuVelmi dobrý
VybavenoČástečně
Typ objektuPatrový
Druh objektuSamostatný
Lokalita objektuKlidná část obce
Užitná plocha102 m2
Zastavěná plocha85 m2
Podlahová plocha106 m2
Plocha pozemku499 m2
Plocha zahrady297 m2
Třída energetické náročnostiG - Mimořádně nehospodárná
Elektřina230V, 400V
PlynPlynovod
OdpadVeřejná kanalizace
KomunikaceAsfaltová
DopravaVlak, Dálnice, Silnice, MHD, Autobus
VodaMístní zdroj vody, Studna
Garáž
Sklep
Převod do OV
Parkování

Origo partneři v Hradci Králové

Popis

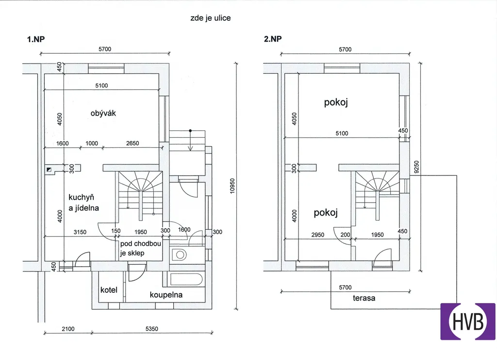
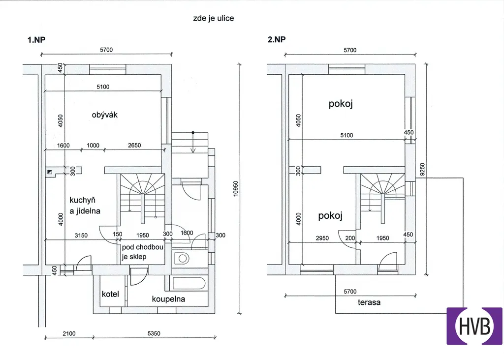
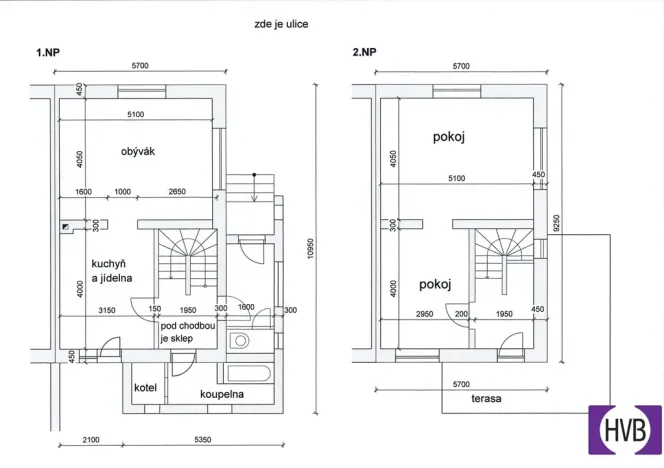
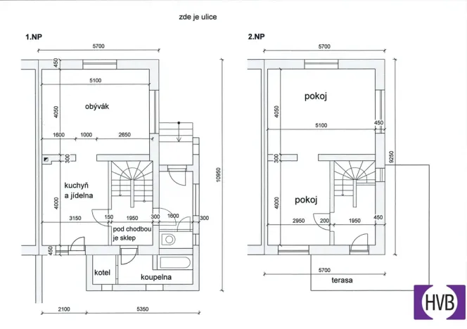
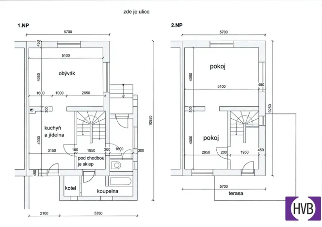
Nabízíme k prodeji rodinný dům 3+1, 101m2, na pozemku 499m2, lokalita Hradec Králové - Svobodné Dvory, ulice Nová. Jedná se o dvoupodlažní dům kolaudovaný v 50. letech minulého století, rekonstruován před cca 10 ti lety. V přízemí se nachází velký obývací pokoj a velká jídelna se vstupem na zahradu, vstupní prostor, dále koupelna s vanou, místnost pro kotel a chodba se schodišti do sklepa a do 2.NP.
Ve 2.NP se nachází dva pokoje a chodba. Část domu je podsklepená.
Součástí domu je větší zděná garáž s dílnou a zděná kůlna. Za těmito stavbami se se nachází klidná zahrada cca 200m2. Nemovitost se nachází v klidné oblasti krajského města v okolní zástavbě RD a luk.
Možnost financovat hypotékou, výhodně vyřídíme. Bližší info telefonicky nebo mailem.

Makléř

Máte zájem o tento dům?

Tímto, v souladu s nařízením Evropského parlamentu a Rady (EU) 2016/679, v platném znění, prohlašuji, že mi je alespoň 16 let a uděluji tak svůj souhlas se zpracováním zadaných údajů (jméno, telefon, e-mail, ip adresa) společnosti B3 Technology, s.r.o., IČ: 07330600, se sídlem Novostavby 126/23, 435 11 Lom (správce dat), za účelem předání dotazu z tohoto formuláře Vámi vybranému inzerentovi a zpětného kontaktování mé osoby. Osobní údaje bude správce zpracovávat manuálně i automaticky přímo prostřednictvím svých zaměstnanců. Informace předané tímto formulářem budou uloženy v databázi správce maximálně po dobu 10 let. Odvolání souhlasu s uložením a zpracováním poskytnutých dat lze e-mailem na info@origo-reality.cz. V případě podezření na neoprávněné použití Vámi poskytnutých údajů máte právo předat podnět k šetření Úřadu pro ochranu osobních údajů. Více informací
Chystáte se prodat nemovitost?
Pomůžeme Vám!

Přihlášení k odběru

Nenechte si ujít nejnovější nabídky prodeje rodinných domů v Hradci Králové.