Pronájem bytu 2+kk, Kutná Hora, Za Lidkou, 56 m2

Za Lidkou, Kutná Hora, Hlouška

15 900 Kč
/za měsíc
Získejte výhodnou HYPOTÉKU Chci hypotéku

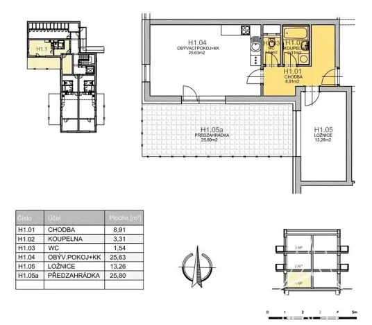
Parametry bytu

AdresaZa Lidkou, Kutná Hora, Hlouška
ID00640
StavbaCihlová
Stav objektuNovostavba
Patro1.
VlastnictvíOsobní
Užitná plocha56 m2
Plocha zahrady26 m2
Třída energetické náročnostiA - Mimořádně úsporná
Ukazatel energetické náročnosti75 kWh/m2 za rok
OdpadVeřejná kanalizace
DopravaVlak, MHD, Autobus
VodaVodovod
Topné tělesoRadiátory
Zdroj topeníCentrální dálkové
Zdroj teplé vodyCentrální dálkový ohřev
Sklep
Parkování

Origo partneři v Kutné Hoře

Popis

Nabízím k pronájmu elegantní a moderně řešený byt 2+kk o výměře 56 m², situovaný v přízemí novostavby v ulici Za Lidkou v Kutné Hoře. Součástí bytu je upravená předzahrádka, která poskytuje příjemný venkovní prostor k odpočinku.

Dispozice zahrnuje prostorný obývací pokoj s moderní kuchyňskou linkou vybavenou troubou, sklokeramickou varnou deskou, myčkou a lednicí s mrazákem. Samostatná ložnice nabízí klidovou zónu s dostatkem soukromí. Předzahrádka je částečně dlážděná, doplněná o travnatou plochu, oplocení a venkovní přívod vody.
Koupelna je vybavena vanou, WC je samostatné. K bytu náleží rovněž sklepní prostor. Vstup do domu je zajištěn moderním systémem s displejem a kamerou.

Nábytek na fotografiích není součástí pronájmu.

Nájemné 15 900 Kč + 1000 Kč parkovací místo + zálohy 2 700 Kč pro 2 osoby (zahrnuje teplo, studená + teplá voda, výtah, osvětlení spol. prostor, úklid, servisní poplatky.
Elektřinu si nájemník převádí na sebe.
Vratná kauce ve výši 25 000 Kč.
Provize RK odpovídá jednomu měsíčnímu nájmu + DPH.

Byt je volný od 1. 2. 2026.
Doporučuji osobní prohlídku – jedná se o velmi příjemné a kvalitní bydlení.

Makléř

Máte zájem o tento byt?

Tímto, v souladu s nařízením Evropského parlamentu a Rady (EU) 2016/679, v platném znění, prohlašuji, že mi je alespoň 16 let a uděluji tak svůj souhlas se zpracováním zadaných údajů (jméno, telefon, e-mail, ip adresa) společnosti B3 Technology, s.r.o., IČ: 07330600, se sídlem Novostavby 126/23, 435 11 Lom (správce dat), za účelem předání dotazu z tohoto formuláře Vámi vybranému inzerentovi a zpětného kontaktování mé osoby. Osobní údaje bude správce zpracovávat manuálně i automaticky přímo prostřednictvím svých zaměstnanců. Informace předané tímto formulářem budou uloženy v databázi správce maximálně po dobu 10 let. Odvolání souhlasu s uložením a zpracováním poskytnutých dat lze e-mailem na info@origo-reality.cz. V případě podezření na neoprávněné použití Vámi poskytnutých údajů máte právo předat podnět k šetření Úřadu pro ochranu osobních údajů. Více informací
Chystáte se prodat nemovitost?
Pomůžeme Vám!

Přihlášení k odběru

Nenechte si ujít nejnovější nabídky pronájmu bytů 2+kk v Kutné Hoře.