Soccer reality

Pronájem rodinného domu, Mukařov - Srbín, Na Kopci, 103 m2

Na Kopci, Mukařov, Srbín

35 000 Kč
/za měsíc
+ zálohy (el., voda, kanalizace) 4.500,-/měs. Provize RK 42.350,-
Získejte výhodnou HYPOTÉKU Chci hypotéku

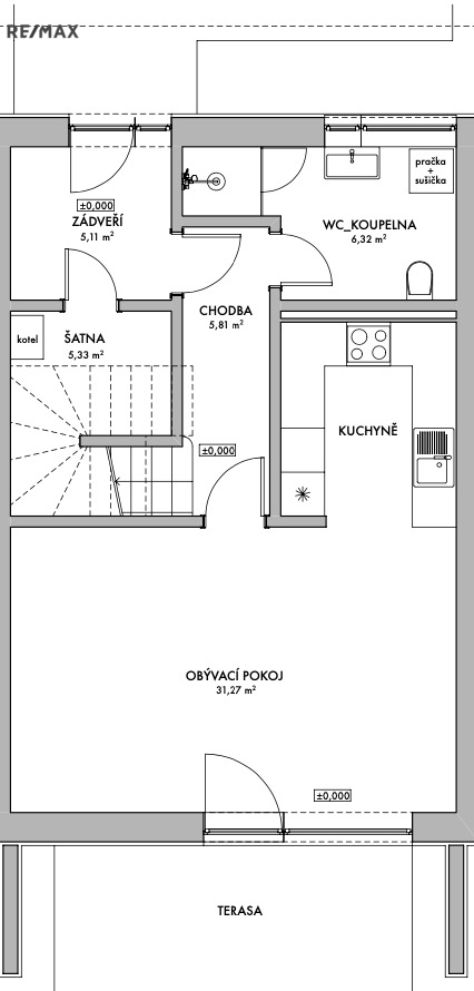
Parametry domu

AdresaNa Kopci, Mukařov, Srbín
ID256-NP00691
StavbaCihlová
Stav objektuVelmi dobrý
VybavenoČástečně
Typ objektuPatrový
Druh objektuŘadový
Lokalita objektuKlidná část obce
Užitná plocha103 m2
Zastavěná plocha66 m2
Podlahová plocha109 m2
Plocha pozemku145 m2
Plocha zahrady79 m2
Třída energetické náročnostiB - Velmi úsporná
Elektřina230V, 400V
PlynPlynovod
OdpadVeřejná kanalizace
KomunikaceDlážděná
DopravaSilnice, MHD, Autobus
VodaVodovod
Převod do OV
Parkování
Nízkoenergetický

Origo partneři v Mukařově

Popis

Nabízíme k pronájmu řadový dům v Mukařově - bydlení s nízkými náklady na provoz. Velký dům se zahrádkou v uzavřeném areálu s výhledy do okolní přírody v Mukařově (kompletní občanská vybavenost, krásná příroda).

Velmi příjemná dispozice, velké světlé pokoje, 4+kk se šatnou, lodžií i terasou o užitné ploše bytu 103 m2 + 11 m2 terasa, zahrádka 79 m2. Jedná se o kvalitní stavbu s nízkými náklady na provoz (zateplený porotherm, kolaudace 2020), energetická třída B. Dům je částečně vybaven vč. kuchyně a přísluší k němu 2 parkovací stání.

Pozemek je slunný, je situován v klidné slepé ulici s dokončenými povrchy - klid je zaručen. IS: El.220/380V, gravitační kanalizace, vodovod a plyn. Navazuje na starou zástavbu se vzrostlými stromy, okolní výstavba je dokončena.

Náklady (měsíční zálohové platby): elektřina 1.500,-, plyn 1.500,-, vodné a stočné 1.500,-. Kauce je stanovena na 50.000,- Kč, provize RK je rovna měsíčnímu nájmu + DPH.

V Mukařově je veškerá občanská vybavenost (obchody, restaurace, pošta, lékárna, lékaři, zubaři, škola, školky atd.) i výborně fungující volnočasové kulturní centrum s mnoha kroužky pro děti i dospělé! Vše v dochozí vzdálenosti.

Dopravní dostupnost: Praha 21 km metro A i C, vlak Mnichovice i Říčany 8 km, Kostelec nad Černými lesy 8 km, vlak Úvaly 14 km.
PID: Autobusová zastávka cca 300 m se spojem na vlakové nádraží, další autobusová zastávka je cca 10 min. chůze a spoje na Prahu jezdí každých 10-30 min. Jedná se o hlavní trasu na Kutnou Horu, BUS jezdí od brzkých ranních hodin do půlnoci včetně nočního spoje!

Velmi krásná lokalita s lesy a rybníky nabízí mnoho turistického i cyklistického vyžití. Zavolejte nebo napište pro bližší info nebo pro sjednání nezávazné prohlídky nemovitosti. Po dohodě možno kdykoliv.

Doporučujeme pro klidné bydlení v krásné přírodě v blízkosti Prahy s kompletní občanskou vybaveností v obci. Zveme Vás na prohlídku.

Majitel si vyhrazuje právo vybrat nájemce na základě jím zvolených kritérií.

Makléř

Máte zájem o tento dům?

Tímto, v souladu s nařízením Evropského parlamentu a Rady (EU) 2016/679, v platném znění, prohlašuji, že mi je alespoň 16 let a uděluji tak svůj souhlas se zpracováním zadaných údajů (jméno, telefon, e-mail, ip adresa) společnosti B3 Technology, s.r.o., IČ: 07330600, se sídlem Novostavby 126/23, 435 11 Lom (správce dat), za účelem předání dotazu z tohoto formuláře Vámi vybranému inzerentovi a zpětného kontaktování mé osoby. Osobní údaje bude správce zpracovávat manuálně i automaticky přímo prostřednictvím svých zaměstnanců. Informace předané tímto formulářem budou uloženy v databázi správce maximálně po dobu 10 let. Odvolání souhlasu s uložením a zpracováním poskytnutých dat lze e-mailem na info@origo-reality.cz. V případě podezření na neoprávněné použití Vámi poskytnutých údajů máte právo předat podnět k šetření Úřadu pro ochranu osobních údajů. Více informací
Chystáte se prodat nemovitost?
Pomůžeme Vám!

Přihlášení k odběru

Nenechte si ujít nejnovější nabídky pronájmu rodinných domů v Mukařově (okr. Praha-východ).