Pronájem obchodního prostoru, Praha, Chorvatská, 170 m2

Chorvatská, Praha 10

32 000 Kč
/za měsíc
+ poplatky 400,-Kč/os., elektřina a plyn se převádí na nájemce. Kauce 1x nájem, provize.
Získejte výhodnou HYPOTÉKU Chci hypotéku

Parametry nemovitosti

AdresaChorvatská, Praha 10
ID11091
StavbaCihlová
Stav objektuVelmi dobrý
Patro1.
VybavenoNe
Typ objektuPřízemní
Lokalita objektuRušná část obce
Užitná plocha170 m2
Zastavěná plocha170 m2
Třída energetické náročnostiG - Mimořádně nehospodárná
Převod do OV

Origo partneři v Praze 10

Stěhovací služby

Výkup a prodej starého nábytku

Popis

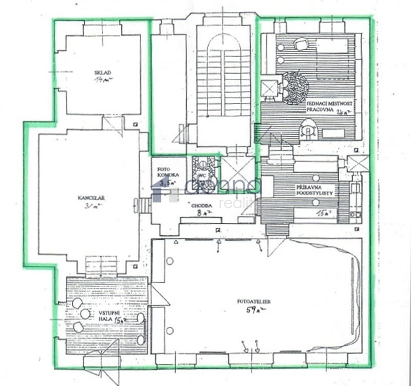
Pronájem obchodních a kancelářských prostor o ploše 170m2, v přízemí činžovního domu se samostatným vchodem, ulice Chorvatská, Praha 10 - Vinohrady/Vršovice.

Vhodné: školící a vzdělávací centrum, kanceláře, internetový obchod, fotoateliér, fyzioterapie.....

- vstupní prostor 15 m2 (možnost využití jako recepce nebo čekárna)
- jedna místnost (kancelář) 31 m2 se skladovým prostorem 14 m2
- velká prosvětlená místnost 59 m2 + vstup do dalšího odděleného prostoru 15 m2, zde je umístěna malá kuchyňka s pultíkem vč. lednice a
myčky nádobí
- samostatná toaleta, šatna, sprchový kout
- celý objekt je vytápěn samostatným plynovým kotlem

K dispozici od 1.1.2026.
Nájem 32 000 Kč + poplatky 400,-Kč/os., elektřina a plyn se převádí na nájemce. Kauce 1x nájem, provize.
Majitel si vyhrazuje právo výběru nájemce.
PENB se připravuje.

Makléř

Máte zájem o tuto nemovistost?

Tímto, v souladu s nařízením Evropského parlamentu a Rady (EU) 2016/679, v platném znění, prohlašuji, že mi je alespoň 16 let a uděluji tak svůj souhlas se zpracováním zadaných údajů (jméno, telefon, e-mail, ip adresa) společnosti B3 Technology, s.r.o., IČ: 07330600, se sídlem Novostavby 126/23, 435 11 Lom (správce dat), za účelem předání dotazu z tohoto formuláře Vámi vybranému inzerentovi a zpětného kontaktování mé osoby. Osobní údaje bude správce zpracovávat manuálně i automaticky přímo prostřednictvím svých zaměstnanců. Informace předané tímto formulářem budou uloženy v databázi správce maximálně po dobu 10 let. Odvolání souhlasu s uložením a zpracováním poskytnutých dat lze e-mailem na info@origo-reality.cz. V případě podezření na neoprávněné použití Vámi poskytnutých údajů máte právo předat podnět k šetření Úřadu pro ochranu osobních údajů. Více informací
Chystáte se prodat nemovitost?
Pomůžeme Vám!