Prodej rodinného domu, Slušovice, 86 m2

Slušovice

8 888 000 Kč
/za nemovitost
Hypotéka od 39 724 Kč /měs. Chci hypotéku

Parametry domu

AdresaSlušovice
IDN115239
StavbaCihlová
Stav objektuProjekt
VybavenoNe
Druh objektuV bloku
Lokalita objektuKlidná část obce
Užitná plocha86 m2
Zastavěná plocha63 m2
Plocha pozemku280 m2
Třída energetické náročnostiG - Mimořádně nehospodárná
Elektřina230V
OdpadVeřejná kanalizace
TopeníPodlahové
KomunikaceAsfaltová
DopravaSilnice, Autobus
VodaVodovod
Bezbarierový přístup
Parkování

Origo partneři v Slušovicích

Popis

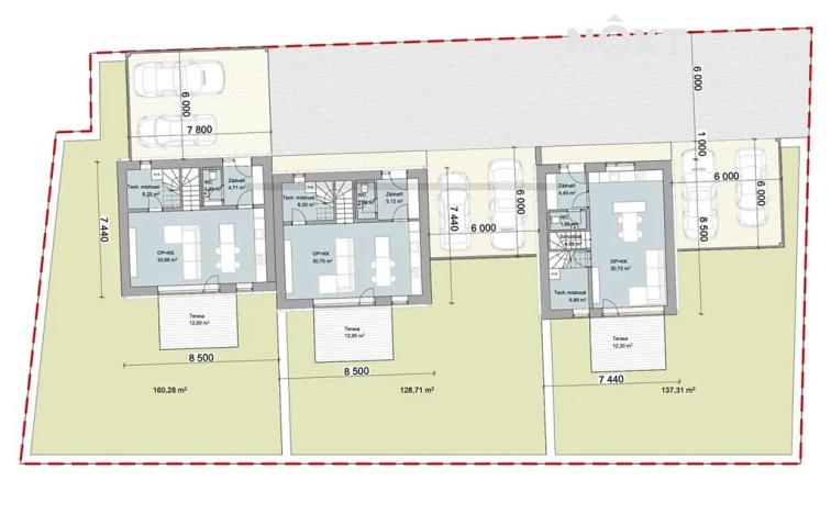
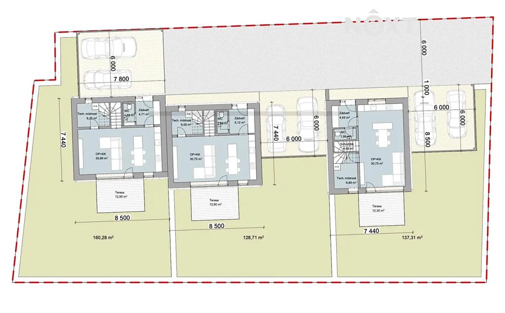
! Připravujeme nový projekt ve Slušovicích, na ulici Hřbitovní !

Tři rodinné domy s parkováním a pozemkem, každý za cenu 8.888.000 Kč, která obsahuje pozemek + RD na klíč, parkovací místa a 1/3 příjezdové ceny. Výstavba bude zahájena v příštím roce.

Rodinné domy budou mít dispozici 4+kk s užitnou plochou cca 86 m2, terasou, parkovacími místy a malým pozemkem. Ke každému domu bude náležet 1/3 příjezdové cesty.

Více informací u makléře. Pro komunikaci uvádějte evidenční číslo zakázky N115239.

Makléř

Máte zájem o tento dům?

Tímto, v souladu s nařízením Evropského parlamentu a Rady (EU) 2016/679, v platném znění, prohlašuji, že mi je alespoň 16 let a uděluji tak svůj souhlas se zpracováním zadaných údajů (jméno, telefon, e-mail, ip adresa) společnosti B3 Technology, s.r.o., IČ: 07330600, se sídlem Novostavby 126/23, 435 11 Lom (správce dat), za účelem předání dotazu z tohoto formuláře Vámi vybranému inzerentovi a zpětného kontaktování mé osoby. Osobní údaje bude správce zpracovávat manuálně i automaticky přímo prostřednictvím svých zaměstnanců. Informace předané tímto formulářem budou uloženy v databázi správce maximálně po dobu 10 let. Odvolání souhlasu s uložením a zpracováním poskytnutých dat lze e-mailem na info@origo-reality.cz. V případě podezření na neoprávněné použití Vámi poskytnutých údajů máte právo předat podnět k šetření Úřadu pro ochranu osobních údajů. Více informací
Chystáte se prodat nemovitost?
Pomůžeme Vám!

Přihlášení k odběru

Nenechte si ujít nejnovější nabídky prodeje rodinných domů v Slušovicích.