Pronájem bytu 3+kk, Praha - Strašnice, V olšinách, 61 m2 (ID: 1906245)

V olšinách, Praha, Strašnice

23 500 Kč
/za měsíc
Poplatky za služby a energie se hradí zvlášť.
Získejte výhodnou HYPOTÉKU Chci hypotéku

Parametry bytu

AdresaV olšinách, Praha, Strašnice
ID970065
StavbaCihlová
Stav objektuVelmi dobrý
Patro4.
VybavenoNe
VlastnictvíOsobní
Užitná plocha61 m2
Podlahová plocha61 m2
Třída energetické náročnostiG - Mimořádně nehospodárná
Elektřina230V
PlynPlynovod
DopravaSilnice, MHD
VodaVodovod

Origo partneři v Praze 10

Stěhovací služby

Výkup a prodej starého nábytku

Popis

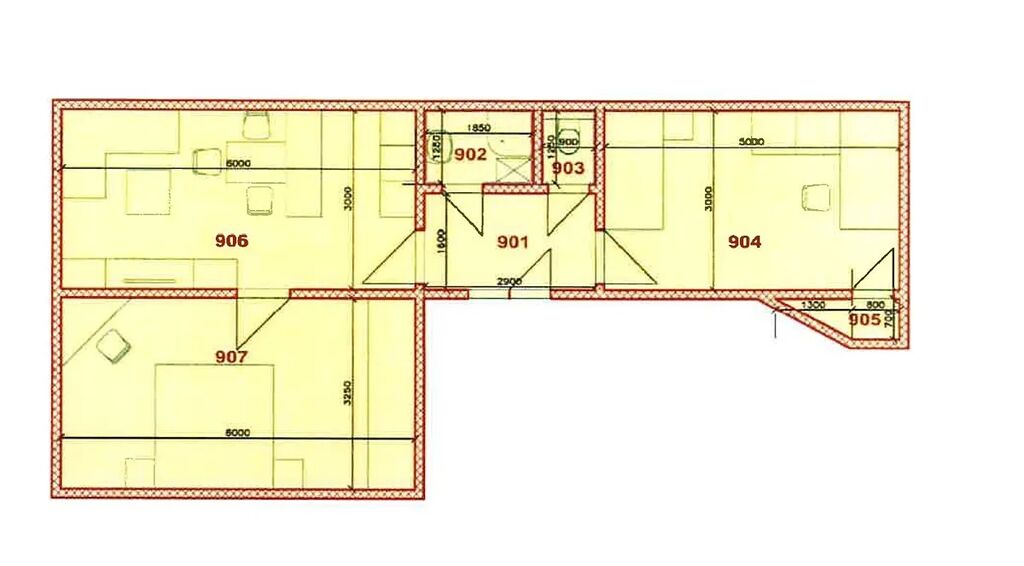
Nezařízený byt 3+kk (2 ložnice, 1 koupelna), o celkové ploše 61m2, je situovaný ve 4.NP rezidenční budovy bez výtahu, v oblíbené lokalitě Praha 10 Strašnice.
Interiér bytu je nezařízený a dispozičně nabízí vstupní předsíň, obývací pokoj s kuchyňským koutem, dvě ložnice, koupelnu se sprchovým koutem a přípojkou na pračku, samostatnou toaletu a komoru. součástí vybavení jsou spotřebiče: lednice s mrazákem, varná deska, trouba, myčka. Podlahy: parkety, dlažba.

Příjemná rezidenční lokalita Strašnice nabízí veškerou občanskou vybavenost pro pohodlné bydlení restaurace, kavárny, supermarkety, obchodní centrum Eden, koupaliště a plavecký stadion Slavia, školy, park Gutovka.
Tato oblast disponuje výbornou dopravní dostupností tramvajová a autobusová zastávka "Průběžná" se nachází jen pár kroků od domu, a dále stanice metra A "Strašnická" je vzdálena v pěší dostupnosti.

Měsíční poplatky za služby spojené s užíváním bytu činí 1.200, Kč/měsíčně a energie za byt (elektřinu a plyn) hradí nájemce přímo dodavateli. Internet není v ceně, nájemce si aktivuje službu přímo s poskytovatelem. Vratná kauce 2 nájmy. Provize RK.

Makléř

Máte zájem o tento byt?

Tímto, v souladu s nařízením Evropského parlamentu a Rady (EU) 2016/679, v platném znění, prohlašuji, že mi je alespoň 16 let a uděluji tak svůj souhlas se zpracováním zadaných údajů (jméno, telefon, e-mail, ip adresa) společnosti B3 Technology, s.r.o., IČ: 07330600, se sídlem Novostavby 126/23, 435 11 Lom (správce dat), za účelem předání dotazu z tohoto formuláře Vámi vybranému inzerentovi a zpětného kontaktování mé osoby. Osobní údaje bude správce zpracovávat manuálně i automaticky přímo prostřednictvím svých zaměstnanců. Informace předané tímto formulářem budou uloženy v databázi správce maximálně po dobu 10 let. Odvolání souhlasu s uložením a zpracováním poskytnutých dat lze e-mailem na info@origo-reality.cz. V případě podezření na neoprávněné použití Vámi poskytnutých údajů máte právo předat podnět k šetření Úřadu pro ochranu osobních údajů. Více informací
Chystáte se prodat nemovitost?
Pomůžeme Vám!