Pronájem skladu, Brno, Bohunická, 276 m2

Bohunická, Brno, Horní Heršpice

40 000 Kč
/za měsíc
+ zálohy na energie a služby areálu 11.150,-Kč/měs +DPH
Získejte výhodnou HYPOTÉKU Chci hypotéku

Parametry nemovitosti

AdresaBohunická, Brno, Horní Heršpice
IDSR524
StavbaCihlová
Stav objektuDobrý
Patro1.
VybavenoNe
Lokalita objektuRušná část obce
Užitná plocha276 m2
Třída energetické náročnostiG - Mimořádně nehospodárná
Elektřina230V
TelekomunikaceInternet
DopravaMHD
Zdroj topeníJiné
Bezbarierový přístup
Parkování

Origo partneři v Brně

Popis

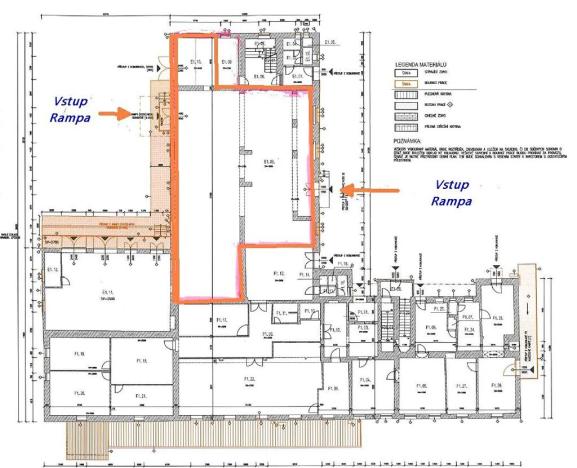
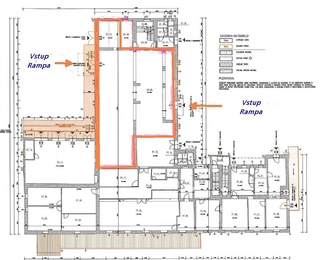
Nabízíme k pronájmu skladovací prostory o celkové ploše 276,20 m2 umístěné v 1.NP a přístupné ze dvou stran, vždy z menší nakládací rampy. Sklad je umístěn v uzavřeném hlídaném areálu na ulici Bohunická s přístupem 24hod. denně.

Budova je zateplena, v roce 2017 proběhla rekonstrukce. Sklad je přístupný v zadní části přes menší nákladovou rampu a automatická vrata. Vstup má velikost 1,40 m(š) a 2,00m (v). V přední částí je vstup přes dvoukřídlé plastové dveře a šířce 1,35 m. Před těmito dveřmi je malá rampa o výšce 50 cm. Sklad má celkem 5 malých větracích oken – v zadní části skladu jsou 2 a v přední části skladu jsou 3 malá okna. Výška stropu je 2,95 m. Podlaha – dlažba. Nosnost podlahy do 500 kg/m2.

Ve skladu není přípojka vody a odpadu. Vedle vstupu z přední části skladu je vybudována kancelář. Sociální zázemí je ve stejné budově ve vedlejším vchodu.

Vytápění skladu je roburem a přímotopy.
Elektřina a plyn jsou měřené.

V areálu je možné vyhrazené parkování za poplatek. Dostupnost MHD je velmi dobrá, zastávky cca 5 min od areálu.

Průkaz energetické náročnosti budovy nebyl dodán, uvádíme tedy G.

Sklad je volný k pronájmu.

Pro více informací a sjednání prohlídky je Vám k dispozici makléřka.

Cena:

- Nájemné – 40.000,-Kč/ měs.
- Služby spojené s provozem areálu – 7.050,-Kč/měs.
- Záloha elektřina – 2.200,-Kč/měs
- Plyn záloha – 1.500,-Kč/ měs
- Voda paušálem – 400,-Kč/měs
- Parkovací místo – 650,-Kč/měs
- Uvedené ceny jsou bez DPH
- Jistota – 2 x měsíční nájemné
- Provize za služby realitního zprostředkovatele

Makléř

Máte zájem o tuto nemovistost?

Tímto, v souladu s nařízením Evropského parlamentu a Rady (EU) 2016/679, v platném znění, prohlašuji, že mi je alespoň 16 let a uděluji tak svůj souhlas se zpracováním zadaných údajů (jméno, telefon, e-mail, ip adresa) společnosti B3 Technology, s.r.o., IČ: 07330600, se sídlem Novostavby 126/23, 435 11 Lom (správce dat), za účelem předání dotazu z tohoto formuláře Vámi vybranému inzerentovi a zpětného kontaktování mé osoby. Osobní údaje bude správce zpracovávat manuálně i automaticky přímo prostřednictvím svých zaměstnanců. Informace předané tímto formulářem budou uloženy v databázi správce maximálně po dobu 10 let. Odvolání souhlasu s uložením a zpracováním poskytnutých dat lze e-mailem na info@origo-reality.cz. V případě podezření na neoprávněné použití Vámi poskytnutých údajů máte právo předat podnět k šetření Úřadu pro ochranu osobních údajů. Více informací
Chystáte se prodat nemovitost?
Pomůžeme Vám!

Přihlášení k odběru

Nenechte si ujít nejnovější nabídky pronájmu skladů v Brně.