Pronájem obchodního prostoru, Brno, Palackého třída, 26 m2

Palackého třída, Brno, Královo Pole

1 500 Kč
/za metr čtvereční / rok
Získejte výhodnou HYPOTÉKU Chci hypotéku

Parametry nemovitosti

AdresaPalackého třída, Brno, Královo Pole
StavbaCihlová
Stav objektuVelmi dobrý
Patro1.
Užitná plocha26 m2

Origo partneři v Brně

Popis

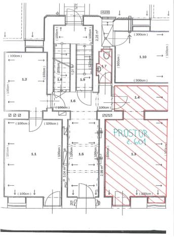
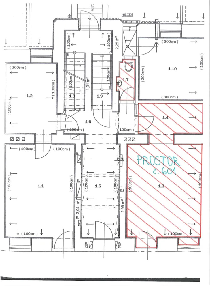
Statutární město Brno, městská část Brno – Královo Pole nabízí k pronájmu nebytový prostor č. 601, který se nachází v přízemí budovy č. p. 704, č. or. 13, na ulici Palackého třída v Brně, která je součástí pozemku p. č. 1806 – zastavěná plocha a nádvoří, o výměře 213 m2, zapsaného v katastru nemovitostí Katastrálním úřadem pro Jihomoravský kraj, Katastrálním pracovištěm Brno-město, na LV č. 10001, pro obec Brno, katastrální území Královo Pole.

Nebytový prostor má celkovou plochu 26 m2 a sestává z prodejní místnosti o výměře 20,3 m2 a zázemí o výměře 5,7 m2, viz půdorys. Spolu s nebytovým prostorem č. 601 bude nájemce užívat společné WC o výměře 1,9 m2 nacházející se v přízemí výše uvedené budovy, které je přístupné přes společné prostory budovy a je společné s nájemcem sousedního nebytového prostoru. V prostoru proběhne do 30.01.2026 výměna dveří včetně zárubní služebního vchodu umístěného ve společné chodbě domu za protipožární dveře.

V nabízeném prostoru je k dispozici vestavěný mrazící box, který je možno odkoupit od předchozího nájemce za 39 000 Kč, v případě nezájmu bude vestavěný mrazící box odstraněn.

Podmínky pro uzavření nájemní smlouvy:
- využití prostor jako prodejna
- smlouva na dobu neurčitou s 6měsíční výpovědní lhůtou
- složení jistoty odpovídající 3násobku nájemného (jistota bude deponována na účtu pronajímatele po dobu trvání nájmu a bude pronajímatelem užita např. pro zápočet oproti splatné pohledávce na úhradu nájemného apod.)

Minimální požadovaná výše nájemného: 1 500 Kč/m2/rok

Kromě nájemného se hradí záloha na služby vodné a stočné 1 000 Kč/měsíčně. Dodávku elektřiny si nájemce sjedná přímo s dodavatelem.

Způsob podání nabídky a požadované náležitosti:

Nabídku je nutné podat v samostatně uzavřené obálce s označením „PALACKÉHO TŘÍDA 13 – prostor 601“ s uvedením výše nájemného, kterou je nájemce ochoten platit (uveďte v Kč/m2/rok), předpokládaného způsobu využití a uvedení zda zájemce požaduje vestavěný mrazící box odkoupit či odstranit.

Nabídka dále musí obsahovat doklad o oprávnění k podnikání (živnostenský list, výpis z obchodního rejstříku ne starší 60 dnů) a čestné prohlášení o tom, že nájemce nemá vůči statutárnímu městu Brnu (SMB), příspěvkovým organizacím zřízeným SMB, ani vůči obchodním společnostem s majoritní majetkovou účastí SMB žádné splatné závazky.
Adresa pro příjem žádostí: Úřad městské části Brno – Královo Pole, Palackého třída 59, 612 93 Brno.

Termín pro podání žádosti: 03.12.2025 do 30.12.2025 do 12.00 hodin. Na později podané nabídky nebude brán zřetel a nebudou zařazeny k posouzení.

Budoucí nájemce bude vybrán na základě posouzení jím předložen nabídky výše nájemného a záměru na využití předmětu nájmu.

Termín prohlídky prostoru: 11.12.2025, 10:00 – 10:30

Bližší informace k nabízeným prostorám poskytne paní Lipovská (ÚMČ Brno – Královo Pole)

Makléř

Máte zájem o tuto nemovistost?

Tímto, v souladu s nařízením Evropského parlamentu a Rady (EU) 2016/679, v platném znění, prohlašuji, že mi je alespoň 16 let a uděluji tak svůj souhlas se zpracováním zadaných údajů (jméno, telefon, e-mail, ip adresa) společnosti B3 Technology, s.r.o., IČ: 07330600, se sídlem Novostavby 126/23, 435 11 Lom (správce dat), za účelem předání dotazu z tohoto formuláře Vámi vybranému inzerentovi a zpětného kontaktování mé osoby. Osobní údaje bude správce zpracovávat manuálně i automaticky přímo prostřednictvím svých zaměstnanců. Informace předané tímto formulářem budou uloženy v databázi správce maximálně po dobu 10 let. Odvolání souhlasu s uložením a zpracováním poskytnutých dat lze e-mailem na info@origo-reality.cz. V případě podezření na neoprávněné použití Vámi poskytnutých údajů máte právo předat podnět k šetření Úřadu pro ochranu osobních údajů. Více informací
Chystáte se prodat nemovitost?
Pomůžeme Vám!

Přihlášení k odběru

Nenechte si ujít nejnovější nabídky pronájmu obchodních prostor v Brně.