Prodej rodinného domu, Praha - Krč, Perlitová, 221 m2 (ID: 1906039)

Perlitová, Praha 4, Krč

23 950 000 Kč
/za nemovitost
včetně provize
Hypotéka od 107 042 Kč /měs. Chci hypotéku

Parametry domu

AdresaPerlitová, Praha 4, Krč
IDZR1213
StavbaPanelová
Stav objektuDobrý
Typ objektuPatrový
Druh objektuŘadový
Užitná plocha221 m2
Zastavěná plocha77 m2
Podlahová plocha221 m2
Plocha pozemku229 m2
Plocha zahrady122 m2
Třída energetické náročnostiC - Úsporná
Ukazatel energetické náročnosti90 kWh/m2 za rok
Elektřina400V
PlynPlynovod
OdpadVeřejná kanalizace
TopeníÚstřední plynové
KomunikaceAsfaltová
TelekomunikaceInternet
DopravaMHD
VodaVodovod
Garáž
Lodžie
Terasa
Bezbarierový přístup
Parkování

Origo partneři v Praze 4

Stěhovací služby

Výkup a prodej starého nábytku

Popis

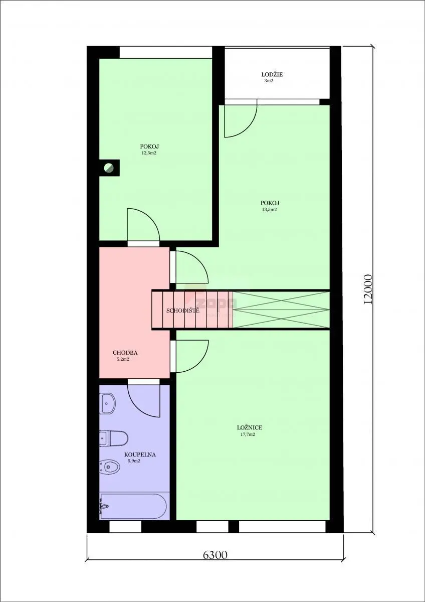
Exkluzivně nabízíme prodej dvougeneračního třípodlažního řadového rodinného domu Praha 4 Krč, ulice Perlitová.

Podlahová plocha domu činí 221 m2, plocha rovinatého pozemku 229 m2.
V prvním podlaží je k dispozici bytová jednotka 1+kk s terasou a vstupem na zahradu, garáž a technická místnost.
Druhé a třetí podlaží tvoří bytová jednotka 4+1 se dvěma koupelnami a lodžií.
Terasa a zahrada jsou orientovány na jihovýchod, do klidné zeleně, vstup do domu na severozápad.

Dům, kolaudovaný v roce 1992, prošel částečnou rekonstrukcí - nové rozvody vody, nová eurookna.
Topení a ohřev vody zajišťuje plynový etážový kotel.
Třída energetické náročnosti budovy je C - úsporná.

Ulice Perlitová je jednosměrná, velmi klidná.
Nemovitost je v blízkosti metra Pankrác a Budějovická, těsně vedla sportovního areálu SK Oaza.
V okolí je veškerá občanská vybavenost - školy, školka, poliklinika, obchody.
Dům je možné využít jak k bydlení, tak i k podnikání.
Prohlídky jsou možné ihned, cena je včetně provize.
Koupi lze financovat prostřednictvím hypotečního úvěru, který Vám pomůžeme vyřídit.

Makléř

Máte zájem o tento dům?

Tímto, v souladu s nařízením Evropského parlamentu a Rady (EU) 2016/679, v platném znění, prohlašuji, že mi je alespoň 16 let a uděluji tak svůj souhlas se zpracováním zadaných údajů (jméno, telefon, e-mail, ip adresa) společnosti B3 Technology, s.r.o., IČ: 07330600, se sídlem Novostavby 126/23, 435 11 Lom (správce dat), za účelem předání dotazu z tohoto formuláře Vámi vybranému inzerentovi a zpětného kontaktování mé osoby. Osobní údaje bude správce zpracovávat manuálně i automaticky přímo prostřednictvím svých zaměstnanců. Informace předané tímto formulářem budou uloženy v databázi správce maximálně po dobu 10 let. Odvolání souhlasu s uložením a zpracováním poskytnutých dat lze e-mailem na info@origo-reality.cz. V případě podezření na neoprávněné použití Vámi poskytnutých údajů máte právo předat podnět k šetření Úřadu pro ochranu osobních údajů. Více informací
Chystáte se prodat nemovitost?
Pomůžeme Vám!

Přihlášení k odběru

Nenechte si ujít nejnovější nabídky prodeje rodinných domů v Praze 4.