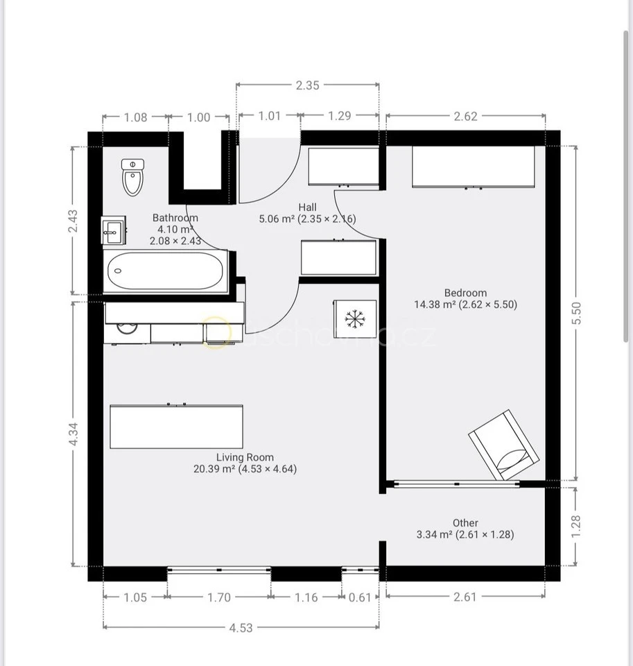
Prodej bytu 2+kk, Praha - Troja, Hnězdenská, 43 m2 (ID: 1905910)

Hnězdenská, Praha 8, Troja

7 500 000 Kč
/za nemovitost
Hypotéka od 33 520 Kč /měs. Chci hypotéku

Parametry bytu

AdresaHnězdenská, Praha 8, Troja
ID7995
StavbaCihlová
Stav objektuVelmi dobrý
Patro9.
Lokalita objektuKlidná část obce
VlastnictvíOsobní
Užitná plocha43 m2
Podlahová plocha43 m2
Třída energetické náročnostiB - Velmi úsporná
Elektřina230V
OdpadVeřejná kanalizace
DopravaMHD, Autobus
VodaVodovod
Garáž
Lodžie

Origo partneři v Praze 8

Stěhovací služby

Výkup a prodej starého nábytku

Pojištění a finance

Popis

Nabízíme na prodej kompletně zrekonstruovaný byt 2+kk o ploše 43,4 m2 se zasklenou lodžií, umístěný v 8. patře cihlového domu s výtahem ve vyhledávané lokalitě Prahy 8 - Troja, ulice Hnězdenská. Z bytu nádherný výhled. Byt je po celkové rekonstrukci z roku 2024. K bytu nenáleží žádný sklep. K bytu náleží garážové stání, které je zahrnuto v ceně. Osobní vlastnictví. Koupi bytu lze financovat hypotéčním úvěrem. Ihned volné k nastěhování.

Kompletní občanská vybavenost v okolí (ZŠ, MŠ, restaurace, obchody, služby, OC Krakov, vysoká škola hotelové, kulturní dům Krakov, poliklinika). Vynikající dopravní dostupnost (bus). Velkou výhodou je docházková vzdálenost k Botanické zahradě nebo ZOO.

Ukazatel energetické náročnosti: B

V ceně není zahrnuta provize RK.

Makléř

Máte zájem o tento byt?

Tímto, v souladu s nařízením Evropského parlamentu a Rady (EU) 2016/679, v platném znění, prohlašuji, že mi je alespoň 16 let a uděluji tak svůj souhlas se zpracováním zadaných údajů (jméno, telefon, e-mail, ip adresa) společnosti B3 Technology, s.r.o., IČ: 07330600, se sídlem Novostavby 126/23, 435 11 Lom (správce dat), za účelem předání dotazu z tohoto formuláře Vámi vybranému inzerentovi a zpětného kontaktování mé osoby. Osobní údaje bude správce zpracovávat manuálně i automaticky přímo prostřednictvím svých zaměstnanců. Informace předané tímto formulářem budou uloženy v databázi správce maximálně po dobu 10 let. Odvolání souhlasu s uložením a zpracováním poskytnutých dat lze e-mailem na info@origo-reality.cz. V případě podezření na neoprávněné použití Vámi poskytnutých údajů máte právo předat podnět k šetření Úřadu pro ochranu osobních údajů. Více informací
Chystáte se prodat nemovitost?
Pomůžeme Vám!
Theleadway banner

Přihlášení k odběru

Nenechte si ujít nejnovější nabídky prodeje bytů 2+kk v Praze 8.