Prodej rodinného domu, Vojkovice, 200 m2 (ID: 1904352)

Vojkovice

8 450 000 Kč
/za nemovitost
Hypotéka od 37 766 Kč /měs. Chci hypotéku

Parametry domu

AdresaVojkovice
StavbaCihlová
Stav objektuDobrý
Druh objektuŘadový
Lokalita objektuKlidná část obce
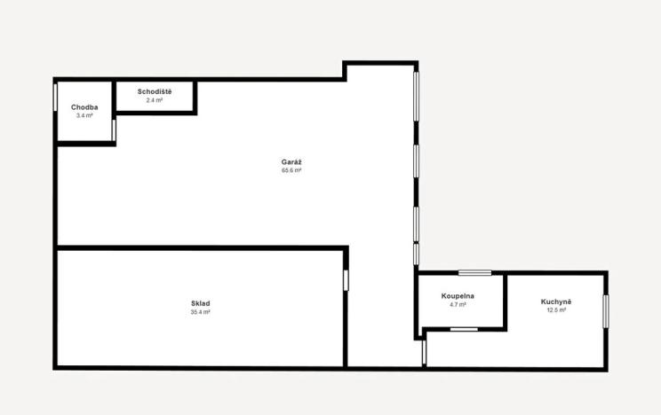
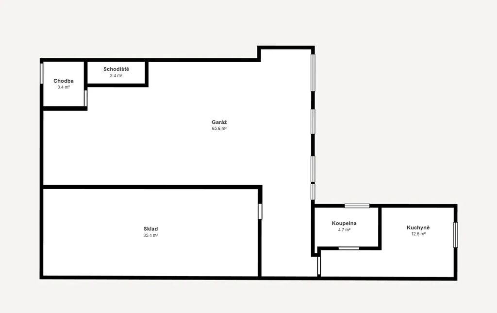
Užitná plocha200 m2
Zastavěná plocha108 m2
Plocha pozemku435 m2
Plocha zahrady327 m2
Elektřina400V
PlynPlynovod
OdpadVeřejná kanalizace
KomunikaceAsfaltová
TelekomunikaceSatelit
DopravaVlak, Silnice, MHD, Autobus
VodaVodovod
Topné tělesoPřímotop
Zdroj topeníPřímotop
Zdroj teplé vodyBojler - elektro
Garáž
Parkování

Origo partneři v Vojkovicích

Popis

Se souhlasem majitelky nabízíme exkluzivně prodej rodinného domu 6+2 v klidné části malebné obce Vojkovice, poblíž Brna, v těsné blízkosti Židlochovic. Dům byl postaven v roce 1995 za účelem bydlení a zároveň k podnikání. Prostory v přízemí o velikosti 140m2 je možné využít k podnikatelským účelům, nebo upravit na prostory bytové. Součástí je kuchyňka 6m2 a koupelna 4m2.
Horní patro disponuje obývacím pokojem 25m2 + kk 12m2 + lodžie 9m2, dále jsou zde pokoje 11m2, 9m2, 9m2 a koupelna+WC 6m2.Za domem je udržovaná zahrádka 327m2.
V obci se nachází veškerá občanská vybavenost, jako jsou obchody, základní a mateřská škola, restaurace, fotbalové hřiště, pošta, koupaliště.
Velkou předností bydlení v obci Vojkovice je rychlá dostupnost do Brna autem, autobusem i vlakem.
U inzerovaných fotografií jsou přiloženy i "vizualizace", což jsou architektonické návrhy na možné úpravy.

Makléř

Máte zájem o tento dům?

Tímto, v souladu s nařízením Evropského parlamentu a Rady (EU) 2016/679, v platném znění, prohlašuji, že mi je alespoň 16 let a uděluji tak svůj souhlas se zpracováním zadaných údajů (jméno, telefon, e-mail, ip adresa) společnosti B3 Technology, s.r.o., IČ: 07330600, se sídlem Novostavby 126/23, 435 11 Lom (správce dat), za účelem předání dotazu z tohoto formuláře Vámi vybranému inzerentovi a zpětného kontaktování mé osoby. Osobní údaje bude správce zpracovávat manuálně i automaticky přímo prostřednictvím svých zaměstnanců. Informace předané tímto formulářem budou uloženy v databázi správce maximálně po dobu 10 let. Odvolání souhlasu s uložením a zpracováním poskytnutých dat lze e-mailem na info@origo-reality.cz. V případě podezření na neoprávněné použití Vámi poskytnutých údajů máte právo předat podnět k šetření Úřadu pro ochranu osobních údajů. Více informací
Chystáte se prodat nemovitost?
Pomůžeme Vám!

Přihlášení k odběru

Nenechte si ujít nejnovější nabídky prodeje rodinných domů v Vojkovicích (okr. Brno-venkov).