Prodej rodinného domu, Novalja, Chorvatsko, 111 m2

Novalja

10 535 000 Kč
/za nemovitost

Parametry domu

AdresaNovalja
ID251
StavbaPanelová
Stav objektuVelmi dobrý
Užitná plocha111 m2
Plocha pozemku111 m2
Třída energetické náročnostiD - Méně úsporná
Elektřina230V
PlynIndividuální
OdpadVeřejná kanalizace
KomunikaceAsfaltová
TelekomunikaceInternet
DopravaSilnice
VodaVodovod
Parkování

Origo partneři

Popis

Chorvatsko-Nemovitosti.cz má pro Vás plážový čtyř pokojový, tří patrový apartmán/dům 111m2 s terasou a prostorným dvorem. Apartmán leží 150m od pláží Vrtić a Lokunje, které jsou průzračné a se sociálním zařízením v městě Novalja. Apartmán/Dům má velikost 111m2,a má výbornou polohu a je skvěle využitelný pro větší rodinu. Apartmán je klimatizovaný zařízený a nachází se v přízemí apartmánového domu, vedle kterého vede klidná příjezdová cesta. Do města Novalja se dostanete pohodlnou kvalitní silnicí z trajektu nebo z mostu, spojující pevninu a ostrov Pag. Podrobně o apartmánu:

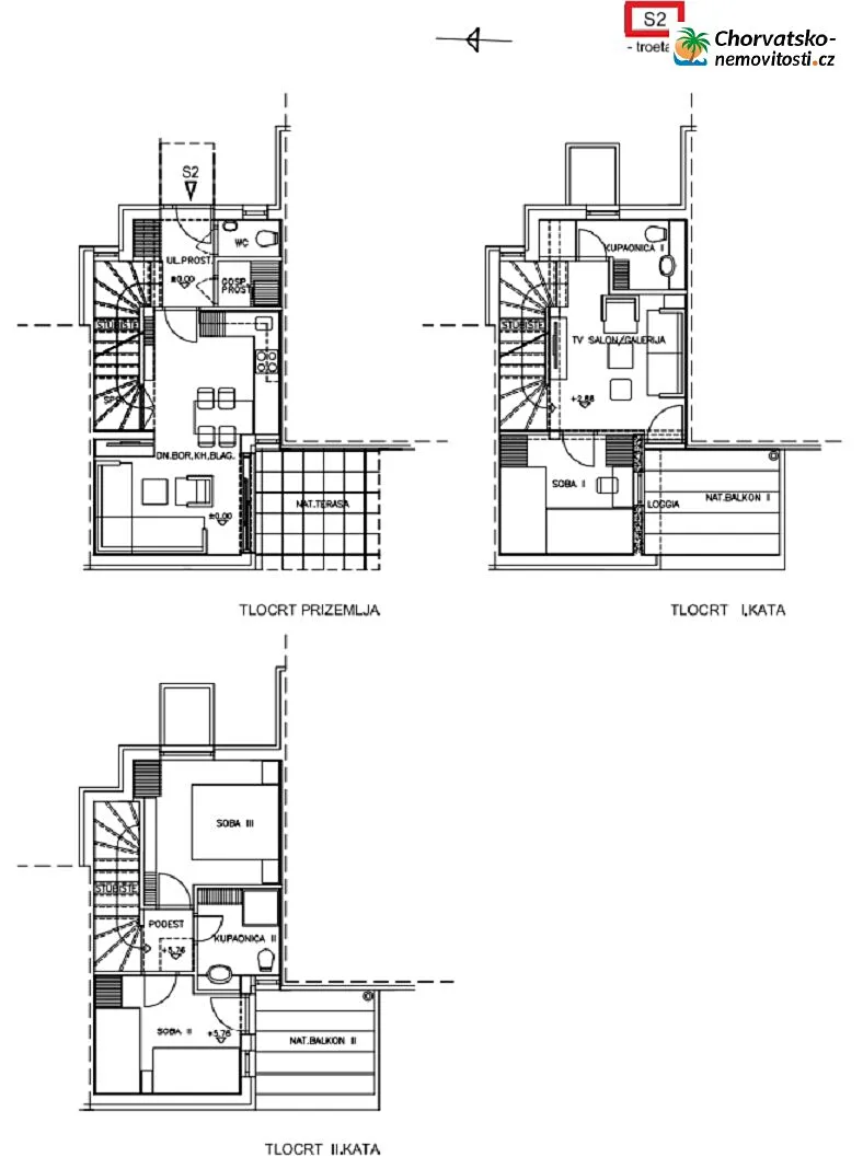
Čtyřpokojový apartmán (S2) nebo řadový dům se zahradou je na prodej na výjimečném místě v Novalji, nedaleko pláží Vrtić a Lokunje.

Apartmán/dům má tři podlaží, čtyři pokoje, dvě koupelny, 3 toalety, 3 terasy, zahradu, 2 parkovací stání...
Celková účetní plocha 110,50 m2.
Jen 150 metrů od pláží Vrtić a Lokunje.
Novostavba.
Novalja je město a přímořské letovisko v Chorvatsku na severní straně ostrova Pag. Novalja po městě Pag je druhým největším městem na ostrově. Je též největším městem na části Pagu připadající Licko-senjské župě. V roce 2001 žilo ve městě 2 078 obyvatel, v celé opčině pak 3 335 obyvatel. Novalja je známá především díky své pláži Zrče, která díky čistotě získala modrou vlajku. Mezi sporty zde patří vodní lyžování,wakeboarding,bungee jumping a jízda na vodním skůtru.

Ostrov Pag je známý díky teplému klimatu a blízkostí k České republice - Brno 750km po dálnici. Na ostrov se dostanete trajektem i po mostě, najdete zde benzínové pumpy, obchody, stavebniny a prodejny hobby doplňků. Jsou zde také restaurace, bary, diskotéky a mariny pro ukotvení lodí skůtrů atd. Na Pagu najdete výborné Pažské sýry, speciální krajky nebo výrobu solných přípravků.

Veřejné služby
Voda
Elektro
Kanalizace
Vytápění a chlazení: Systém vytápění přímotopy, klimatizace
Klimatizace
Certifikáty
Energetická třída: Energetický certifikát
Stavební povolení
Kolaudační rozhodnutí
Spoluvlastnický certifikát zapasaný na Katastr

Info:
Vzdálenost od moře: 150m
Most, který spojuje ostrov pevninu je zdarma
Obchody
Restaurace
Služby města a kulturní centrum
Parkování

Makléř

Máte zájem o tento dům?

Tímto, v souladu s nařízením Evropského parlamentu a Rady (EU) 2016/679, v platném znění, prohlašuji, že mi je alespoň 16 let a uděluji tak svůj souhlas se zpracováním zadaných údajů (jméno, telefon, e-mail, ip adresa) společnosti B3 Technology, s.r.o., IČ: 07330600, se sídlem Novostavby 126/23, 435 11 Lom (správce dat), za účelem předání dotazu z tohoto formuláře Vámi vybranému inzerentovi a zpětného kontaktování mé osoby. Osobní údaje bude správce zpracovávat manuálně i automaticky přímo prostřednictvím svých zaměstnanců. Informace předané tímto formulářem budou uloženy v databázi správce maximálně po dobu 10 let. Odvolání souhlasu s uložením a zpracováním poskytnutých dat lze e-mailem na info@origo-reality.cz. V případě podezření na neoprávněné použití Vámi poskytnutých údajů máte právo předat podnět k šetření Úřadu pro ochranu osobních údajů. Více informací
Chystáte se prodat nemovitost?
Pomůžeme Vám!

Přihlášení k odběru

Nenechte si ujít nejnovější nabídky prodeje rodinných domů.