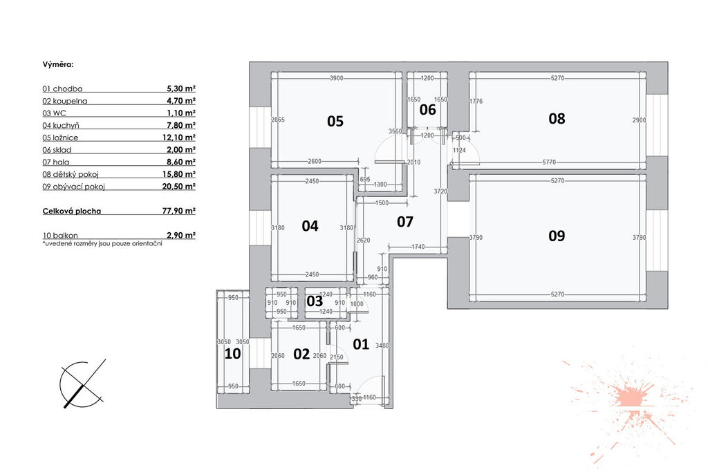
Prodej bytu 3+1, Praha - Libeň, Lihovarská, 78 m2

Lihovarská, Praha 9 - Libeň

12 490 000 Kč

včetně provize RK
Hypotéka od 55 823 Kč /měs. Chci hypotéku

Parametry bytu

AdresaLihovarská, Praha 9 - Libeň
ID00017
StavbaCihlová
VybavenoAno
VlastnictvíOsobní
Užitná plocha78 m2
Třída energetické náročnostiE - Nehospodárná
Ukazatel energetické náročnosti199 kWh/m2 za rok

Origo partneři v Praze 9

Stěhovací služby

Výkup a prodej starého nábytku

Popis

V Lihovarské ulici v pražské Libni se nachází velmi příjemný třípokojový byt s kuchyní, který už na první pohled působí jako místo, kde se dá pohodlně žít. Majitelé jej nechali citlivě a kompletně zrekonstruovat podle návrhu architektky, která z něho vytvořila harmonický domov.

Interiér působí svěže a útulně díky dřevěným podlahám z běleného dubu, které dodávají prostoru lehkost a nadčasovost. Kuchyně pochází od výrobce, pro kterého je kuchyně skutečným srdcem každého domova, a je navržena tak, aby přinášela radost z vaření i společných chvil. Vestavěné skříně na míru nabízejí úložné prostory, které dokonale respektují dispozici bytu a budí příjemný pocit pořádku a elegance. Koupelna je vybavena kvalitní sanitou od uznávaného německého výrobce a v bytě nechybí ani moderní radiátory s termostaty, díky nimž lze snadno navodit příjemné klima.
V každém pokoji je navíc připraven ethernetový přístup, což přináší velký komfort pro práci z domova a spolehlivé připojení pro chytrou televizi nebo herní konzoli. Díky tomu může mít každý člen domácnosti klidné místo se stabilním internetem.
Soukromí a bezpečí zaručují české interiérové dveře a bezpečnostní vstupní dveře. Okna s trojitým zasklením pak přispívají k příjemné atmosféře i klidnému bydlení.

Lokalita patří mezi velmi oblíbené. Do centra města je to zhruba čtvrt hodiny a jen několik kroků od domu se nachází tramvajová zastávka. Příjemnou procházkou je možné dojít k metru linky B a kousek odtud je také vlaková stanice Libeň. Pro běžné denní potřeby i volný čas je oblast jako stvořená – nedaleko se nachází obchodní centrum Galerie Harfa, poliklinika, dětský klub, mateřská i základní škola. Milovníci aktivního života ocení blízkost multifunkčního sportovního centra UNYP Arena a sportovního areálu TJ Praga. Pro chvíle odpočinku je ideální Park Rokytka nebo oblíbená bobová dráha, které dodávají okolí příjemnou energii i široké možnosti jak trávit volný čas.

Byt tedy nabízí nejen kvalitně zpracovaný interiér, ale také velmi atraktivní místo k životu s mimořádně pohodlnou dostupností všeho, co je pro každodenní spokojenost důležité. Pokud hledáte domov, který kombinuje promyšlený design, pohodovou atmosféru a skvělou polohu, je toto místo ideální volbou.

Těším se na setkání s Vámi při prohlídce tohoto jedinečného bytu.

Makléř

Máte zájem o tento byt?

Tímto, v souladu s nařízením Evropského parlamentu a Rady (EU) 2016/679, v platném znění, prohlašuji, že mi je alespoň 16 let a uděluji tak svůj souhlas se zpracováním zadaných údajů (jméno, telefon, e-mail, ip adresa) společnosti B3 Technology, s.r.o., IČ: 07330600, se sídlem Novostavby 126/23, 435 11 Lom (správce dat), za účelem předání dotazu z tohoto formuláře Vámi vybranému inzerentovi a zpětného kontaktování mé osoby. Osobní údaje bude správce zpracovávat manuálně i automaticky přímo prostřednictvím svých zaměstnanců. Informace předané tímto formulářem budou uloženy v databázi správce maximálně po dobu 10 let. Odvolání souhlasu s uložením a zpracováním poskytnutých dat lze e-mailem na info@origo-reality.cz. V případě podezření na neoprávněné použití Vámi poskytnutých údajů máte právo předat podnět k šetření Úřadu pro ochranu osobních údajů. Více informací
Chystáte se prodat nemovitost?
Pomůžeme Vám!

Přihlášení k odběru

Nenechte si ujít nejnovější nabídky prodeje bytů 3+1 v Praze 9.