Prodej bytu 2+1, Česká Skalice, Tyršova, 60 m2 (ID: 1903692)

Tyršova, Česká Skalice

2 200 000 Kč
/za nemovitost
cena je včetně právního servisu a provize realitní kanceláři
Hypotéka od 9 833 Kč /měs. Chci hypotéku

Parametry bytu

AdresaTyršova, Česká Skalice
ID0618
StavbaPanelová
Stav objektuDobrý
Patro2. z 6
VlastnictvíDružstevní
Užitná plocha60 m2
Podlahová plocha60 m2
Třída energetické náročnostiF - Velmi nehospodárná
PlynPlynovod
OdpadVeřejná kanalizace
TopeníÚstřední plynové
DopravaVlak, Silnice, MHD, Autobus
VodaVodovod
Balkon
Sklep
Výtah
Bezbarierový přístup
Převod do OV
Parkování

Origo partneři v České Skalici

Popis

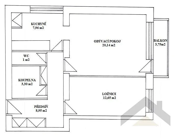
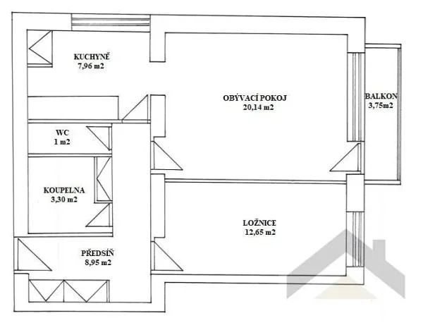
K převodu nabízíme byt 2+1 v obci Česká Skalice, v ulici Tyršova. Byt je situován do 2. NP panelového domu, jeho podlahová plocha je 54 m2 a je orientovaný směrem k přehradě Rozkoš. K bytu patří balkon 3,75 m2 a zděný sklep 2,30 m2. Dispozičně je byt výborně řešený, místnosti jsou neprůchozí. Byt je částečně v původním stavu, částečně po rekonstrukci. Nabízí se tedy možnost upravit si byt dle vlastních představ. Vytápění bytu a ohřev vody je řešeno vlastním plynovým kotlem. Byt je v družstevním vlastnictví bez možnosti převodu do osobního vlastnictví. V dosahu veškerá občanská vybavenost, dům se nachází v těsné blízkosti přehrady Rozkoš. Ráda poskytnu více informací a bytem Vás provedu.

Makléř

Máte zájem o tento byt?

Tímto, v souladu s nařízením Evropského parlamentu a Rady (EU) 2016/679, v platném znění, prohlašuji, že mi je alespoň 16 let a uděluji tak svůj souhlas se zpracováním zadaných údajů (jméno, telefon, e-mail, ip adresa) společnosti B3 Technology, s.r.o., IČ: 07330600, se sídlem Novostavby 126/23, 435 11 Lom (správce dat), za účelem předání dotazu z tohoto formuláře Vámi vybranému inzerentovi a zpětného kontaktování mé osoby. Osobní údaje bude správce zpracovávat manuálně i automaticky přímo prostřednictvím svých zaměstnanců. Informace předané tímto formulářem budou uloženy v databázi správce maximálně po dobu 10 let. Odvolání souhlasu s uložením a zpracováním poskytnutých dat lze e-mailem na info@origo-reality.cz. V případě podezření na neoprávněné použití Vámi poskytnutých údajů máte právo předat podnět k šetření Úřadu pro ochranu osobních údajů. Více informací
Chystáte se prodat nemovitost?
Pomůžeme Vám!

Přihlášení k odběru

Nenechte si ujít nejnovější nabídky prodeje bytů 2+1 v České Skalici.