Prodej činžovního domu, Opava, Krnovská, 555 m2

Krnovská, Opava (nečleněná část města)

10 500 000 Kč
/za nemovitost
Včetně provize, včetně právního servisu
Hypotéka od 46 929 Kč /měs. Chci hypotéku

Parametry nemovitosti

AdresaKrnovská, Opava (nečleněná část města)
ID1622
StavbaCihlová
Stav objektuProjekt
Typ objektuPatrový
Lokalita objektuCentrum obce
Užitná plocha555 m2
Zastavěná plocha180 m2
Podlahová plocha229 m2
Třída energetické náročnostiG - Mimořádně nehospodárná
Elektřina230V
PlynPlynovod
OdpadVeřejná kanalizace
KomunikaceAsfaltová
VodaVodovod
Převod do OV
Parkování

Origo partneři v Opavě

Popis

Nabízíme ke koupi kompletně připravený developerský projekt se stavebním povolením - Rezidence Krnovská 9, Opava. Jedná se o demolici stávajícího objektu a následnou výstavbu nového moderního pětipodlažního bytového domu s devíti bytovými jednotkami, situovaný v atraktivní lokalitě v Opavě, na ulici Krnovská kousek od nákupního centra OC Breda & Weinstein.
Projektová dokumentace je detailně zpracovaná studiem ARCHE’S a obsahuje všechny části nutné pro realizaci stavby. Projekt je připraven k okamžitému zahájení výstavby.
Základní informace o projektu:
– Adresa: Krnovská 12/9, Opava - Předměstí
– Parcelní číslo: st. 199/1
– Celkový počet bytů: 9
– Dispozice: 8× byt 3+kk, 1× byt 2+kk
– Celková plocha bytů: 555 m²
– Podlaží: 1.PP + 1.NP + 2.-5.NP
– Zastavěná plocha objektu: 180 m²
– Výmera pozemku: 229 m²
– Parkovací místa: 9 (z toho 1 místo ZTP)
– Objekt není památkově chráněn
– Projekt je v souladu s územním plánem (zóna UA - smíšené obytné)
Technické zázemí domu:
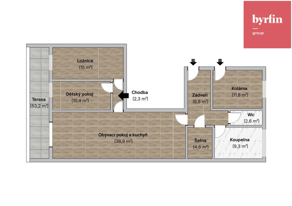
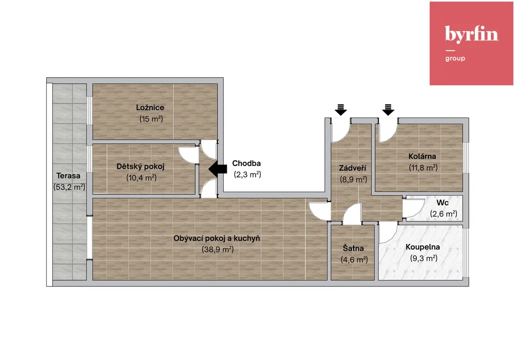
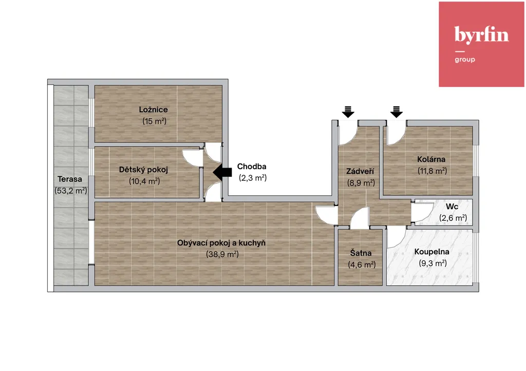
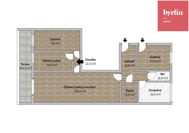
V 1. podzemním podlaží se nachází technická místnost a sklepní koje určené pro jednotlivé byty. V přízemí je k dispozici kolárna pro bezpečné uložení kol a kočárků.
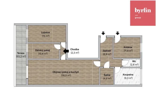
Dispozice a struktura bytů:
1. NP: Jeden prostorný byt 3+kk o velikosti 96 m² se soukromou zahradou 49 m² a vlastní terasou.
2.-4. NP: Každé patro obsahuje dva byty 3+kk, každý o velikosti 59 m². Byty jsou doplněny balkonem o velikosti 14-16 m².
5. NP: Jeden byt 2+kk o velikosti 46 m² s balkonem 16 m² a jeden byt 3+kk o velikosti 59 m² s balkonem 14 m².
Architektonické řešení:
Projekt počítá s demolicí stávajícího objektu a následnou výstavbou nového moderního pětipodlažního bytového domu. Návrh zahrnuje současnou architekturu se skleněnými fasádními prvky orientovanými do ulice Krnovská, které dodají budově čistý a reprezentativní vzhled. Na straně do vnitrobloku jsou navrženy balkony a v 1. NP také soukromá zahrada zajišťující klidné rezidenční prostředí. Nový objekt je navržen tak, aby citlivě doplnil okolní zástavbu a přinesl do lokality kvalitní moderní bydlení.
Lokalita:
Projekt se nachází v zastavěné části města Opavy, v docházkové vzdálenosti od centra. Lokalita nabízí kompletní občanskou vybavenost, přímé napojení na MHD, obchody, služby, školy a dobré dopravní spojení díky blízkosti městského obchvatu. Pozemek je plně napojen na veškeré inženýrské sítě.
Pro koho je projekt vhodný:
Projekt je ideální pro developera, investora nebo stavební společnost, která hledá plně připravený záměr se stavebním povolením. Díky dispozičnímu řešení, balkonům, zahradě a lokalitě je projekt vhodný jak pro následný prodej bytů, tak i pro dlouhodobý nájemní model.
V případě zájmu o detailní dokumentaci, osobní schůzku nebo další informace mě neváhejte kontaktovat.
Více fotografií - 3D půdorysy bytů se připravují.
S vyřízením financování tohoto projektu vám rádi pomůžeme.

Makléř

Máte zájem o tuto nemovistost?

Tímto, v souladu s nařízením Evropského parlamentu a Rady (EU) 2016/679, v platném znění, prohlašuji, že mi je alespoň 16 let a uděluji tak svůj souhlas se zpracováním zadaných údajů (jméno, telefon, e-mail, ip adresa) společnosti B3 Technology, s.r.o., IČ: 07330600, se sídlem Novostavby 126/23, 435 11 Lom (správce dat), za účelem předání dotazu z tohoto formuláře Vámi vybranému inzerentovi a zpětného kontaktování mé osoby. Osobní údaje bude správce zpracovávat manuálně i automaticky přímo prostřednictvím svých zaměstnanců. Informace předané tímto formulářem budou uloženy v databázi správce maximálně po dobu 10 let. Odvolání souhlasu s uložením a zpracováním poskytnutých dat lze e-mailem na info@origo-reality.cz. V případě podezření na neoprávněné použití Vámi poskytnutých údajů máte právo předat podnět k šetření Úřadu pro ochranu osobních údajů. Více informací
Chystáte se prodat nemovitost?
Pomůžeme Vám!

Přihlášení k odběru

Nenechte si ujít nejnovější nabídky prodeje činžovních domů v Opavě.