Pronájem kanceláře, Hradec Králové - Nový Hradec Králové, Na Brně, 250 m2 (ID: 1903371)

Na Brně, Nový Hradec Králové

50 000 Kč
/za měsíc
+ měs. zálohové poplatky 15.000 Kč (voda, teplo, el.), Kauce. Provize RK.
Získejte výhodnou HYPOTÉKU Chci hypotéku

Parametry nemovitosti

AdresaNa Brně, Nový Hradec Králové
ID1-34750
StavbaCihlová
Stav objektuVelmi dobrý
Typ objektuPřízemní
Užitná plocha250 m2
Třída energetické náročnostiG - Mimořádně nehospodárná
TelekomunikaceInternet
DopravaMHD
VodaVodovod
Bezbarierový přístup

Origo partneři v Hradci Králové

Popis

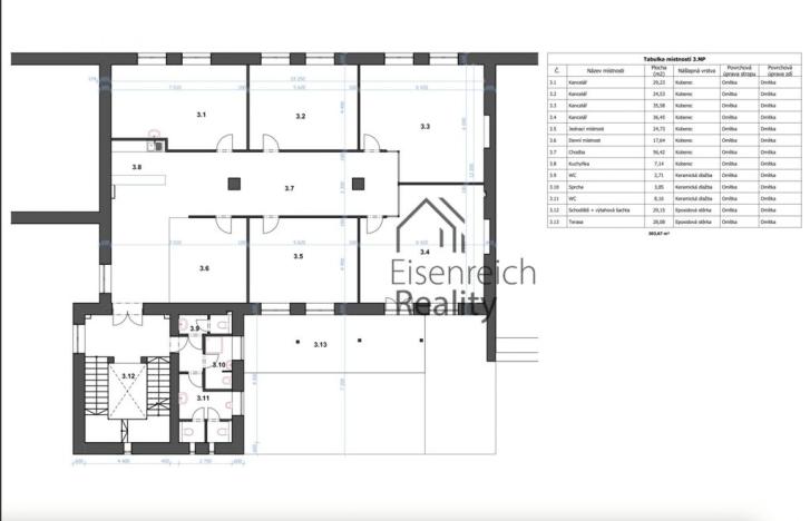
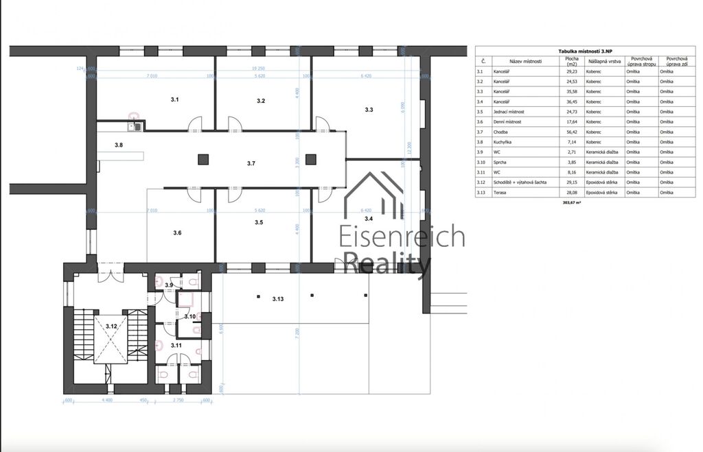
Nabízíme k pronájmu prostorné kancelářské prostory o celkové výměře 250 m2 ve 2. patře administrativní budovy.

Dispozice:

5 samostatných kanceláří vhodných pro menší i větší pracovní týmy

zařízená kuchyňka přímo v prostorách

toalety a sprcha k dispozici na chodbě

Další výhody:

v ceně nájemného jsou zahrnuta 2 parkovací stání

snadná dostupnost MHD i autem

reprezentativní prostředí vhodné pro sídlo firmy

Prostory jsou ihned k dispozici. V případě dotazů mě kontaktujte.

Makléř

Máte zájem o tuto nemovistost?

Tímto, v souladu s nařízením Evropského parlamentu a Rady (EU) 2016/679, v platném znění, prohlašuji, že mi je alespoň 16 let a uděluji tak svůj souhlas se zpracováním zadaných údajů (jméno, telefon, e-mail, ip adresa) společnosti B3 Technology, s.r.o., IČ: 07330600, se sídlem Novostavby 126/23, 435 11 Lom (správce dat), za účelem předání dotazu z tohoto formuláře Vámi vybranému inzerentovi a zpětného kontaktování mé osoby. Osobní údaje bude správce zpracovávat manuálně i automaticky přímo prostřednictvím svých zaměstnanců. Informace předané tímto formulářem budou uloženy v databázi správce maximálně po dobu 10 let. Odvolání souhlasu s uložením a zpracováním poskytnutých dat lze e-mailem na info@origo-reality.cz. V případě podezření na neoprávněné použití Vámi poskytnutých údajů máte právo předat podnět k šetření Úřadu pro ochranu osobních údajů. Více informací
Chystáte se prodat nemovitost?
Pomůžeme Vám!