Pronájem bytu 2+1, Brno, Opálkova, 62 m2 (ID: 1903352)

Opálkova, Brno, Bystrc

14 500 Kč
/za měsíc
+ 4000Kč/5000Kč zálohy, +kauce, + provize RK
Získejte výhodnou HYPOTÉKU Chci hypotéku

Parametry bytu

AdresaOpálkova, Brno, Bystrc
ID92526
StavbaPanelová
Stav objektuVelmi dobrý
Patro5. z 9
VybavenoAno
Lokalita objektuKlidná část obce
VlastnictvíOsobní
Užitná plocha62 m2
Podlahová plocha62 m2
Třída energetické náročnostiB - Velmi úsporná
Ukazatel energetické náročnosti72 kWh/m2 za rok
Sklep
Lodžie
Výtah

Origo partneři v Brně

Popis

Nabízíme Vám k pronájmu udržovaný byt ve standardním provedení OV 2+1 v Bystrci, ul. Opálkova. Klidná lokalita, zateplený dům, krásný výhled.

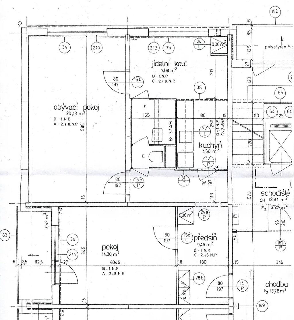
Byt se nachází v 5.p/8. Uspořádání: kuchyně do L, pokoje mají samostatné vstupy, lodžie, WC a koupelna jsou oddělené. Většina zařízení na fotografiích může v bytě zůstat, po dohodě lze část zařízení bytu odstranit. K dispozici je vybavená kuchyň (nádobí), starší pračka a lednice, které lze rovněž v bytě zanechat.

CP: 60 m2 + lodžie 3,75m2
Pokoje: 20 m2, 14m2, kuchyně 12m2

K nastěhování od ledna 2026.

Spojení:
- zastávka tramvaje č. 10, 3 a 1 je 10min pěší chůze od domu
- zastávka trolejbusu č. 30 v těsné blízkosti domu
- autobusová linka č. 50, 52, 161 a noční linka 92 staví v těsné blízkosti domu

Možnosti internetu: Vodafone, 02

V okolí je mnoho příležitosti k příjemným vycházkám i jízdě na kole. V místě jsou k dispozici veškeré služby: poliklinika, lékárny, kadeřnictví, kosmetika, supermarket, večerky i restaurace, dále potom kvalitní sportovní centrum: bowling, badminton, squash a plně vybavena posilovna. Jazykové kroužky a zájmové kroužky pro děti i dospělé.
PENB k dispozici v RK - třída B.

Cena:
nájemné 14500Kč/měsíc + 40000Kč/5000Kč záloha na energie a služby podle počtu osob
+ 25000Kč kauce, + provize RK

Makléř

Máte zájem o tento byt?

Tímto, v souladu s nařízením Evropského parlamentu a Rady (EU) 2016/679, v platném znění, prohlašuji, že mi je alespoň 16 let a uděluji tak svůj souhlas se zpracováním zadaných údajů (jméno, telefon, e-mail, ip adresa) společnosti B3 Technology, s.r.o., IČ: 07330600, se sídlem Novostavby 126/23, 435 11 Lom (správce dat), za účelem předání dotazu z tohoto formuláře Vámi vybranému inzerentovi a zpětného kontaktování mé osoby. Osobní údaje bude správce zpracovávat manuálně i automaticky přímo prostřednictvím svých zaměstnanců. Informace předané tímto formulářem budou uloženy v databázi správce maximálně po dobu 10 let. Odvolání souhlasu s uložením a zpracováním poskytnutých dat lze e-mailem na info@origo-reality.cz. V případě podezření na neoprávněné použití Vámi poskytnutých údajů máte právo předat podnět k šetření Úřadu pro ochranu osobních údajů. Více informací
Chystáte se prodat nemovitost?
Pomůžeme Vám!

Přihlášení k odběru

Nenechte si ujít nejnovější nabídky pronájmu bytů 2+1 v Brně.