Pronájem bytu 2+kk, Ostrava, Hasičská, 53 m2 (ID: 1903053)

Hasičská, Ostrava, Hrabůvka

17 200 Kč
/za měsíc
výše nájmu zahrnuje také nájem parkovacího stání
Získejte výhodnou HYPOTÉKU Chci hypotéku

Parametry bytu

Náklady na bydlení4500
AdresaHasičská, Ostrava, Hrabůvka
StavbaSmíšená
Stav objektuPo rekonstrukci
Patro4.
VybavenoČástečně
Lokalita objektuKlidná část obce
VlastnictvíOsobní
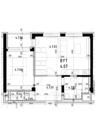
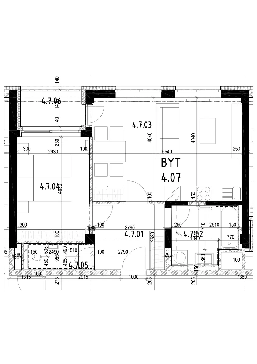
Užitná plocha53 m2
Třída energetické náročnostiD - Méně úsporná
Elektřina230V
OdpadVeřejná kanalizace
KomunikaceAsfaltová
TelekomunikaceInternet
DopravaMHD
VodaVodovod
Topné tělesoRadiátory
Zdroj topeníÚstřední dálkové
Zdroj teplé vodyCentrální dálkový ohřev
Sklep
Lodžie
Výtah
Bezbarierový přístup
Parkování

Origo partneři v Ostravě

Popis

Ve výhradním zastoupení vlastníka nabízíme k pronájmu, v případě zájmu je možný i odkupu, byt o velikosti 2+kk o ploše 52,8 m2 na adrese Hasičská 46a situovaný v Bytovém komplexu REZIDENCE PARK HRABŮVKA v samotném srdci městské části Ostrava-Hrabůvka. Dům je výborně dopravně dostupný, přitom v klidné a bezpečné lokalitě. K dispozici jsou základní služby včetně obchodů, restaurace a sportovního vyžití. Milovníci přírody jsou za 30 minut na parkovišti pod Lysou horou. Jen 10 minut pěšky trvá cesta do Bělského lesa, které je ideálním místem na procházky, běh i cyklistiku. Nedaleko se také můžete napojit na cyklostezku vedoucí k řece Ostravice.

Nájemníkům bytu je přístupný vnitroblok, kde je odpočinková zóna obklopená množstvím zeleně, privátní park slouží pouze rezidentům objektu primárně k rekreaci. Dům je bezbariérový.

Byt se skládá ze dvou hlavních místností, kde v jedné je plně vybavená kuchyňská linka, vstupní haly, samostatné koupelny a WC se sanitární keramikou včetně baterií. V každé místnosti jsou přisazená stropní světla. K bytu přináleží komora na patře domu a jedno venkovní parkovací stání u domu.

Objekt je napojen na CZT a je v energetické třídě B.

Makléř

Máte zájem o tento byt?

Tímto, v souladu s nařízením Evropského parlamentu a Rady (EU) 2016/679, v platném znění, prohlašuji, že mi je alespoň 16 let a uděluji tak svůj souhlas se zpracováním zadaných údajů (jméno, telefon, e-mail, ip adresa) společnosti B3 Technology, s.r.o., IČ: 07330600, se sídlem Novostavby 126/23, 435 11 Lom (správce dat), za účelem předání dotazu z tohoto formuláře Vámi vybranému inzerentovi a zpětného kontaktování mé osoby. Osobní údaje bude správce zpracovávat manuálně i automaticky přímo prostřednictvím svých zaměstnanců. Informace předané tímto formulářem budou uloženy v databázi správce maximálně po dobu 10 let. Odvolání souhlasu s uložením a zpracováním poskytnutých dat lze e-mailem na info@origo-reality.cz. V případě podezření na neoprávněné použití Vámi poskytnutých údajů máte právo předat podnět k šetření Úřadu pro ochranu osobních údajů. Více informací
Chystáte se prodat nemovitost?
Pomůžeme Vám!