Prodej pozemku pro bydlení, Zásmuky - Nesměň, 1022 m2 (ID: 1902849)

Zásmuky, Nesměň

4 490 000 Kč
/za nemovitost
Hypotéka od 20 068 Kč /měs. Chci hypotéku

Parametry pozemku

AdresaZásmuky, Nesměň
ID920104
Stav objektuVelmi dobrý
VybavenoNe
Lokalita objektuKlidná část obce
VlastnictvíOsobní
Plocha pozemku1022 m2

Origo partneři v Zásmukách

Popis

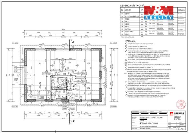
Nabízíme k prodeji atraktivní pozemek k bydlení o rozloze 1022 m² a ornou půdu o rozloze 1377 m² v obci Nesměň u Zásmuk. Součástí prodeje je kompletní projektová dokumentace rodinného domu. Přízemní dům 4+kk se zastavěnou plochou 105 m², prostorný obývací pokoj s kuchyní, ložnice, dva další pokoje, koupelna a samostatná toaleta. Dům je řešen jako moderní nízkoenergetická dřevostavba. Stav pozemku je velmi dobrý, připravený pro zahájení výstavby. Nachází se v klidné části obce, ideální pro ty, kteří hledají únik od ruchu velkoměsta a touží po klidném prostředí pro výstavbu svého vysněného domova. Největší ozdobou pozemku je malebné jezírko obklopené zelení. V okolí naleznete krásnou přírodu, která vybízí k procházkám a relaxaci. Výborná dostupnost do Zásmuk i dalších okolních měst jako například Kolín zajišťuje snadnou dopravní obslužnost. Jestliže plánujete financování hypotékou, zajistíme vám nabídku s nejnižší úrokovou sazbou. Kontaktujte nás pro více informací či sjednání prohlídky.

Makléř

Máte zájem o tento pozemek?

Tímto, v souladu s nařízením Evropského parlamentu a Rady (EU) 2016/679, v platném znění, prohlašuji, že mi je alespoň 16 let a uděluji tak svůj souhlas se zpracováním zadaných údajů (jméno, telefon, e-mail, ip adresa) společnosti B3 Technology, s.r.o., IČ: 07330600, se sídlem Novostavby 126/23, 435 11 Lom (správce dat), za účelem předání dotazu z tohoto formuláře Vámi vybranému inzerentovi a zpětného kontaktování mé osoby. Osobní údaje bude správce zpracovávat manuálně i automaticky přímo prostřednictvím svých zaměstnanců. Informace předané tímto formulářem budou uloženy v databázi správce maximálně po dobu 10 let. Odvolání souhlasu s uložením a zpracováním poskytnutých dat lze e-mailem na info@origo-reality.cz. V případě podezření na neoprávněné použití Vámi poskytnutých údajů máte právo předat podnět k šetření Úřadu pro ochranu osobních údajů. Více informací
Chystáte se prodat nemovitost?
Pomůžeme Vám!

Přihlášení k odběru

Nenechte si ujít nejnovější nabídky prodeje pozemků pro bydlení v Zásmukách.