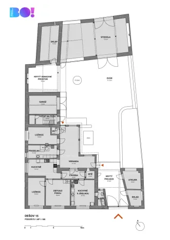
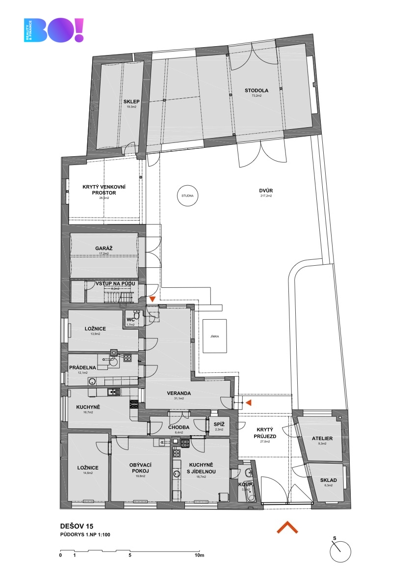
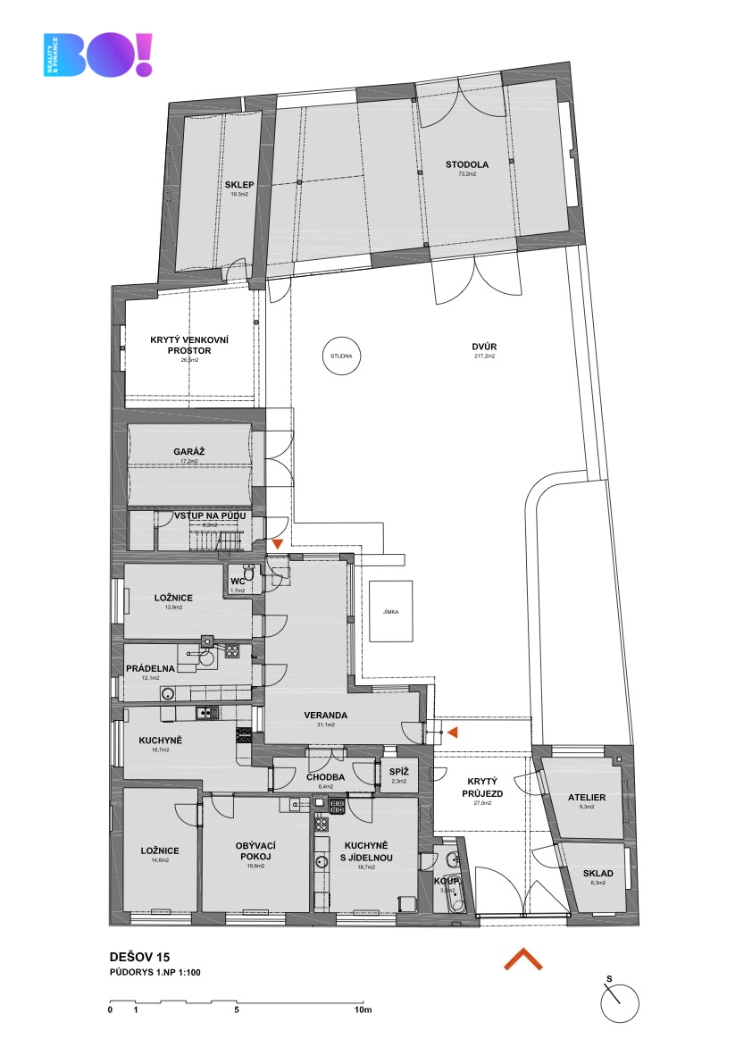
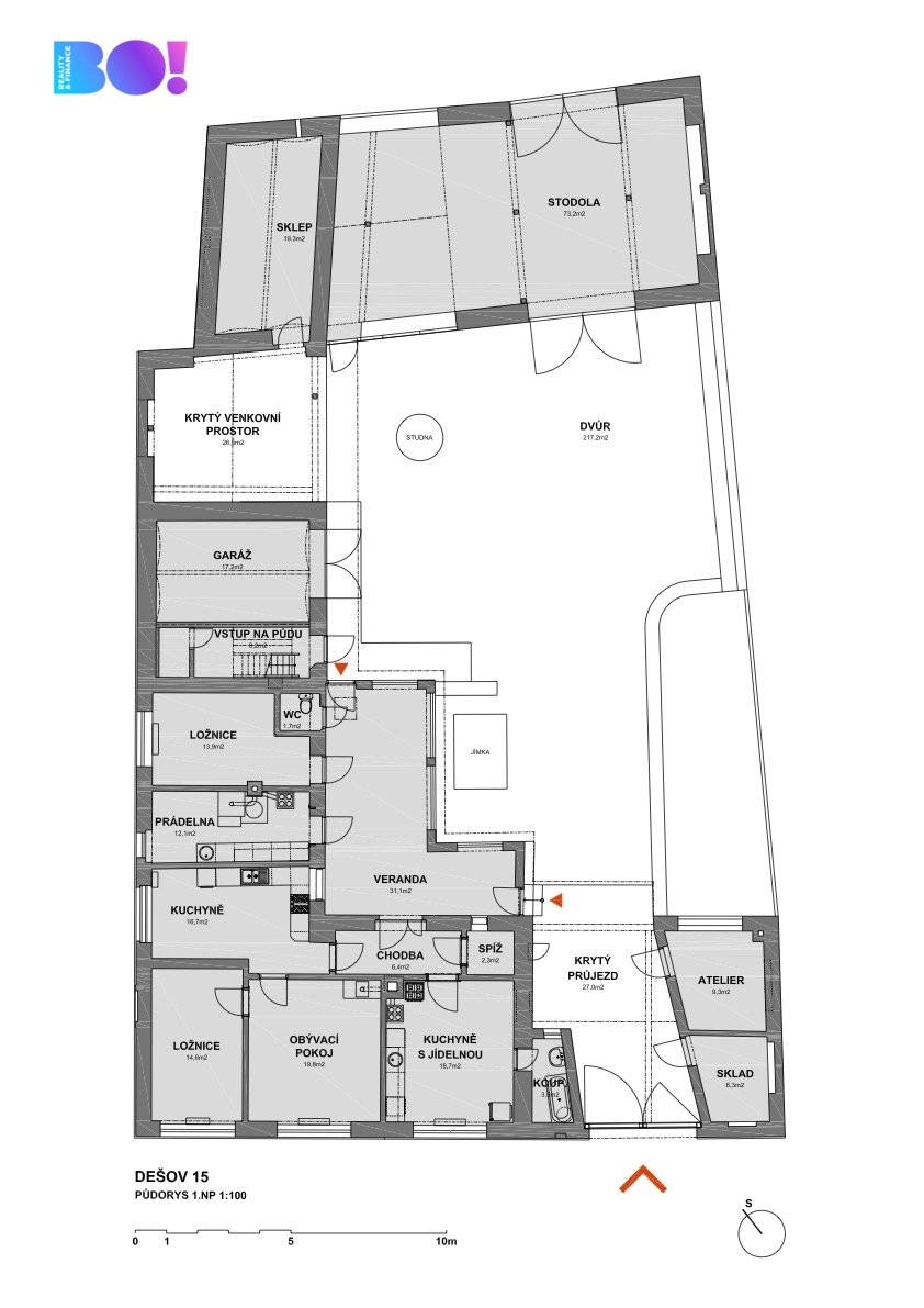
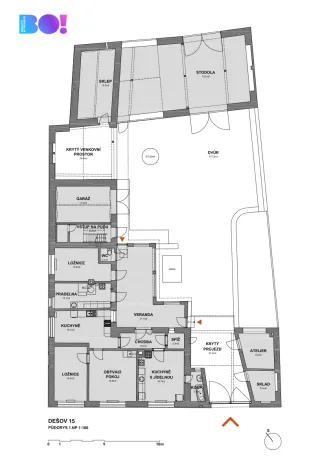
Prodej rodinného domu, Dešov, 155 m2

Dešov

2 200 000 Kč
/za nemovitost
Hypotéka od 9 833 Kč /měs. Chci hypotéku

Parametry domu

AdresaDešov
ID7627
StavbaSmíšená
Stav objektuPřed rekonstrukcí
Typ objektuPřízemní
Druh objektuSamostatný
Lokalita objektuKlidná část obce
Užitná plocha155 m2
Zastavěná plocha294 m2
Plocha pozemku1856 m2
Třída energetické náročnostiG - Mimořádně nehospodárná
OdpadSeptik, Jímka
Převod do OV

Origo partneři v Dešově

Popis

BO! Vám nabízí prostorný rodinný dům k rekonstrukci v obci Dešov.

Dešov je malebná obec kraji Vysočina, ležící 25 km jihozápadně od Třebíče. Obklopená kopcovitou krajinou s lesy a zemědělskou půdou. Nabízí turistické trasy a cyklostezky, včetně spojení k Vranovské přehradě. Obec žije bohatým kulturním životem. Dodržují se staré zvyky a tradice - pálení čarodějnic, stavění máje, masopustní průvod, pouť, posvícení atd. V obci je ZŠ a MŠ, praktický a dětský lékař, pošta, restaurace, obchod se smíšeným zbožím.

Dům je napojen na veřejný vodovod a plynovod, má vlastní studnu, kanalizace je řešena jímkou. Vytápění zajišťují plynové WAV, možno využít i kamna na TP. Ohřev vody ve sprše je vyřešen bojlerem, umyvadla a dřez mají mísící baterie. Kromě obytných místností nabízí dům i další prostory, které nový majitel bude jistě umět efektivně využít. Výhodou je i rozlehlý pozemek, který nabízí široké možnosti využití.

S financováním Vám rádi pomůžeme a dle vašich požadavků a možností najdeme nejlepší řešení přímo na míru. Dále jsme schopni v případě zájmu zajistit čerpání dotace ,,Oprav dům po babičce"

Těším se na Vás na prohlídce!

Makléř

Máte zájem o tento dům?

Tímto, v souladu s nařízením Evropského parlamentu a Rady (EU) 2016/679, v platném znění, prohlašuji, že mi je alespoň 16 let a uděluji tak svůj souhlas se zpracováním zadaných údajů (jméno, telefon, e-mail, ip adresa) společnosti B3 Technology, s.r.o., IČ: 07330600, se sídlem Novostavby 126/23, 435 11 Lom (správce dat), za účelem předání dotazu z tohoto formuláře Vámi vybranému inzerentovi a zpětného kontaktování mé osoby. Osobní údaje bude správce zpracovávat manuálně i automaticky přímo prostřednictvím svých zaměstnanců. Informace předané tímto formulářem budou uloženy v databázi správce maximálně po dobu 10 let. Odvolání souhlasu s uložením a zpracováním poskytnutých dat lze e-mailem na info@origo-reality.cz. V případě podezření na neoprávněné použití Vámi poskytnutých údajů máte právo předat podnět k šetření Úřadu pro ochranu osobních údajů. Více informací
Chystáte se prodat nemovitost?
Pomůžeme Vám!

Přihlášení k odběru

Nenechte si ujít nejnovější nabídky prodeje rodinných domů v Dešově.