Soccer reality

Prodej bytu 2+kk, Říčany, Rooseveltova, 39 m2 (ID: 1902795)

Rooseveltova, Říčany

3 490 000 Kč
/za nemovitost
Hypotéka od 15 598 Kč /měs. Chci hypotéku

Parametry bytu

AdresaRooseveltova, Říčany
ID18097
StavbaSmíšená
Stav objektuVelmi dobrý
Patro1. z 4
VybavenoAno
Lokalita objektuCentrum obce
VlastnictvíOsobní
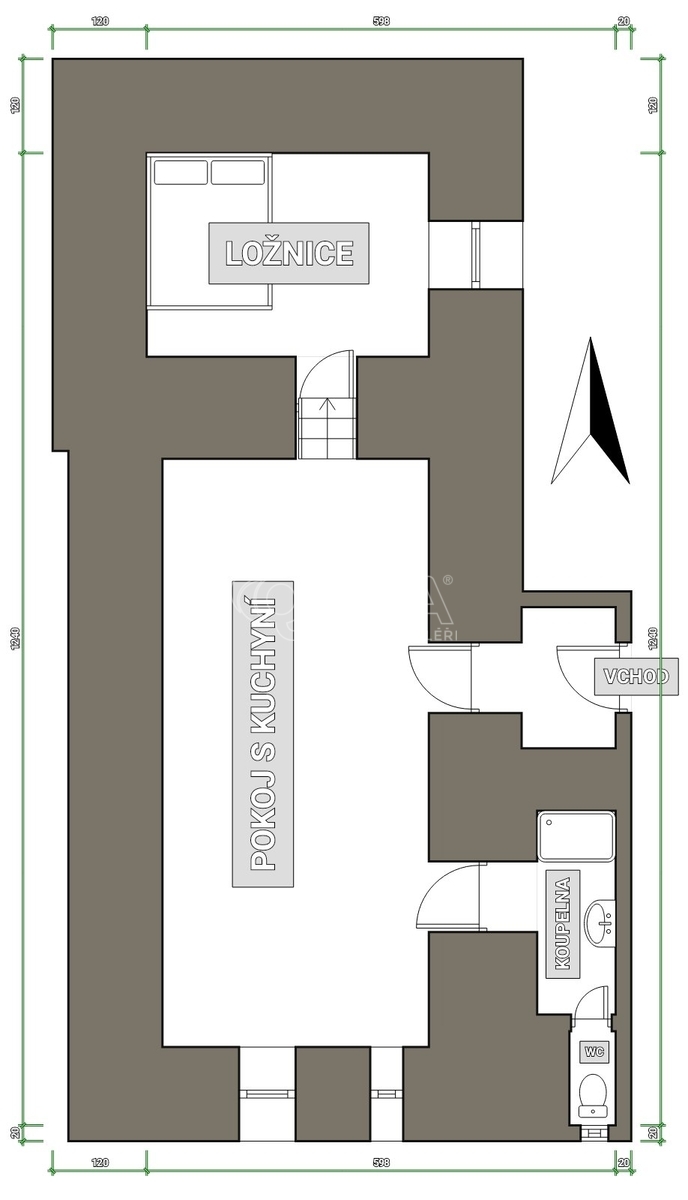
Užitná plocha39 m2
Zastavěná plocha154 m2
Podlahová plocha39 m2
Třída energetické náročnostiG - Mimořádně nehospodárná
Elektřina230V
PlynPlynovod
OdpadVeřejná kanalizace
KomunikaceAsfaltová
DopravaVlak, Dálnice, Silnice, Autobus
VodaVodovod
Bezbarierový přístup

Origo partneři v Říčanech

Popis

V centru Říčan v klidné ulici hned vedle náměstí nabízíme přízemní byt. Ideální poloha pro rychlý přístup do centra. Prostorný obývací pokoj s kuchyní a samostatnou ložnicí, který můžete mít včetně zařízení.
Vytápění je řešeno klimatizací, nebo el. přímotopy. Ohřev vody elektrickým bojlerem.
V bytě je potřeba provést určité stavební úpravy v koupelně a elektroinstalaci.
Neváhejte zavolat pro více podrobností.

Makléř

Máte zájem o tento byt?

Tímto, v souladu s nařízením Evropského parlamentu a Rady (EU) 2016/679, v platném znění, prohlašuji, že mi je alespoň 16 let a uděluji tak svůj souhlas se zpracováním zadaných údajů (jméno, telefon, e-mail, ip adresa) společnosti B3 Technology, s.r.o., IČ: 07330600, se sídlem Novostavby 126/23, 435 11 Lom (správce dat), za účelem předání dotazu z tohoto formuláře Vámi vybranému inzerentovi a zpětného kontaktování mé osoby. Osobní údaje bude správce zpracovávat manuálně i automaticky přímo prostřednictvím svých zaměstnanců. Informace předané tímto formulářem budou uloženy v databázi správce maximálně po dobu 10 let. Odvolání souhlasu s uložením a zpracováním poskytnutých dat lze e-mailem na info@origo-reality.cz. V případě podezření na neoprávněné použití Vámi poskytnutých údajů máte právo předat podnět k šetření Úřadu pro ochranu osobních údajů. Více informací
Chystáte se prodat nemovitost?
Pomůžeme Vám!

Přihlášení k odběru

Nenechte si ujít nejnovější nabídky prodeje bytů 2+kk v Říčanech (okr. Praha-východ).