Prodej rodinného domu, Dolánky nad Ohří, 108 m2

Dolánky nad Ohří, okres litoměřice

3 200 000 Kč
/za nemovitost
včetně zahrady
Hypotéka od 14 302 Kč /měs. Chci hypotéku

Parametry domu

AdresaDolánky nad Ohří, okres litoměřice
ID971466
StavbaSmíšená
Stav objektuDobrý
VybavenoNe
Typ objektuPatrový
Druh objektuŘadový
VlastnictvíOsobní
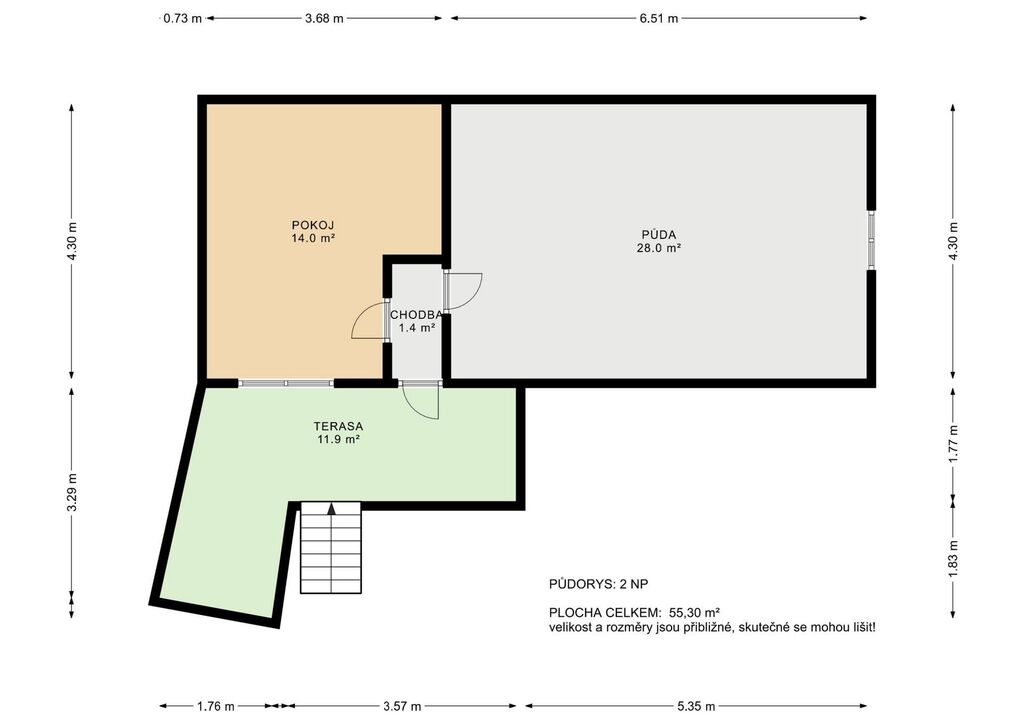
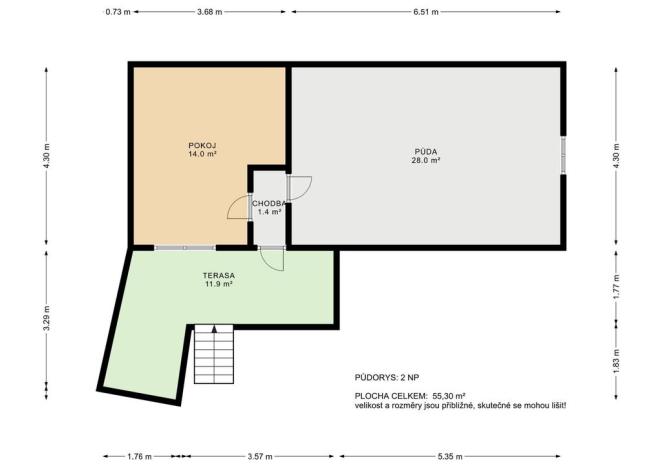
Užitná plocha108 m2
Zastavěná plocha68 m2
Podlahová plocha92 m2
Plocha pozemku106 m2
Plocha nebytových prostor16 m2
Třída energetické náročnostiG - Mimořádně nehospodárná
Elektřina230V
OdpadVeřejná kanalizace
TopeníLokální tuhá paliva
DopravaSilnice, Autobus
VodaVodovod
Sklep
Terasa
Výtah

Origo partneři v Dolánkách nad Ohří

Okna a dveře

Rekonstrukce

Zámečnické práce

Popis

Nabízíme k prodeji menší RD s dispozicí 2+1, resp.3+1, příslušenstvím a dvorkem na pozemku celkem 106 m2 a dále spolu s ním zahradu 570 m2, vzdálenou cca 5 min chůze. Nemovitosti jsou nabízeny jako celek, nelze prodat zahradu samostatně.
Domek je ze smíšeného zdiva a sloužil k trvalému bydlení. Je napojený na veškeré dostupné IS elektřinu, vodovod a kanalizaci, plyn není. V přízemí se nachází 2 pokoje, kuchyňka, předsíň a malá koupelna se sprchovým koutem, v patře, přístupném po venkovních schodech, je pak další, letní pokoj, otevřená terasa a půda. Ze dlážděného dvora vejdete do venkovní komory a kůlny/dílny. Ulička, v níž se domek nachází, je přístupná autem do vzdálenosti cca 10 m od domku, pak už jen pěšky. Zaparkujete však velmi blízko v příjezdové ulici cca 80 m od domku.
Zahrada je úžasným bonusem 5 min chůze, rovinatá, s přípojkou el.proudu a vlastní studnou o hloubce 5 m, která dosud nikdy nevyschla.
Získáte útulný domek jako ve Zlaté uličce, který si dobudujete podle svých představ, a zahradu, kde realizujete všechny své sny.
Ráda Vám podám bližší informace a zajistím prohlídku domku. Pomoc s vyřízením hypotéky v případě potřeby samozřejmostí.

Makléř

Máte zájem o tento dům?

Tímto, v souladu s nařízením Evropského parlamentu a Rady (EU) 2016/679, v platném znění, prohlašuji, že mi je alespoň 16 let a uděluji tak svůj souhlas se zpracováním zadaných údajů (jméno, telefon, e-mail, ip adresa) společnosti B3 Technology, s.r.o., IČ: 07330600, se sídlem Novostavby 126/23, 435 11 Lom (správce dat), za účelem předání dotazu z tohoto formuláře Vámi vybranému inzerentovi a zpětného kontaktování mé osoby. Osobní údaje bude správce zpracovávat manuálně i automaticky přímo prostřednictvím svých zaměstnanců. Informace předané tímto formulářem budou uloženy v databázi správce maximálně po dobu 10 let. Odvolání souhlasu s uložením a zpracováním poskytnutých dat lze e-mailem na info@origo-reality.cz. V případě podezření na neoprávněné použití Vámi poskytnutých údajů máte právo předat podnět k šetření Úřadu pro ochranu osobních údajů. Více informací
Chystáte se prodat nemovitost?
Pomůžeme Vám!

Přihlášení k odběru

Nenechte si ujít nejnovější nabídky prodeje rodinných domů v Dolánkách nad Ohří.