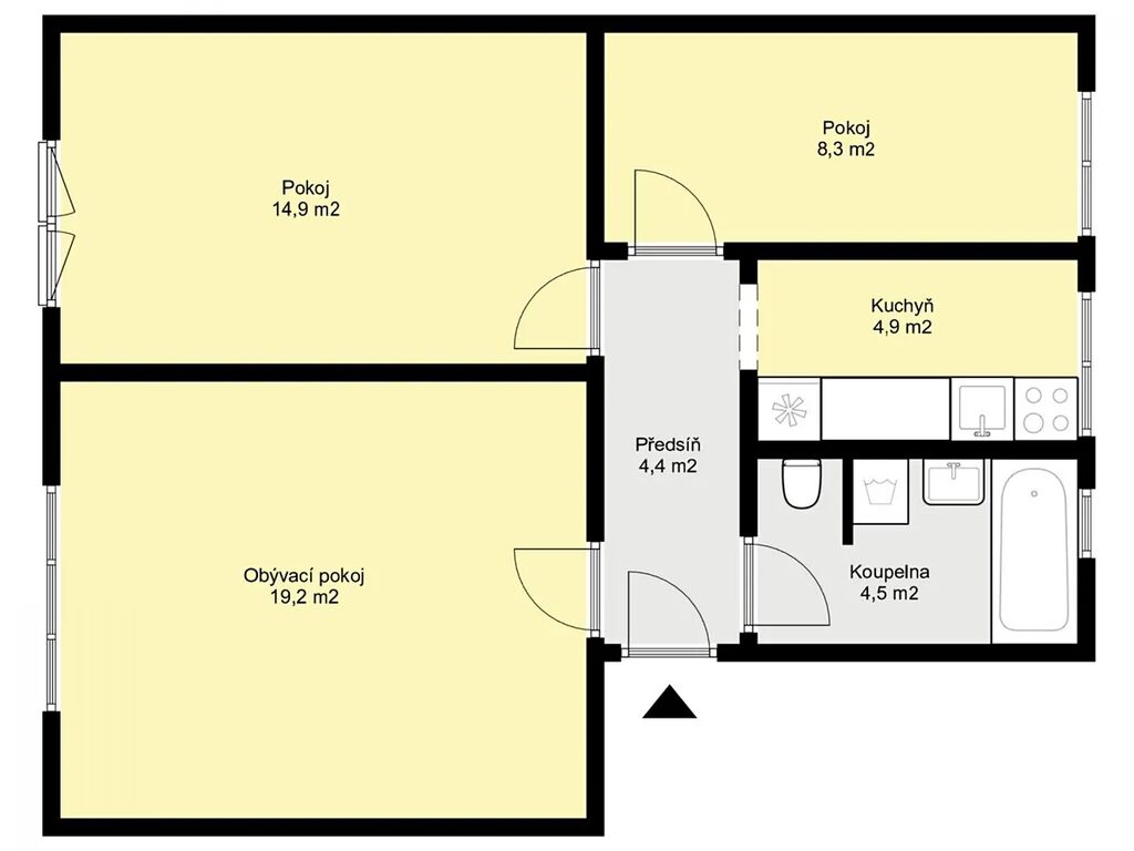
Prodej bytu 3+1, Kolín, Na Magistrále, 57 m2

Na Magistrále, Kolín II

5 750 000 Kč
/za nemovitost
Hypotéka od 25 699 Kč /měs. Chci hypotéku

Parametry bytu

AdresaNa Magistrále, Kolín II
ID973
StavbaCihlová
Stav objektuPo rekonstrukci
Patro4. z 4
VybavenoČástečně
VlastnictvíOsobní
Užitná plocha57 m2
Podlahová plocha62 m2
Třída energetické náročnostiC - Úsporná
Elektřina230V
PlynIndividuální
TopeníÚstřední dálkové
KomunikaceAsfaltová
DopravaVlak, Silnice, MHD, Autobus
VodaVodovod
Topné tělesoRadiátory
Zdroj teplé vodyPlynová karma
Sklep
Bezbarierový přístup

Origo partneři v Kolíně

Popis

Nabízím ke koupi velmi příjemný a komplexně zrekonstruovaný byt 3+1 o výměře 57 m2, umístěný ve 4. nadzemním podlaží zděného domu v jedné z nejoblíbenějších částí Kolína u kolínské vodárny.

Byt prošel před zhruba deseti lety celkovou rekonstrukcí, která zahrnovala nové rozvody elektřiny, vody i odpadů. Zároveň byly tam, kde to bylo možné, ponechány původní dubové parkety, které dodávají prostoru osobitý charakter a příjemné teplo domova. Moderní kuchyňská linka, dveře i podlahy jsou sladěny do jednotného stylu, a interiér tak působí čistě, útulně a připraveně k okamžitému užívání bez dalších investic.

Samotný dům je zděný a prošel rozsáhlou rekonstrukcí pláště, díky čemuž dosahuje energetické náročnosti PENB C. Součástí nabídky je také zděný sklep, který poskytuje praktické úložiště pro sportovní vybavení, kočárek či sezonní věci.

Lokalita je ideální především pro rodiny s dětmi v dosahu je známá kolínská vodárna s volnočasovými možnostmi, oblíbená via ferrata u rybníka Peklo, příroda pro procházky a sport, a zároveň kompletní občanská vybavenost včetně obchodů a služeb. Jedná se o místo, kde máte město na dosah, ale zároveň dostatek klidu pro pohodový rodinný život.

Byt bude k nastěhování od 1. května 2026. Část vybavení může v bytě po vzájemné dohodě zůstat.

Pro zájemce rádi zajistíme výhodné financování i pomoc při prodeji stávající nemovitosti.

K inzerci je rovněž přiložena virtuální prohlídka, díky které se mohou zájemci pohodlně projít bytem ještě před osobní návštěvou.

Makléř

Máte zájem o tento byt?

Tímto, v souladu s nařízením Evropského parlamentu a Rady (EU) 2016/679, v platném znění, prohlašuji, že mi je alespoň 16 let a uděluji tak svůj souhlas se zpracováním zadaných údajů (jméno, telefon, e-mail, ip adresa) společnosti B3 Technology, s.r.o., IČ: 07330600, se sídlem Novostavby 126/23, 435 11 Lom (správce dat), za účelem předání dotazu z tohoto formuláře Vámi vybranému inzerentovi a zpětného kontaktování mé osoby. Osobní údaje bude správce zpracovávat manuálně i automaticky přímo prostřednictvím svých zaměstnanců. Informace předané tímto formulářem budou uloženy v databázi správce maximálně po dobu 10 let. Odvolání souhlasu s uložením a zpracováním poskytnutých dat lze e-mailem na info@origo-reality.cz. V případě podezření na neoprávněné použití Vámi poskytnutých údajů máte právo předat podnět k šetření Úřadu pro ochranu osobních údajů. Více informací
Chystáte se prodat nemovitost?
Pomůžeme Vám!

Přihlášení k odběru

Nenechte si ujít nejnovější nabídky prodeje bytů 3+1 v Kolíně.